大沟1号桥(2×30m预应力砼先简支后连续T梁桥)左幅设计(含CAD图)(任务书,开题报告,论文说明书19000字,CAD图纸30张)
摘要
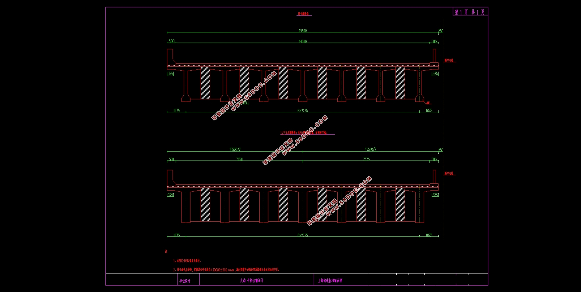
本文的主要内容是呼和浩特至北海高速公路中宜都至鄂湘界段大沟一号桥左幅预应力混凝土连续T梁桥结构设计,本设计采用有限元软件进行辅助分析和设计,通过电算手算相结合的方式完成上部结构的设计,计算以及验算。本文所涉及的主要内容是:设计资料分析,桥梁方案比选,施工阶段划分,截面尺寸的拟定,,MidasCivil建模验算,内力计算,预应力钢束设计,下部结构的尺寸拟定和验算等。本桥型采用2×30m两跨预应力混凝土连续T梁,桥梁全长60m,桥面宽度15.5m,单向四车道,主桥采用预制的T梁,下部结构采用桩柱式墩台。
经检算,本设计不仅满足安全要求,并且完全能满足现行规范的要求。
关键词:预应力混凝土连续T梁桥;简支—连续;桩柱式墩台;作用效应计算;结构验算;有限元分析
Abstract
The main content of this paper is the structural design of the left prestressed concrete continuous t-beam bridge of dagou no. 1 bridge in the middle section of the Hohhot to beihai expressway from yidu to exiangjie. This design USES the finite element software for auxiliary analysis and design, and completes the superstructure design, calculation and checking calculation by means of computer calculation and manual calculation. The main contents involved in this paper are: design data analysis, bridge scheme comparison and selection, construction stage division, section size drawing up, Midas Civil modeling checking calculation, internal force calculation, prestressed steel beam design, substructure size drawing up and checking calculation. This bridge type USES 2 30m two-span prestressed concrete continuous T beam, the bridge length is 60m, the bridge deck width is 15.5m, one-way four-lane, the main bridge USES prefabricated T beam, the lower structure USES pile type pier.
By checking calculation, the design not only meets the safety requirements, but also fully meets the requirements of the current specification.
Key words:Prestressed concrete continuous t-beam bridge; Simply supported - continuous; Pile-type pier; Calculation of action effect; Structure checking calculation; Finite element analysis
2.1工程概述
2.1.1 地形、地貌
桥址区处于鄂西山地和江汉平原过渡地带,地势西南高、东北低,由西南向东北倾斜,是一个丘陵起伏的半山区。最高点为五峰接壤的帽子尖,海拔1064.6米,最低点为枝城镇的官洲,海拔仅38米。西南地势高竣,群山连绵,高程在250-800米之间,约占总面积的40%。东部丘陵,海拔在50-250米,沿长江及清江出口地势平坦,土地肥沃,中部丘陵、冲沟与岗地交错,但坡度较缓,形成平畈。
2.1.2 工程地质
桥址区处于构造剥蚀侵蚀低山区,地表上覆粉质粘土、碎石(Q4al+pl)直接出露岩体为志留系纱帽组(S3sh)页岩地表水主要分布于沿线溪流,地下水主要为松散岩类孔隙水与基岩裂隙水。未见明显特殊性岩土。
2.1.3不良地质现象
强风化岩层物理力学性质较差,均匀性差,不宜作为桥墩持力层;中风化岩层物理力学性质比较稳定,分布广泛,可作为桥墩桩基础持力层。另桥址区局部桥墩处于河沟边缘,注意雨季山洪对桥墩的冲刷。
2.2技术标准
(1)设计车速:120km/h。222
(2)设计荷载:公路Ⅰ级。
(3)主线桥标准桥宽为15.5m,0.5m护栏+14.5m行车道+0.5m护栏
(4)高程:
(5)坐标:采用1954北京坐标系
本方案采用2×30m预应力混凝土先简支后结构连续T梁桥,2桥梁全长60m。



目录
第1章 绪论 1
1.1预应力混凝土连续梁桥的发展 1
1.2选题设计思想及意义 2
第2章设计概述 3
2.1工程概述 3
2.1.1 地形、地貌 3
2.1.2 工程地质 3
2.1.3不良地质现象 3
2.2技术标准 3
2.3 设计规范 4
2.4 设计材料 4
2.4.1混凝土 4
2.4.2 钢材 4
第3章 桥梁构造设计 6
3.1桥梁设计原则 6
3.1.1安全性与适用性 6
3.1.2经济性和美观性 6
3.1.2技术先进 6
3.1.2环境保护和可持续发展 6
3.2桥梁方案比选 7
3.3 桥跨总体布置及结构尺寸拟定 10
3.3.1 桥跨布置 10
3.3.2 顺桥向主梁尺寸拟定: 10
3.3.3横桥向主梁尺寸拟定 12
3.3.4 下部结构尺寸拟定 12
第4章 有限元建模 13
4.1 横向分布系数计算 13
4.2 有限元建模过程 15
4.3 Midas/Civil分析过程 15
4.3.1生成荷载组合 15
4.3.2模型分析结果 15
4.3.3 PSC设计 17
第5章 荷载内力计算 19
5.1恒载内力计算 19
5.2活载内力 20
5.3次内力的计算及内力组合 22
5.3.1温度次内力 22
5.3.2支座沉降次内力 28
5.3.3预应力次内力 29
5.3.4收缩次内力 30
5.3.5徐变次内力 31
5.3.6内力组合 31
第6章 预应力钢筋设计及预应力损失计算 36
6.1预应力钢筋设计 36
6.1.1纵向预应力筋估算 36
6.1.2 预应力筋的布置 39
6.2 预应力损失 39
6.2.1钢筋与管道壁之间的摩擦损失 39
6.2.2锚具变形、钢筋回缩损失 40
6.2.3钢筋与台座之间的温差损失 40
6.2.4砼的弹性压缩损失 40
6.2.5钢筋的应力松驰损失 40
6.2.6砼的收缩徐变损失 40
6.2.7 损失计算结果 41
第7章 主要截面的验算 43
7.1承载能力极限状态截面验算 43
7.1.1正截面抗弯验算 43
7.1.2斜截面抗剪验算 43
7.2正常使用极限状态截面验算 44
7.2.1使用阶段正截面抗裂验算 44
7.2.2使用阶段斜截面抗裂验算 45
7.3持久状况和短暂状况构件的应力验算 45
7.3.1使用阶段正截面压应力验算 45
7.3.2使用阶段斜截面主压应力验算 46
7.3.3施工阶段正截面法向应力验算 46
7.3.4受拉区钢筋的拉应力验算 48
7.4.1局部受压区尺寸要求 49
7.4.2局部抗压承载力计算 50
第8章 行车道板计算 52
8.1中间单向板计算 52
8.1.1恒载内力 52
8.1.2活载内力 53
8.2外边梁悬臂板内力计算 54
8.2.1恒载内力 54
8.2.2活载内力 55
8.3荷载组合 55
8.3.1连续板 55
8.3.2悬臂板 56
8.4桥面板配筋 56
8.4.1桥面板配筋 56
8.4.2抗剪验算 57
第9章盖梁计算 58
9.1盖梁自重及内力计算 58
9.2盖梁各截面内力计算 59
9.2.1 结构求解器建模运算 60
9.2.1 结构求解器运算结果 60
9.3盖梁配筋设计 61
9.3.1 弯矩作用下正截面配筋计算 61
9.3.2剪力作用时配筋计算 62
9.4抗裂验算 63
第10章 桥墩计算 66
10.1荷载计算 66
10.2截面配筋计算 67
10.3墩柱截面承载力验算 69
第11章钻孔灌注桩的计算 71
11.1荷载计算 71
11.2桩长计算 71
11.3桩的内力及位移计算 72
11.3.1基本假定 72
11.3.2桩的计算宽度 73
11.3.3桩的变形系数 73
11.3.4桩的变形系数 73
11.3.5桩身最大弯矩位置及弯矩计算 73
11.3.7桩顶纵向水平位移验算 76
11.4桩身截面配筋的计算 77
11.5桩的截面承载力验算 79
参考文献 81
|