{$cfg_webname}
主页 > 土木工程 > 建筑结构 >

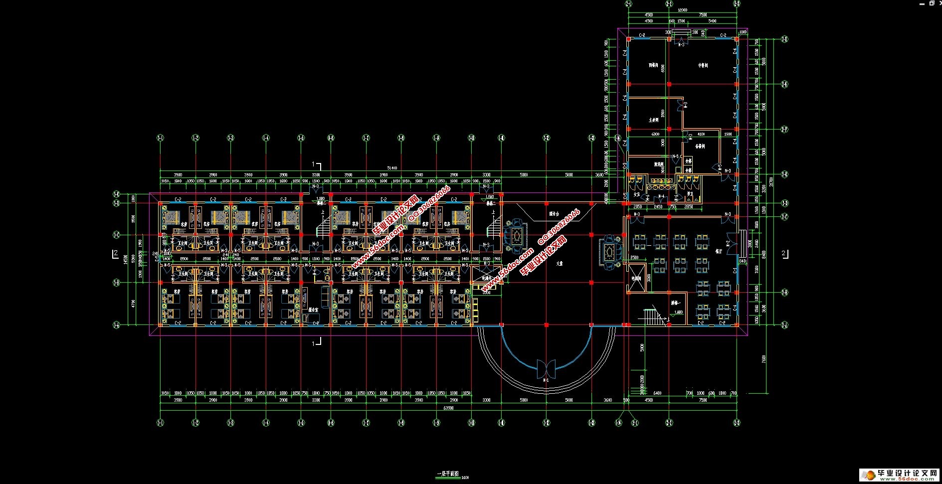
五层5162平米秦皇岛自助式宾馆设计(建筑图,结构图,总平面图)

来源:56doc.com  资料编号:5D14193 资料等级:★★★★★ %E8%B5%84%E6%96%99%E7%BC%96%E5%8F%B7%EF%BC%9A5D14193
资料以网页介绍的为准,下载后不会有水印.资料仅供学习参考之用. 帮助
资料介绍

五层5162平米秦皇岛自助式宾馆设计(建筑图,结构图,总平面图)(计算书7600字,建筑图8张,结构图5张)
工程概况
本设计位于秦皇岛市某大学校内,是一所新建的学生宿舍楼。总建筑面积5162m2。此建筑采用框架结构,整体现浇。根据甲方提出的宿舍使用功能的要求,本建筑采用相同的开间与进深平面规整,对称,有利于建筑物的抗震。屋面防水采用“堵”和“导”相结合的方式。以“堵”为主,是屋面处设有两毡三油柔性防水层;屋顶排水以“导”为主,是采用女儿墙外排水,这样做到二者有机结合,有系统的进行排水本建筑耐火等级为二级,抗震设防烈度为7度。考虑到经济因素,此设计选择了柱下独立基础。
2.   气候条件      
最大冻土厚度为0.85米,室外年最低温度为-21.5摄氏度,年最高温度为33—33.6摄氏度。主导风向:以西南风为盛行风,全年平均风速为18m/s,基本风压为0.4kpa,基本雪压为0.25kpa,冬季起止时间:11月15日—3月15日。夏季起止时间:7月1日—8月31日。
一、毕业设计资料
(一)设计说明:
1、结构形式:框架结构。
2、材料:墙、板、柱、梁、基础的材料。
3、荷载均按《建筑结构荷载规范》(GB 50009-2001)取值。
(二)建筑地点:
秦皇岛市某地(或自己所在地)
(三)气象条件:
1、基本雪压:0.25KN/m2
2、基本风压:0.40KN/m2
3、地基土冻结深度:0.85m。
(五)抗震设防要求:
抗震设防烈度为7度,设计基本地震加速度值为0.17g,设计地震分组为第二组。
 

五层5162平米秦皇岛自助式宾馆设计(建筑图,结构图,总平面图)
五层5162平米秦皇岛自助式宾馆设计(建筑图,结构图,总平面图)
五层5162平米秦皇岛自助式宾馆设计(建筑图,结构图,总平面图)
五层5162平米秦皇岛自助式宾馆设计(建筑图,结构图,总平面图)

 

推荐资料