{$cfg_webname}
主页 > 土木工程 > 建筑结构 >

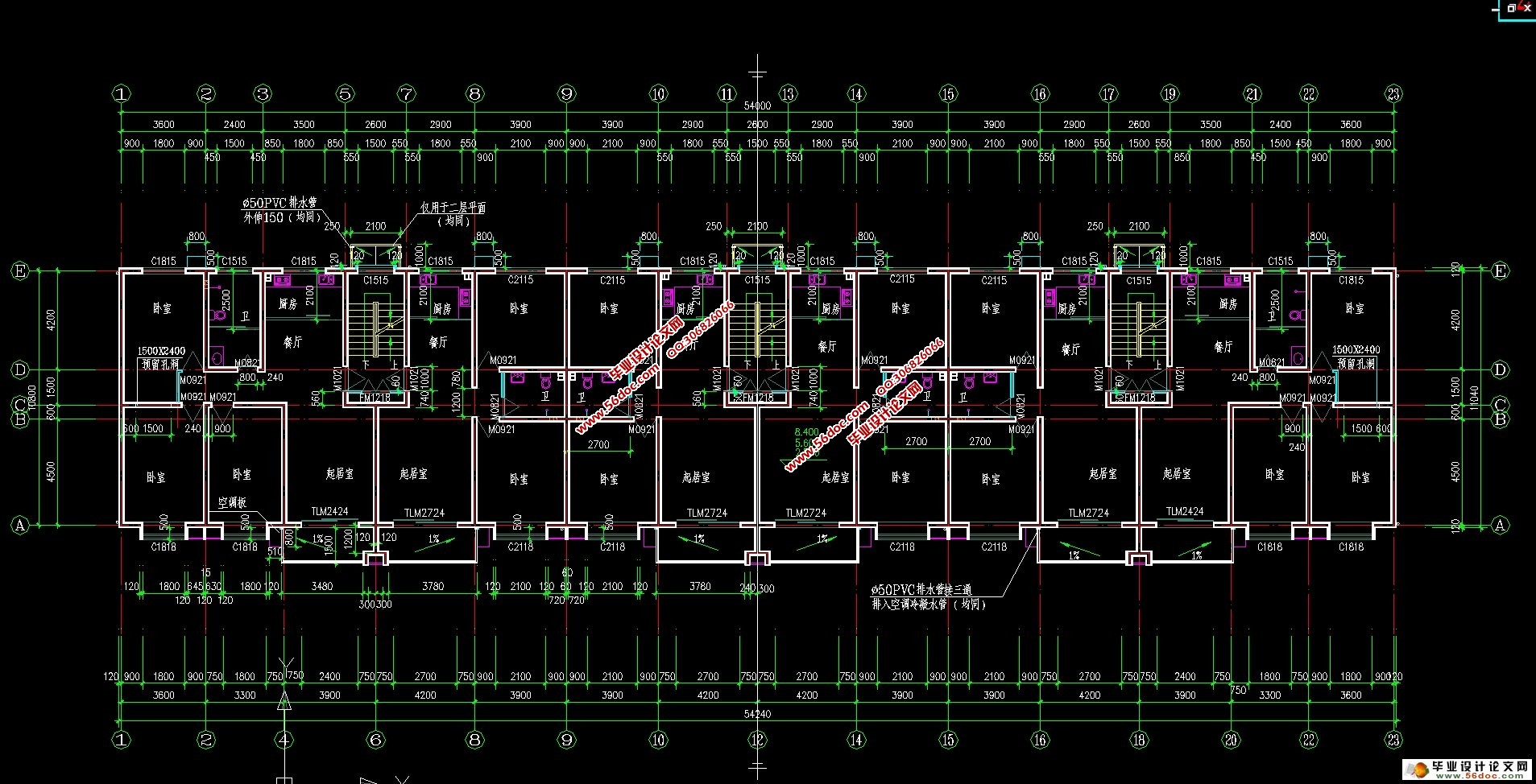
六层(带阁楼)4000平米砌体结构拆迁安置楼建筑结构设计

来源:56doc.com  资料编号:5D14202 资料等级:★★★★★ %E8%B5%84%E6%96%99%E7%BC%96%E5%8F%B7%EF%BC%9A5D14202
资料以网页介绍的为准,下载后不会有水印.资料仅供学习参考之用. 帮助
资料介绍

六层(带阁楼)4000平米砌体结构拆迁安置楼建筑结构设计(工程计算书9200字,建筑图10张,结构图7张)
一、荷载统计
恒、活荷载
1.屋面荷载

1)平屋面 h=120mm 

20厚1:3水泥砂浆找平层                        20×0.02=0.40 KN/㎡
高聚物改性沥青防水卷材                                  0.50KN/㎡
30mm厚1:3水泥砂浆Φ4@200双向配筋             25×0.03=0.75KN/㎡
35厚无溶剂聚氨硬泡保温层                       4×0.035=0.14 KN/㎡
1:8水泥膨胀珍珠岩找坡2%最小40厚  2.5×(0.04+4.2×0.02/2)=0.21 KN/㎡
120厚钢筋混凝土板                              25×0.12=3.0 KN/㎡
涂料顶棚                                               0. 5 KN/㎡

屋面恒荷载合计                    gk   =5.5 KN/㎡ 取5.5 KN/㎡
屋面活载                          qk   =0.5 KN/㎡
屋面荷载:                      5.5+0.5=6.0KN/㎡
屋面荷载设计值          5.5×1.2+0.5×1.4=7.3 KN/㎡

 

六层(带阁楼)4000平米砌体结构拆迁安置楼建筑结构设计
六层(带阁楼)4000平米砌体结构拆迁安置楼建筑结构设计
六层(带阁楼)4000平米砌体结构拆迁安置楼建筑结构设计
六层(带阁楼)4000平米砌体结构拆迁安置楼建筑结构设计
六层(带阁楼)4000平米砌体结构拆迁安置楼建筑结构设计




目  录
一、荷载统计    4
恒、活荷载    4
1.屋面荷载    4
1)平屋面 h=120mm    4
2)坡屋面 h=120mm    4
2.楼面荷载    4
1)    客厅 餐厅 卧室 阁楼h=100mm    4
2)    南阳台h=100mm    5
3.楼梯间楼面荷载(踏步尺寸280×156)    5
二.风荷载    6
二、基础设计    6
1.基础顶荷载标准值    6
2、基础荷载统计及截面设计    9
3.基础配筋计算    9
三、现浇楼板配筋计算    10
1.   3.6m×5.1m    10
2.   3.6m×4.2m    10
3.   3.3m×5.1m    11
4.   3.9m×5.1m    11
5.   4.2m×5.1m    11
6.   3.9m×4.2m    12
四、结构梁配筋计算    12
一)、储藏室~五层    12
1.L01:  b×h=150×250    12
2.L02:  b×h=150×130    13
3.L03:  b×h=150×130    13
4.L04:  b×h=240×300    13
5.L05:  b×h=240×300    13
6.L06:  b×h=240×300    14
7.LL01:  b×h=240×300    14
8.XL01: b×h=240×300    15
二)、六层    15
1.L01: b×h=150×250    15
2.L02: b×h=200×300    15
3.L03: b×h=150×300    16
4.L04: b×h=200×300    16
5.L05:  b×h=240×300    17
6.L06:  b×h=240×300    17
7.L07:  b×h=240×300    17
8.L08:  b×h=150×250    17
9.LL01:  b×h=240×300    18
10.LL02:  b×h=240×300    18
11.XL01: b×h=240×300    18
五、墙体验算    18
一).高厚比验算    18
1)储藏室    19
○1外纵墙 :    19
○2内纵墙:    19
○3内横墙:    19
○4.自承重墙验算h=120mm    19
2)一~五层    19
○1外纵墙 :    19
○2内纵墙:    20
○3内横墙    20
○4.自承重墙验算h=120mm    20
3)六层    20
○1外纵墙 :    20
二).墙体受压计算    20
1.一层    21
2.地下室    21
三).砌体局部受压计算    24
六、楼梯计算    25
1.楼梯板    25
2.平台板    25
3.平台梁    26
七.雨蓬计算:    26
(一)雨蓬板    26
(二)雨蓬梁    27
抗弯计算    27
(三)雨蓬的抗倾覆验算    28
八.抗震验算    29
 

推荐资料