{$cfg_webname}
主页 > 土木工程 > 建筑结构 >

五层3442平米宿舍楼建筑(施工组织)设计(建筑图,横道图)

来源:56doc.com  资料编号:5D14206 资料等级:★★★★★ %E8%B5%84%E6%96%99%E7%BC%96%E5%8F%B7%EF%BC%9A5D14206
资料以网页介绍的为准,下载后不会有水印.资料仅供学习参考之用. 帮助
资料介绍

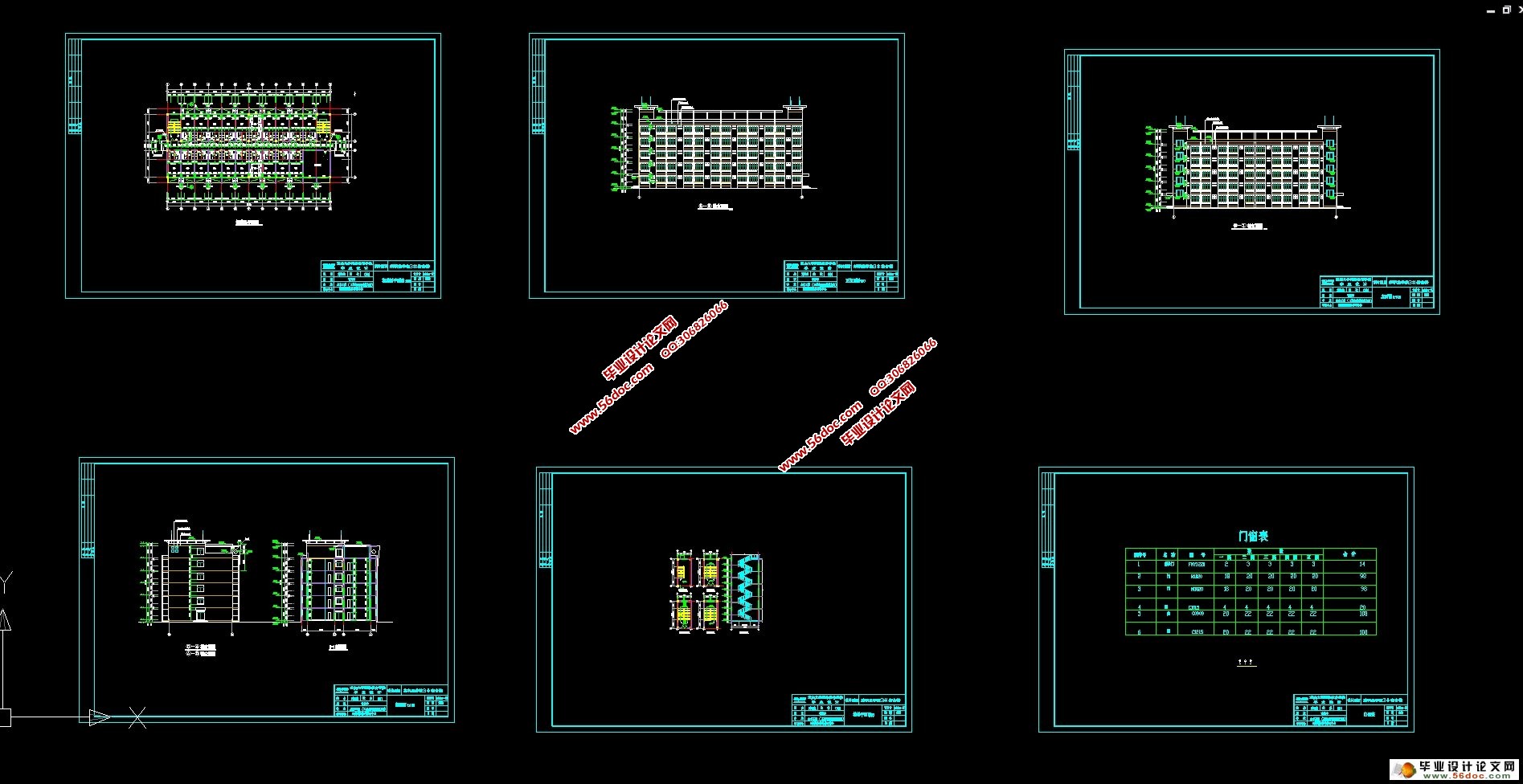
五层3442平米宿舍楼建筑(施工组织)设计(建筑图,横道图)(任务书,设计说明书20000字,计算书,建筑图6张,平面布置和横道图)
本工程为某职业学校3#宿舍楼,该职业学校选址于某市市区,楼层设置为地上5层,总用地面积688.5平方米,总建筑面积3442.5平方米。建筑高度20.9米。每个房间面积25.2平方米;每层设有学生活动室1间,面积为51.1平方米;底层设大厅、值班室。采用框架混凝土结构,平面布置比较灵活,受力良好,梁柱和楼板均为现浇。该地区地震设防烈度6度,框架为三级抗震。设计共分为二个部分:第一部分为建筑设计部分,包括工程概况、设计依据、标高及建筑细部作法;第二部分为施工组织部分,包括施工方案和施工方法、施工进度计划、确定施工平面图、质量保证和安全技术措施、资源供应计划等内容。

工程概况
(1)工程名称:某职业学校3#宿舍楼。
(2)建设地点:某市市区。
(3)建设单位:某职业学校。
(4)建筑面积:3442.5平方米。
(5)建筑占地面积:688.5平方米。
(6)建筑类别:多层;建筑物耐火等级:二级。 抗震设防烈度: 六度。
(7)建筑层数:地上五层。
(8)功能及层高:一~五层均为宿舍等;层高3.3米。
(9)建筑高度:控制高度为:20.9米。
(10)垂直交通组织:本工程设2部楼梯。
(11)屋面防水等级Ⅱ级。
(12)主要结构形式:框架结构。
(13)根据《建筑结构可靠度设计统一标准》(GB50068-2001),本工程结构的设计使用年限为50年。
 

五层3442平米宿舍楼建筑(施工组织)设计(建筑图,横道图)
五层3442平米宿舍楼建筑(施工组织)设计(建筑图,横道图)
五层3442平米宿舍楼建筑(施工组织)设计(建筑图,横道图)
五层3442平米宿舍楼建筑(施工组织)设计(建筑图,横道图)



目   录
摘要…………1
1.建筑设计部分    3
1.1.    工程概况    3
1.2.    设计依据    3
1.3.    标高及建筑细部作法    3
1.4.    建筑设计图纸    5
2.    施工组织部分    12
2.1.    工程概况    12
2.2.    施工平面布置    12
2.3.    施工进度计划    12
2.4.    资源供应计划    12
2.5.    施工方案和施工方法    13
2.6.    质量保证措施    32
2.7.    工期保证措施    32
2.8.安全生产措施    33
2.9.文明施工措施    35
2.10.附表、附图    37
参考文献        45

推荐资料