{$cfg_webname}
主页 > 土木工程 > 建筑结构 >

五层5000平米小学教学楼设计(含PKPM)(建筑图,结构图,总平面图)

来源:56doc.com  资料编号:5D14298 资料等级:★★★★★ %E8%B5%84%E6%96%99%E7%BC%96%E5%8F%B7%EF%BC%9A5D14298
资料以网页介绍的为准,下载后不会有水印.资料仅供学习参考之用. 帮助
资料介绍

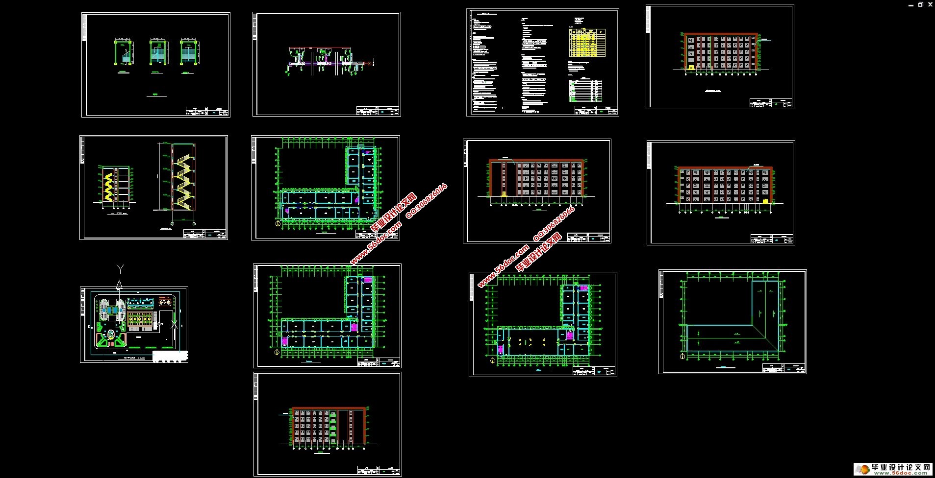
五层5000平米小学教学楼设计(含PKPM)(建筑图,结构图,总平面图)(含选题审批表,任务书,开题报告,中期检查表,外文翻译,实习报告,计算书52000字,建筑图12张,结构图13张)
工程概况
3.1.1 项目名称:九江市某小学教学楼。
3.1.2 建设地点:江西九江。
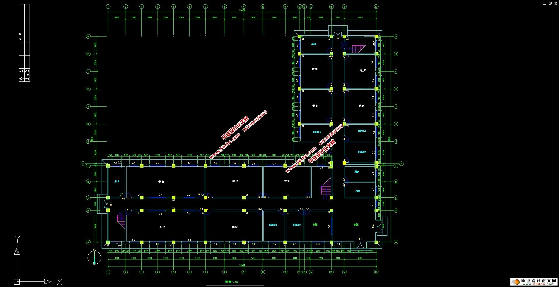
3.1.3 工程概况:该工程为九江市某小学教学楼,永久性建筑,建筑面积为5000m2左右,按规划要求,层数为主体5层,结构形式为框架结构。首层层高3.9 m,其它层层高3.6 m,室内外高差0.45 m.。
3.1.4 气象条件:夏季主导东南风,风荷载基本风压:W0=0.35kN/m2。雪荷载:基本雪压0.30 kN/m2.
3.1.5工程地质条件:场地类别为2类场地,特征周期为0.35s。
3.1.6 地震烈度:抗震设防烈度7度,地震分组第一组,基本加速度0.1g。
 

五层5000平米小学教学楼设计(含PKPM)(建筑图,结构图,总平面图)
五层5000平米小学教学楼设计(含PKPM)(建筑图,结构图,总平面图)
五层5000平米小学教学楼设计(含PKPM)(建筑图,结构图,总平面图)
五层5000平米小学教学楼设计(含PKPM)(建筑图,结构图,总平面图)


目   录
1 引言    1
2 建筑设计部分    1
2.1 平面设计    3
2.2 剖面设计    5
2.3 立面设计    7
2.4 楼梯设计    9
2.5 构造和建筑设计措施    10
2.5.1 墙体    10
2.5.2 楼地层    11
2.5.3 屋顶    12
3 结构设计部分    13
3.1 工程概况    13
3.1.1 项目名称    13
3.1.2 建设地点    13
3.1.3 工程概况    13
3.1.5工程地质条件    14
3.1.6 地震烈度    14
3.2 设计依据    14
3.3 结构布置    14
3.4 截面初估    15
3.4.1 柱截面尺寸    15
3.4.2 梁截面尺寸    15
3.4.3 板截面尺寸    16
3.5 计算简图及刚度计算    16
3.5.1 柱线刚度    16
3.5.2 梁线刚度    16
3.5.3 计算简图    16
3.6 荷载统计    17
3.6.1 屋面恒载    17
3.6.2 楼面恒载    18
3.6.3 梁自重    18
3.6.4 柱自重    18
3.6.5 墙体自重    18
3.6.6 栏杆自重    18
3.6.7 活荷载标准值    18
3.6.8 荷载传递路线    19
3.6.9 框架梁线荷载计算    19
3.6.10 柱顶集中荷载计算    20
3.6.11 风荷载计算    22
3.6.12 地震作用计算    22
3.7 结构变形验算    27
3.7.1 质点的水平地震作用标准值    27
3.7.2 剪重比验算    27
3.8 地震作用下的内力分析    28
3.8.1 各柱每楼层的反弯点高度计算    28
3.8.2 平地震作用下柱端弯矩计算    28
3.9 风载作用下的内力分析    29
3.9.1 各柱每楼层的反弯点高度计算    29
3.9.2 风载作用下柱端弯矩计算    30
3.9.3 由结点平衡求得梁端弯矩    33
3.10 竖向荷载内力分析    35
3.10.1 由均布恒荷载在屋面处引起的固端弯矩    35
3.10.2 由均布恒荷载在楼面处引起的固端弯矩    35
3.10.3 由均布活荷载在楼面、屋面处引起的固端弯矩    35
3.10.4 用弯矩二次分配法求解恒载或活载作用下的弯矩    35
3.11 荷载效应组合    39
3.12 内力调整    44
3.12.1 强柱弱梁原则    44
3.12.2强剪弱弯原则    45
3.13 柱截面设计(以底层A柱为例)    47
3.13.1 正截面承载力计算    47
3.13.2 斜截面受剪承载力计算    49
3.13.3 其余各柱垂直于弯矩方向的承载力验算    49
3.13.4 其余各柱受剪承载力验算    51
3.14 框架梁截面设计    53
3.14.1 跨中最大正弯矩    53
3.14.2 正截面受弯承载力计算    53
3.14.3 斜截面受剪承载力计算    57
3.15 框架节点抗震验算    59
3.15.1 底层A柱节点进行抗震验算    59
4 楼板计算    59
4.1 标准层楼板    59
4.1.1 荷载设计值    60
4.1.2 楼板计算    60
4.2 顶层楼板    71
4.2.1 荷载设计值    71
4.2.2 楼板计算    72
5 楼梯计算    83
5.1 一号楼梯计算(底层)    83
5.1.1 梯段板计算    83
5.1.2 平台板设计    84
5.1.3 平台梁设计    85
5.2 一号楼梯计算(标准层)    86
5.2.1 梯段板计算    86
5.2.2 平台板设计    86
5.2.3平台梁设计    87
5.3 二号楼梯计算(底层)    88
5.3.1 梯段板计算    88
5.3.2 平台板设计    89
5.3.3平台梁设计    90
5.4 二号楼梯计算(标准层)    91
5.4.1 梯段板计算    91
5.4.2 平台板设计    92
5.4.3 平台梁设计    92
6 基础设计    93
6.1 ⑤轴框架A柱独立基础设计    93
6.1.1 初步确定基础高度、埋深    93
6.1.2 确定基础地面面积    94
6.1.3 验算偏心距    94
6.1.4 验算基底最大压力    95
6.1.5 验算基础高度    95
6.1.6 基础底板配筋    96
6.2 ⑤轴框架B柱独立基础设计    97
6.2.1 初步确定基础高度、埋深    97
6.2.2 确定基础地面面积    97
6.2.3 验算偏心距    98
6.2.4 验算基底最大压力    98
6.2.5 验算基础高度    100
6.2.6 基础底板配筋    101
7 PKPM计算书    103
结 论    159
参考文献    161
附录一 柱内力组合表 ………………………… …………… …………… ………………………162
附录二 梁内力组合表 ………………… ……………………………………………………………163

推荐资料