{$cfg_webname}
主页 > 土木工程 > 建筑结构 >

八层12568平米综合实验楼施工组织设计(建筑结构图,网络图,横道图)

来源:56doc.com  资料编号:5D15117 资料等级:★★★★★ %E8%B5%84%E6%96%99%E7%BC%96%E5%8F%B7%EF%BC%9A5D15117
资料以网页介绍的为准,下载后不会有水印.资料仅供学习参考之用. 帮助
资料介绍

八层12568平米综合实验楼施工组织设计(建筑结构图,网络图,横道图)(施工组织设计书45000字,工程量计算,施工计划网络图,施工计划横道图,建筑图9张,结构图7张)
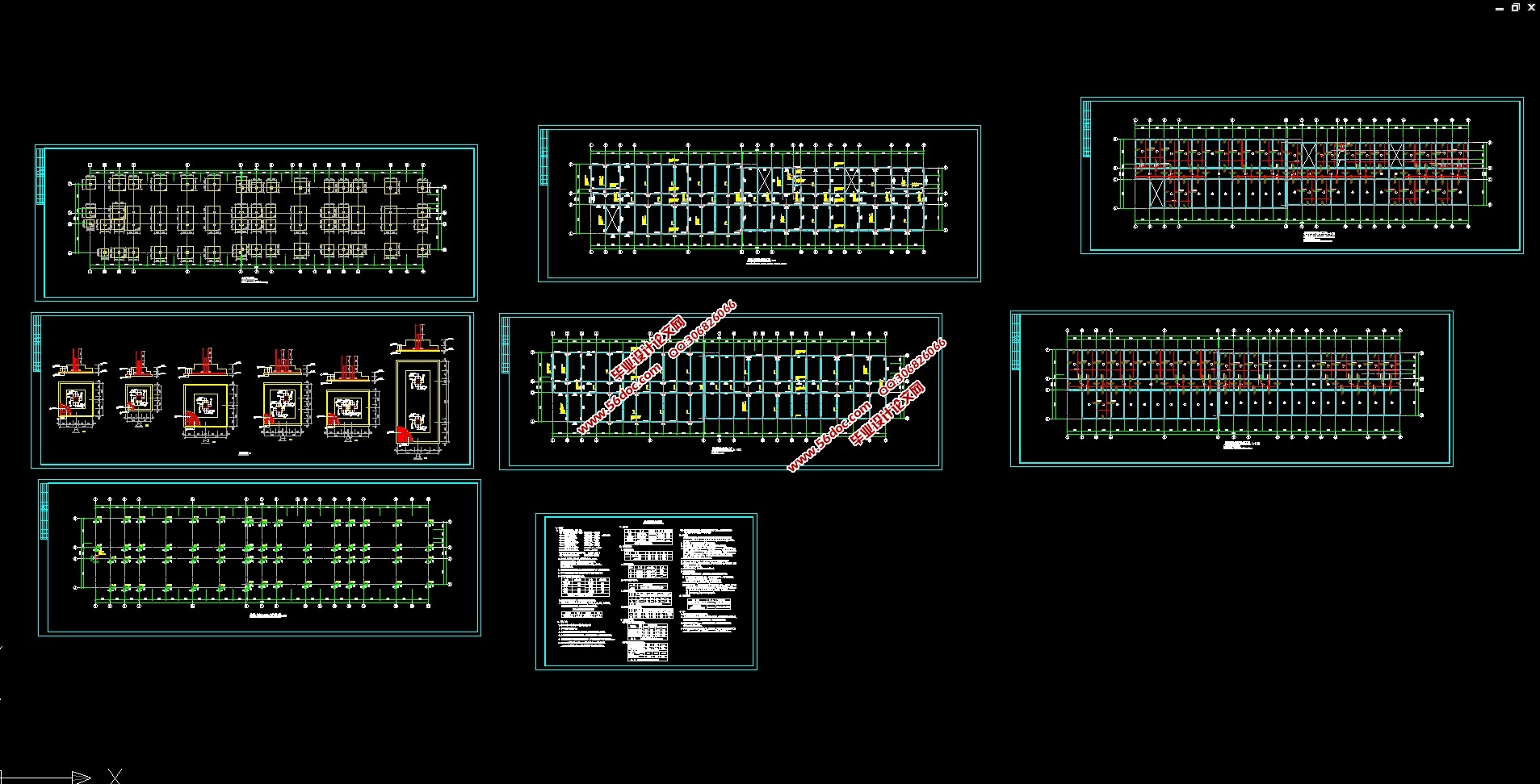
⑴景德镇景德镇电信科技学院综合实验楼,位于有密集建筑群市区,该工程为钢筋混凝土框架结构,总建筑面积12568.0㎡,地上八层,一层层高3.90m,二层层高3.90m,其余各层层高3.90m,总建筑高度31.20m。
⑵施工现场情况
本建筑两侧临近公路,交通方便,实现了三通一平。施工场地相对宽敞,有利于机械的布置和材料周转、施工材料的堆放,施工难度相对较小。
⑶水文、地质条件、气象情况
①气象条件
施工期间正适春夏两季,主导风向为南风、西南风,雨季为七、八月,施工期可能需要考虑冬季施工。
②地质条件
根据工程地质勘察报告:
Ⅰ素填土:层厚0.8-1.8m,建议全部挖除;
Ⅱ粘土:层厚4.6-6.0m, fak=200kPa;
Ⅲ粘土:层厚5.1-6.5m, fak=230kPa;
Ⅳ碎石土:层厚5.0-7.6m, fak=300kPa。
③水文状况
勘查期间钻孔深度范围内未揭露到地下水。
⑷工程结构概况
本工程为钢筋混凝土框架结构,建筑结构安全等级为二级,抗震设防烈度为6度。基础为柱下独立基础,基础、框架梁、板、柱均采用C30,其它采用C10。
 

八层12568平米综合实验楼施工组织设计(建筑结构图,网络图,横道图)
八层12568平米综合实验楼施工组织设计(建筑结构图,网络图,横道图)
八层12568平米综合实验楼施工组织设计(建筑结构图,网络图,横道图)
八层12568平米综合实验楼施工组织设计(建筑结构图,网络图,横道图)
八层12568平米综合实验楼施工组织设计(建筑结构图,网络图,横道图)


目录
第一章编制依据    3
1.1 编制目的    3
1.2 编制依据    3
1.3 有关主要资料清单    3
1.4 编制原则    4
第二章工程概况    5
2.1 工程简介    5
2.2 设计概况    6
2.2.1建筑装饰做法详建筑结构设计总说明    6
2.2.1 结构用材    6
2.3 工程的特点和难点    6
2.3.1 施工工期短,因此对各工序的合理搭接要求高    6
2.3.2 施工质量标准高    7
2.3.3 施工难度高    7
2.3.4 建筑成品、半成品保护要求高    7
第三章 施工部署    8
3.1施工管理目标    8
3.2施工组织管理    8
3.3主要施工方案的选择    10
3.3.1 施工流向    10
3.3.2 施工段的划分    10
3.3.3 主要施工方案选择    10
第四章 施工准备    12
4.1技术准备    12
4.2资源准备    12
4.2.1 劳动力准备    12
4.2.2 施工机械器具准备    13
4.2.3 工程主要材料及周转材料准备    14
第五章 主要分部分项工程施工方法    16
5.1 测量定位放线    16
5.2 基础工程    17
5.3 土方工程    18
5.4 模板工程    19
5.5 钢筋工程    21
5.6 混凝土工程    24
5.7 砌体工程    26
5.8 楼地面工程    27
5.9 屋面工程    29
5.10 脚手架工程    31
5.11 装饰工程    34
1、抹灰工程    34
2、楼地面工程    36
3、门窗工程    40
5、饰面板(砖)工程    44
6、涂饰工程    48
7、保温工程:    50
第六章 主要施工保证措施    54
6.1 施工工期保证措施    54
6.2 施工质量保证措施    56
6.3 职业健康安全、文明现场保证措施    59
6.4 施工现场环境保护和污染控制保证措施    63
6.5 季节施工保证措施    65
第七章 新技术、新工艺、新材料、新设备的应用    68
7.1 目标意义    68
7.2 组织机构及保证措施    68
7.3 应用项目及实施措施    68
第八章 附图    71
8.1 施工现场平面布置图    71
8.2 施工进度计划网络图    71
参考文献    72
致  谢    74

推荐资料