{$cfg_webname}
主页 > 土木工程 > 建筑结构 >

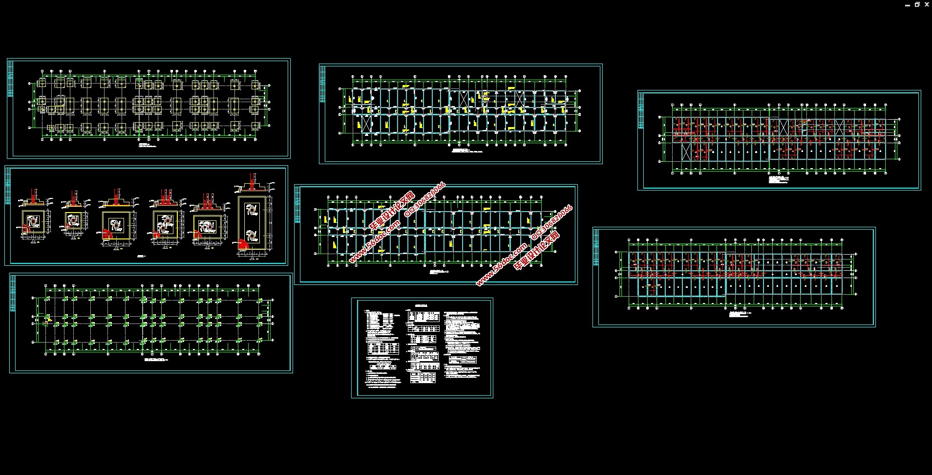
沈阳市七层10633平米某中学教学楼设计(建筑图,结构图)

来源:56doc.com  资料编号:5D15136 资料等级:★★★★★ %E8%B5%84%E6%96%99%E7%BC%96%E5%8F%B7%EF%BC%9A5D15136
资料以网页介绍的为准,下载后不会有水印.资料仅供学习参考之用. 帮助
资料介绍

沈阳市七层10633平米某中学教学楼设计(建筑图,结构图)(开题报告,计算书24000字,建筑图9张,结构图7张)
本设计沈阳市大东区某中学教学楼设计。该大楼层数为7层,主框架高度为27.3m,结构类型为钢筋混凝土框架结构。
1.1 设计原始资料
1.1.1 工程概况
该工程主体为现浇钢筋混凝土框架结构,建筑面积10633.0㎡,建筑物共7层,底层层高3.9m,标准层层高3.90m,顶层层高3.90m,总高度27.3m,室内外高差0.450m
该教学楼拥有音乐教室、普通教室、教研室、图书馆等。楼内设有2台电梯3个楼梯,楼梯的布置均符合消防、抗震的要求。
1.1.2 设计条件
该工程重要性等级为四级,本地区极端最高气温35℃,极端最低气温-10℃。年降雨量734mm,平均相对湿度75%。主导风向为东南风。拟建场地内无地表水系分布。
1.抗震设防烈度:7度设防,设计基本地震加速度值为0.10g;
2.基本风压:0.40KN/m2,B类粗糙度;
3.雪荷载标准值:0.30KN/m2;
4.结构体系:现浇钢筋混凝土框架结构;
5.工程地质条件:拟建场地地形平坦,地层分布较为规律,地基承载力按135KN/m2计。
1.2 建筑设计要求
1.2.1基本要求:
建筑需满足功能要求,根据已有的设计规范,满足房间采光、通风良好,备个功能区联系方便,不相互干扰;立面设计美观大方,有一定的特色,并绘制建筑施工图。
1.2.2规定绘制的建筑施工图为:
具体要求详任务书
1.3结构设计任务及要求
1.3.1基本要求:
在建筑方案设计的基础上,正确选择合理的结构形式,结构体系及结构布置,掌握多层建筑结构的计算方法和基本构造要求,绘制结构施工图及详图。
1.3.2规定绘制的结构施工图为:
具体要求详任务书
1.3.3结构设计计算书内容:
说明结构方案如何确定的,材料选择。列出结构设计计算过程中采用的计算方法、计算假定、计算原则、计算简图、荷载统计,内力计算,内力组合及计算配筋结果。
 

沈阳市七层10633平米某中学教学楼设计(建筑图,结构图)
沈阳市七层10633平米某中学教学楼设计(建筑图,结构图)
沈阳市七层10633平米某中学教学楼设计(建筑图,结构图)
沈阳市七层10633平米某中学教学楼设计(建筑图,结构图)


目录
摘要    4
前言    5
第一章 设计任务及基本要求    6
1.1 设计原始资料    6
1.2 建筑设计要求    6
1.3结构设计任务及要求    6
第二章 建筑设计说明    7
2.1建筑平面设计    7
2.2剖面设计    7
第三章 结构设计    9
3.1 结构方案的选择及结构布置    9
第四章 侧移线刚度计算    12
第五章 恒荷载作用下内力计算    13
5.1 框架恒荷载标准值计算    13
5.2 框架梁恒载作用下线荷载统计计算    14
5.3 框架节点集中荷载计算    17
5.4 恒载作用下框架梁的内力计算    20
第六章 活荷载作用下内力计算    28
6.1 框架梁活恒载作用下线荷载统计计算    28
6.2 活荷载作用下框架节点集中荷载计算    30
6.3 活载作用下框架梁的内力计算    32
第七章 风荷载作用下内力计算    39
7.1 风荷载标准值计算    39
7.2 风载作用下抗侧移刚度D的计算:    39
7.3 风荷载作用下的内力计算    41
第八章 地震荷载作用下内力计算    46
8.1 重力荷载代表值计算    46
8.2 横向框架自振周期计算    47
8.3 横向水平地震作用计算    48
8.4 水平地震作用下框架的内力计算    50
第九章 内力组合    55
9.1 横向框架梁的内力组合    56
9.2 竖向框架柱的内力组合    62
第十章 截面设计    68
10.1 设计内力    68
10.2 梁截面设计    68
10.3 框架柱截面设计    71
第十一章 基础设计    74
第十二章 板的设计    75
第十三章 楼梯设计    77
结论    78
谢辞    79
参考文献    80

 

推荐资料