{$cfg_webname}
主页 > 土木工程 > 建筑结构 >

三层3000平米框架结构中学教学楼设计(建筑图,结构图)

来源:56doc.com  资料编号:5D16647 资料等级:★★★★★ %E8%B5%84%E6%96%99%E7%BC%96%E5%8F%B7%EF%BC%9A5D16647
资料以网页介绍的为准,下载后不会有水印.资料仅供学习参考之用. 帮助
资料介绍

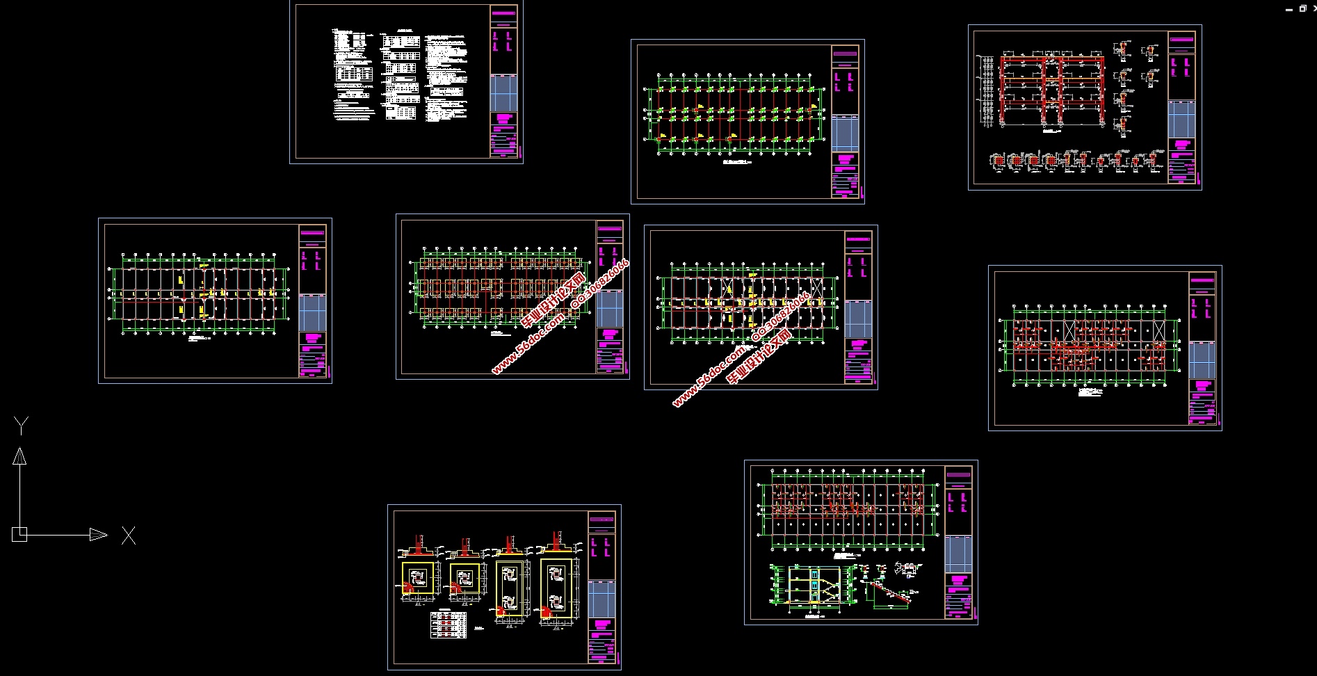
三层3000平米框架结构中学教学楼设计(建筑图,结构图)(计算书20000字,建筑图6张,结构图8张)
设计主体是三层框架结构,选择一榀框架计算。
框架结构的计算部分包括:梁板柱尺寸的初步确定,重力荷载标准值的计算,横向框架侧移刚度的计算,水平地震力作用下的内力计算和侧移计算,水平风荷载作用下的侧移验算,(风荷载作用在内力组合时不与考虑)。
竖向荷载作用下的框架内力计算,主要包括恒荷载和活荷载作用下的内力计算。
内力组合主要是水平地震作用、恒荷载作用、活荷载作用之间的组合。
截面设计包括梁的截面设计和柱的界面设计,梁的界面设计包括正截面验算和斜截面验算,柱的截面设计包括轴压比的验算和正截面验算和斜截面验算和结点设计。
板的设计采用的是双向板。
基础设计包括荷载计算,基础承载力计算,冲剪验算,基础配筋计算。
楼梯设计包括梯段设计、平台梁设计、平台板设计、楼梯的配筋计算。

1 工程概况
1.1 工程简介
该工程为现浇钢筋混凝土框架结构,建筑面积3045.0㎡,建筑物共3层,底层层高3.9m,标准层层高3.90m,顶层层高3.90m,总高度11.7m,室内外高差0.450m
该教学楼拥有普通教室、会议室、值班室、开水房等。楼内设有2个楼梯,楼梯的布置均符合消防、抗震的要求。
1.2 设计条件
1.2.1工程地质条件
拟建场地地形平坦,地层分布较为规律,地基承载力按300KN/m2计。拟建场地内无地表水系分布。
1.2.2气象资料
该工程重要性等级为四级,本地区极端最高气温35℃,极端最低气温-10℃。年降雨量700mm,平均相对湿度75%。主导风向为东南风。
基本风压:0.4KN/m2,B类粗糙度;
雪荷载标准值:0.25KN/m2;
1.2.3抗震设防烈度
7度设防,设计基本地震加速度值为0.15g;
1.2.4材料等级
结构体系:现浇钢筋混凝土框架结构;
混凝土强度等级:除基础垫层混凝土选用C15,基础及基础以上各层混凝土均选用C30。
钢筋级别:框架梁、柱,板等主要构件的纵向受力钢筋选择HRB400级钢筋;构造钢筋、箍筋均选用HPB300。

 

三层3000平米框架结构中学教学楼设计(建筑图,结构图)
三层3000平米框架结构中学教学楼设计(建筑图,结构图)
三层3000平米框架结构中学教学楼设计(建筑图,结构图)
三层3000平米框架结构中学教学楼设计(建筑图,结构图)
三层3000平米框架结构中学教学楼设计(建筑图,结构图)


摘要    4
Abstract    5
引  言    6
1 工程概况    7
1.1 工程简介    7
1.2 设计条件    7
1.2.1工程地质条件    7
1.2.2气象资料    7
1.2.3抗震设防烈度    7
1.2.4材料等级    7
2 建筑设计    8
2.1建筑平面设计    8
2.2建筑立面设计    8
2.3建筑剖面设计    8
2.4垂直交通设计    9
2.5建筑防火设计    9
3 结构设计    9
3.1 结构设计概况    10
3.1.1 结构体系选择    10
3.1.2 承重方案选择    10
3.1.3 结构平面布置图    10
3.1.4一榀框架计算简图    10
3.2 结构设计概况    11
3.2.1 梁截面尺寸估算    11
3.2.2 柱截面尺寸估算    11
4 横向框架在水平地震作用下的内力和侧移计算    12
4.1 重力荷载代表值计算    12
4.1.1 屋面及楼面永久荷载、可变荷载计算    12
4.1.2 梁柱自重计算    13
4.1.3 墙体门窗自重计算    13
4.1.4 各层重力荷载代表值计算    21
4.2 横向框架侧移刚度计算    23
4.2.1 梁柱线刚度计算    23
4.2.2 侧移刚度D计算    24
4.3水平地震作用标准值及楼层地震剪力计算    24
4.3.1 结构基本自振周期计算    24
4.3.2 水平地震作用及楼层地震剪力计算    25
4.4 水平地震作用下的侧移计算    26
4.5 水平地震作用下的内力计算    27
4.5.1 反弯点高度计算    27
4.5.2 柱端弯矩及剪力计算    27
4.5.3 梁端弯矩及剪力计算    28
4.5.4 柱轴力计算    28
5 横向框架在风荷载作用下内力和侧移计算    29
5.1 各层楼面处的集中风荷载标准值计算    30
5.1.1 风荷载标准值计算    30
5.1.1风荷载节点集中荷载计算    30
5.2 水平风载作用下侧移计算:    30
5.3 水平风荷载作用下的内力计算    32
5.3.1 反弯点高度计算    32
5.3.2 柱端弯矩及剪力计算    33
5.3.3 梁端弯矩及剪力计算    33
5.3.4 柱轴力计算    35
6 横向框架在竖向荷载作用下的计算简图和内力计算    36
6.1 选取计算单元    37
6.2 荷载计算    37
6.2.1 恒荷载计算    37
6.2.2 活荷载计算    38
6.3 恒载作用下的内力计算    39
6.3.1 用弯矩二次分配法计算梁端及柱端弯矩    40
6.3.2 计算梁柱剪力及柱轴力    40
6.4 活载作用下的内力计算    43
6.4.1 用弯矩二次分配法计算梁端及柱端弯矩    43
6.4.2 计算梁柱剪力及柱轴力    46
7 内力组合    49
7.1 一般规定    50
7.1.1 梁端负弯矩调幅    50
7.1.2 控制截面和最不利内力    50
7.1.3 荷载效应组合种类    50
7.2 框架梁的内力组合    51
7.3 框架柱的内力组合    56
8 框架截面设计    60
8.1 框架梁截面设计    61
8.1.1 框架梁正截面受弯承载力计算    61
8.1.2 框架梁斜截面受剪承载力计算    63
8.2 框架柱截面设计    64
8.2.1 框架柱正截面受压承载力计算    64
8.2.2 框架柱斜截面受剪承载力计算    65
8.3 配筋图    66
参考文献    66
附录    67

推荐资料