{$cfg_webname}
主页 > 土木工程 > 建筑结构 >

七层4900平米商住楼设计(建筑图,结构图,含电算)

来源:56doc.com  资料编号:5D16711 资料等级:★★★★★ %E8%B5%84%E6%96%99%E7%BC%96%E5%8F%B7%EF%BC%9A5D16711
资料以网页介绍的为准,下载后不会有水印.资料仅供学习参考之用. 帮助
资料介绍

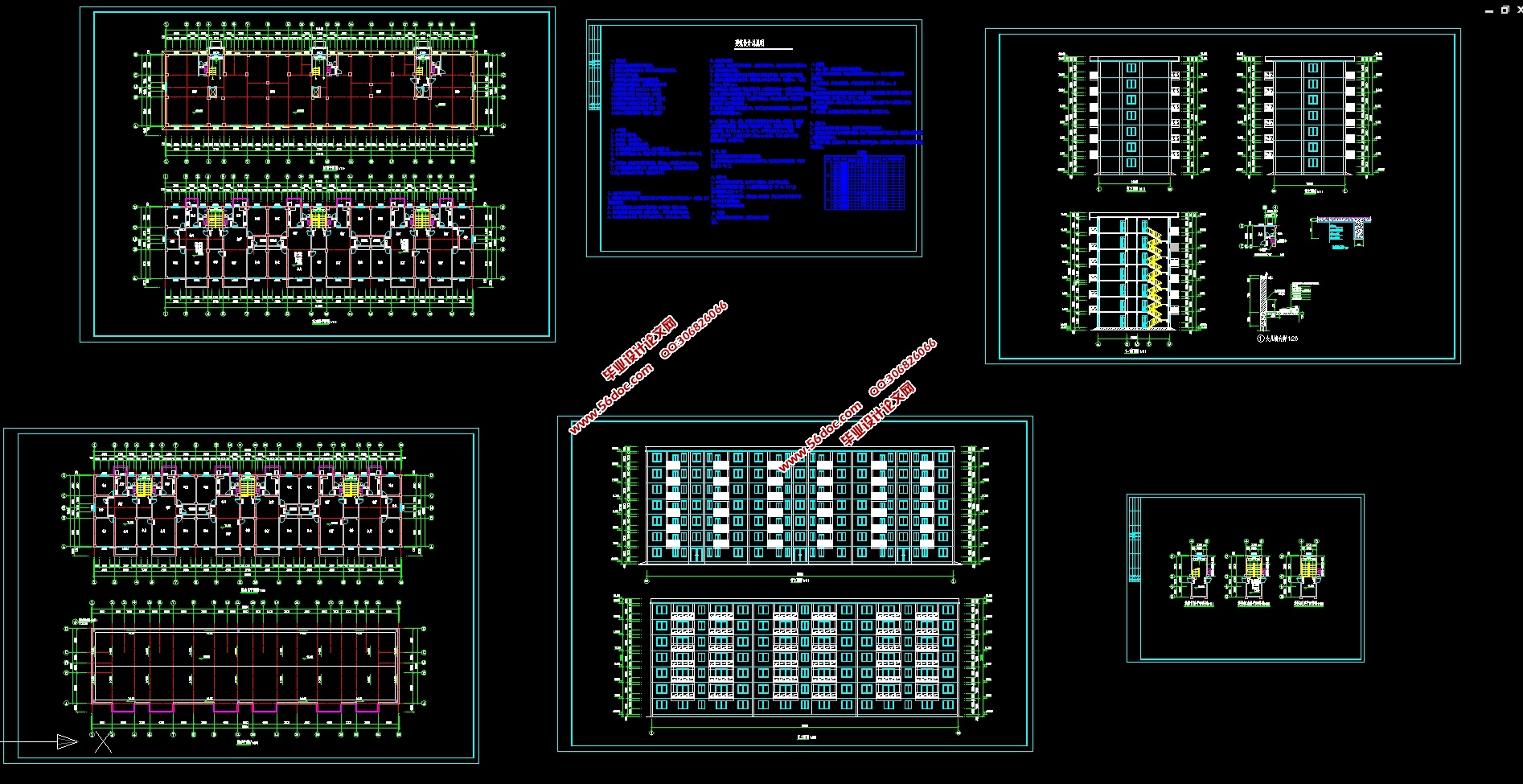
七层4900平米商住楼设计(建筑图,结构图,含电算)(计算书24000字,含电算,建筑图5张,结构图10张)
工程概况
该工程主体为现浇钢筋混凝土框架结构,建筑面积4900.0㎡,建筑物共7层,底层层高2.8m,标准层层高2.80m,顶层层高2.80m,总高度19.6m,室内外高差0.450m
该商住楼拥有商场、餐厅、客厅、卫生间等。楼内设有一台电梯一个楼梯,楼梯的布置均符合消防、抗震的要求。
1.1.2 设计条件
该工程重要性等级为四级,本地区极端最高气温40℃,极端最低气温-6℃。年降雨量700mm,平均相对湿度75%。主导风向为东南风。拟建场地内无地表水系分布。
1.抗震设防烈度:8度设防,设计基本地震加速度值为0.35g;
2.基本风压:0.35KN/m2,B类粗糙度;
3.雪荷载标准值:0.20KN/m2;
4.结构体系:现浇钢筋混凝土框架结构;
5.工程地质条件:拟建场地地形平坦,地层分布较为规律,地基承载力按220KN/m2计。
 

七层4900平米商住楼设计(建筑图,结构图,含电算)
七层4900平米商住楼设计(建筑图,结构图,含电算)
七层4900平米商住楼设计(建筑图,结构图,含电算)
七层4900平米商住楼设计(建筑图,结构图,含电算)
七层4900平米商住楼设计(建筑图,结构图,含电算)


目录
摘要    4
前言    5
第一章 设计任务及基本要求    6
1.1 设计原始资料    6
1.2 建筑设计要求    6
1.3结构设计任务及要求    6
第二章 建筑设计说明    7
2.1建筑平面设计    7
2.2剖面设计    7
第三章 结构设计    9
3.1 结构方案的选择及结构布置    9
第四章 侧移线刚度计算    12
第五章 恒荷载作用下内力计算    13
5.1 框架恒荷载标准值计算    13
5.2 框架梁恒载作用下线荷载统计计算    14
5.3 框架节点集中荷载计算    17
5.4 恒载作用下框架梁的内力计算    20
第六章 活荷载作用下内力计算    28
6.1 框架梁活恒载作用下线荷载统计计算    29
6.2 活荷载作用下框架节点集中荷载计算    31
6.3 活载作用下框架梁的内力计算    32
第七章 风荷载作用下内力计算    42
7.1 风荷载标准值计算    42
7.2 风载作用下抗侧移刚度D的计算:    43
7.3 风荷载作用下的内力计算    44
第八章 地震荷载作用下内力计算    51
8.1 重力荷载代表值计算    51
8.2 横向框架自振周期计算    52
8.3 横向水平地震作用计算    53
8.4 水平地震作用下框架的内力计算    55
第九章 内力组合    60
9.1 横向框架梁的内力组合    61
9.2 竖向框架柱的内力组合    70
第十章 截面设计    75
10.1 设计内力    75
10.2 梁截面设计    75
10.3 框架柱截面设计    78
第十一章 基础设计    81
结论    89
谢辞    90
参考文献    91

推荐资料