{$cfg_webname}
主页 > 土木工程 > 建筑结构 >

单层2970平米试验中心机械加工车间厂房设计(建筑图,结构图)

来源:56doc.com  资料编号:5D16713 资料等级:★★★★★ %E8%B5%84%E6%96%99%E7%BC%96%E5%8F%B7%EF%BC%9A5D16713
资料以网页介绍的为准,下载后不会有水印.资料仅供学习参考之用. 帮助
资料介绍

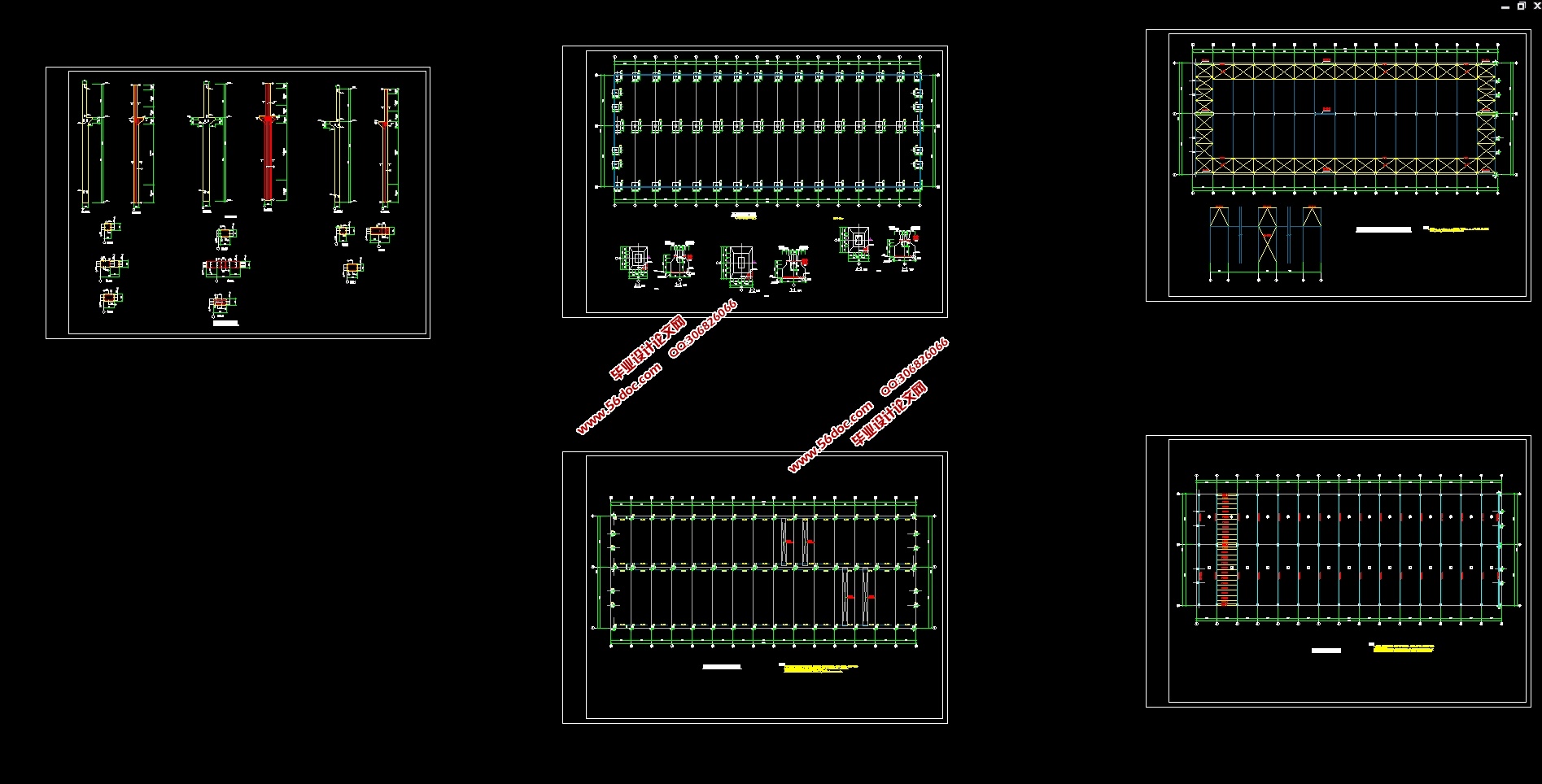
单层2970平米试验中心机械加工车间厂房设计(建筑图,结构图)(计算书20700字,建筑图3张,结构图5张)
课题概述:结构工程试验中心拟建一机械加工车间,在生产过程中不排放浸蚀性气体和液体,生产环境的温度低于60度,屋面无积灰荷载。该车间为两跨(18+15m)等高钢筋混凝土柱厂房,厂房长度为90米,安装有4台(每跨两台)大连重工起重集团生产的DQQD型,工作级别为A5、起重量为20/5t、吊车跨度分别为16.5和13.5的电动桥式吊车。吊车轨顶标志标高为9.5m。生活用房建筑面积为2000m2,包括部分办公用房和工人宿舍。

工程说明
建筑面积:(18+15)×90=2970㎡;跨度:18m和15m双跨;纵向柱距 6m;结构形式:单层双跨装配式钢筋混凝土等高排架结构,砖墙围护;起重设备:4台(每跨两台)大连重工起重集团生产的DQQD型,工作级别为A5、起重量为20/5t、跨度分别为16.5和13.5的电动桥式吊车;柱顶标高12.3m。
 

单层2970平米试验中心机械加工车间厂房设计(建筑图,结构图)
单层2970平米试验中心机械加工车间厂房设计(建筑图,结构图)
单层2970平米试验中心机械加工车间厂房设计(建筑图,结构图)
单层2970平米试验中心机械加工车间厂房设计(建筑图,结构图)


目录
摘要:    4
前言    4
1. 毕业设计课题任务书    6
2. 厂房结构设计    6
2.1   结构设计资料    6
2.1.1  建设地点     6
2.1.2  工程说明    6
2.1.3  地质条件    7
2.1.4  材料条件    7
2.1.5  地震地质条件    7
2.1.6  构件选择    7
2.2 厂房结构计算简图    8
2.3  荷载统计计算    8
2.3.1 自重恒载    8
2.3.2  屋面活荷载    10
2.3.3  吊车荷载    10
2.3.4  风荷载    10
2.4 内力分析    12
2.4.1恒荷载作用下结构内力分析    12
2.4.2屋面活荷载作用下结构内力分析    13
2.4.3 风荷载作用下结构内力分析    16
2.4.4 吊车荷载作用下结构内力分析    17
2.5排架柱内力组合    23
2.6 排架柱配筋演算    32
2.6.1 柱的截面配筋    32
2.6.2 柱的裂缝宽度验算    35
2.6.3 牛腿设计    38
2.6.4 柱吊装验算    39
2.7 基础设计    41
2.8 过梁、圈梁、雨棚,支撑设计    45
2.8.1窗过梁计算    45
2.8.2外墙圈梁计算    47
2.8.3雨篷计算    47
2.8.4纵向柱间支撑    48
2.9 厂房横向地震作用和结构抗震验算    49
2.9.1 抗震结构计算简图    50
2.9.2 厂房自振周期    52
2.9.3 水平地震作用    52
2.9.4 吊车桥架的横向水平地震作用    52
2.9.5 排架地震作用效应计算    53
2.9.6 排架地震作用效应和其他荷载效应的组合及验算    54
2.10 山墙抗风柱的设计    55
4致  谢    57
参考文献    58

推荐资料