六层7100平米天津某中学教学楼设计(建筑图结构图)(任务书,开题报告,外文翻译,论文计算书30000字,建筑图8张,结构图13张,手绘图)
摘 要
本设计为天津某中学教学楼设计,主要设计内容包括建筑设计与结构设计。
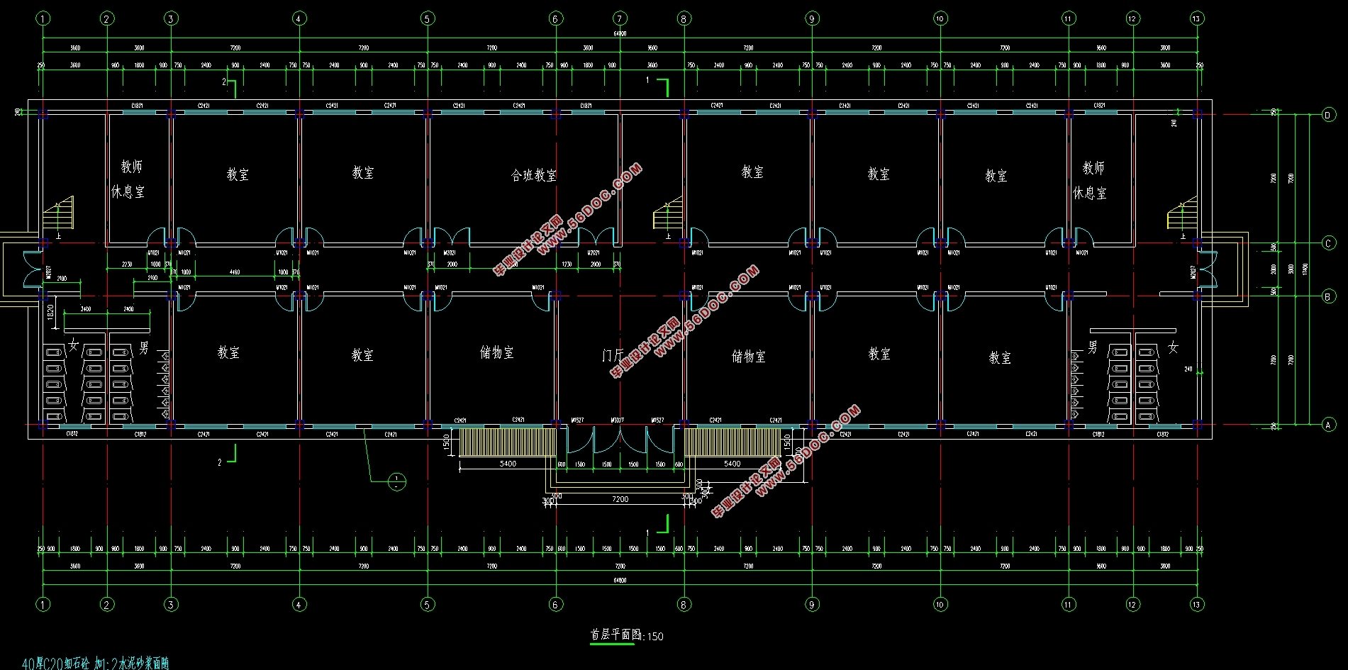
本设计为六层框架结构,建筑面积7115.00m2,建筑平面、立面体型规则。
建筑设计包括首层、标准层、顶层建筑平面图,屋顶排水平面图,建筑正立面、左立面、背立面图,教室和楼梯处剖面图以及相关的设计说明和门窗表。
结构设计包括框架设计、梁板柱的配筋计算、基础配筋计算和楼梯设计。本计算书着重取一榀横向框架计算水平、竖向荷载作用下结构内力,并进行内力组合找出最不利组合,计算配筋。其中设计涉及到底部剪力法、D值法、二次弯矩分配法、塑性铰线法等方法,严格依据《建筑结构荷载规范》GB50009-2012、《混凝土结构设计规范》GB50010-2010、《建筑抗震设计规范》GB50011-2010等规范取值计算。
本计算书最后采用PKPM4.3.4版本软件进行建模计算并将手算与电算结果进行对比分析,利用软件得出硂结构施工图。
关键词:建筑设计,结构设计,规范,PKPM
Abstract
The design for a secondary school building design in Tianjin, the main design content, including architectural design and structural design.
The design for the six-story frame structure, construction area of 7115.00m2, building plane, vertical body rules.
The architectural design includes the first floor, standard floor, the sixth floor building plan, the roof drainage floor plan, the building facade, the left facade, the back facade map, the classroom and staircase section, the related design description and doors and windows table.
Structural design includes frame design, reinforcement of beam and column columns, foundation reinforcement calculation and stair design. The calculation of this book focuses on a horizontal frame calculation level, vertical load under the structure of internal forces, and the combination of internal forces to find the most unfavorable combination of calculation reinforcement. Which is related to the bottom of the shear force method, D value method, the second bending moment distribution method, plastic hinge method and other methods, strictly based on "building structure load specification" GB50009-2012, "concrete structure design specifications" GB50010-2010, " Code for seismic design of buildings "GB50011-2010.
This calculation book finally uses PKPM4.3.4 version software to carry on the modeling computation and carries on the contrast analysis to the calculation result with the calculation result, uses the software to draw the construction plan.
Keywords: architectural design;structural design;specification;PKPM
1.1设计摘要
本设计为天津某中学教学楼设计,主要设计内容包括建筑设计和结构设计两部分。
建筑设计包括平面、立面和剖面设计。该教学楼(不包含散水和台阶)长64.8m,宽17.4m,高22.65m,占地面积为1169.00m2(不包含散水和台阶),建筑面积为7115.00m2。层数6层,层高多为3.6m,室内外高差0.45m。外墙厚240mm,内墙厚200mm,女儿墙高1.2m,墙厚240mm,屋面为不上人屋面。
结构设计包括框架设计、构件设计和基础设计等,其中,框架采用钢筋混凝土纵横向框架承重布置方案,基础采用钢筋混凝土柱下独立基础。
1.2工程概况
本工程为钢筋混凝土框架结构,填充墙采用加气混凝土砌块。设计使用年限为50年,防火等级为二级,建筑安全等级为二级,地面粗糙度为B类。
依据《建筑结构荷载规范》GB50009-2012,天津市基本雪压S0=0.40kN/m2,基本风压ω0=0.50kN/m2。
依据《建筑抗震设计规范》GB50011-2010,本建筑按抗震设防烈度8度第二组,设计基本地震加速度值为0.20g,抗震等级为一级。
Ⅱ类场地,地表下土层分布均匀,地基承载力特征值ƒak=200kPa。







目录
第1章 绪论 1
1.1设计摘要 1
1.2工程概况 1
1.3设计依据 1
1.4结构选型 2
1.5结构缝设置 2
1.6地基与基础 2
1.7建筑平面规则性 2
第2章 构件截面尺寸及结构简图 3
2.1结构平面布置 3
2.2梁、板、柱截面尺寸 4
2.2.1梁截面尺寸 4
2.2.2柱截面尺寸 4
2.2.3板截面尺寸 4
2.3基础埋深 4
2.4框架计算简图 5
第3章 框架刚度计算 6
3.1梁柱线刚度 6
3.2侧向刚度 7
3.3横向框架侧向刚度比验算 8
第4章 重力荷载和水平荷载计算 9
4.1重力荷载标准值 9
4.1.1屋面和楼面永久荷载标准值 9
4.1.2屋面和楼面可变荷载标准值 9
4.1.3梁、柱重力荷载标准值 9
4.1.4墙体重力荷载标准值 10
4.2重力荷载代表值 10
4.3水平地震作用计算 12
4.3.1结构自振周期 12
4.3.2水平地震影响系数 12
4.3.3水平地震作用标准值 12
4.4风荷载作用计算 14
第5章 水平荷载作用下框架结构分析 16
5.1水平地震作用 16
5.1.1剪重比和侧移验算 16
5.1.2内力计算 17
5.2风荷载作用 21
5.2.1侧移验算 21
5.2.2内力计算 21
第6章 竖向荷载作用下框架结构分析 26
6.1计算单元简图 26
6.2荷载计算 26
6.2.1恒载计算 27
6.2.2活载计算 30
6.3内力计算 34
6.3.1恒载内力 34
6.3.2活载内力 42
第7章 内力组合 49
7.1弯矩调幅 49
7.2内力调整 51
7.3内力组合 59
第8章 梁、柱、板截面设计 85
8.1梁截面设计 85
8.1.1内力组合和步骤 85
8.1.2设计参数 85
8.1.3配筋计算 85
8.2柱截面设计 95
8.2.1内力组合和步骤 95
8.2.2设计参数 95
8.2.3配筋计算 95
8.3双向板配筋 108
8.3.1设计参数 108
8.3.2内力计算 109
8.3.3配筋计算 109
第9章 基础设计 111
9.1设计资料 111
9.2基础梁 111
9.3边柱独立基础 111
9.3.1荷载计算 111
9.3.2基础底面尺寸 112
9.3.3基础立面尺寸 113
9.3.4基础配筋 114
9.4中柱联合基础 116
9.4.1荷载计算 116
9.4.2基础尺寸 117
9.4.3基础内力计算 117
9.4.4基础高度验算 118
9.4.5基础配筋 119
第10章 楼梯设计 121
10.1设计参数 121
10.2梯段板设计 121
10.3斜梁设计 122
10.4平台板设计 124
10.5平台梁设计 125
第11章 手算与电算结果对比分析 127
11.1内力对比分析 127
11.2内力组合对比分析 127
结论 129
参考文献 130
致谢 131
|