六层5600平米江苏徐州某门诊保健大楼设计(含建筑图结构图)
来源:56doc.com 资料编号:5D28142 资料等级:★★★★★ %E8%B5%84%E6%96%99%E7%BC%96%E5%8F%B7%EF%BC%9A5D28142
资料以网页介绍的为准,下载后不会有水印.资料仅供学习参考之用. 密 保 惠 帮助
资料介绍
六层5600平米江苏徐州某门诊保健大楼设计(含建筑图结构图)(设计计算书15000字,CAD建筑图11张,CAD结构图7张)
摘 要
根据建筑方案图,本工程结构为六层现浇钢筋混凝土多层框架结构。设计使用年限为50年;结构安全等级为二级;抗震设防烈度为7度;设计基本地震加速度值为0.10g;框架的抗震等级为二级;采用独立基础,地基基础设计等级丙级;建筑室内外高差450mm,室外标高即为现有自然地面标高。
根据建筑设计和结构承重、抗震方面的要求以及场地地质条件,合理地进行结构选型和结构整体布置,确定各种结构构件的尺寸,选取一榀主要横向结构框架进行结构设计计算,用计算结构力学程序对该榀结构框架进行电算与手算结果进行对比分析;完成楼梯设计和基础设计;用PkPM软件对整栋框架结构进行PkPM电算;绘制出相关建筑和结构施工图。
通过本模拟设计,可使学生综合土木工程专业各课程的知识,了解建筑设计方法,熟悉结构设计与分析过程。
关键词:弯矩;剪力;配筋;抗震
Jiangsu Xuzhou medical university outpatient health building design
Abstract
According to the construction plan map, the project structure for the six multi-cast reinforced concrete frame structure. Design life of 50 years; structural safety class II; seismic intensity of 7 degrees; basic design earthquake acceleration value of 0.10g; seismic level framework for secondary; construction; using an independent foundation, foundation design grade C indoor and outdoor height 450mm, outdoor e×isting is natural ground level elevation .
According to architectural design and structural loading, seismic requirements and site geological conditions, a reasonable structural selection and the overall layout of the structure to determine the dimensions of various structural components, Select a transverse specimens of the main structural framework for structural design calculations. Select a transverse specimens of the main structural framework for structural design calculations. Computational Structural Mechanics program with structural framework of the specimens of Computing and hand-calculated results were compared, complete staircase design and foundation design. PkPM software used throughout the frame structure PkPM Computing. Mapping out the architectural and structural drawings.
Through this simulation designed to allow students' comprehensive knowledge of the various programs in Civil Engineering, understanding approach to building design, familiar with structural design and analysis process.
keyword: moment; shear; reinforcement; seismic
根据建筑方案图,本工程结构为六钢筋混凝土框架,建筑面积约5600m2,建筑图具体见图纸,其它条件如下:
1. 气象资料
(1)基本风压值: W0 = 0.35 kN/m2
(2)基本雪压值: S0 = 0.35 kN/m2
2. 水文地质资料
场地条件:
拟建场地地表平整,现场地标高变化范围在6.72-7.25 m,土层分布见图1-10。
场地地下水类型上层滞水,水位在地表下1.8 m。
场地土层等效剪切波速为145 m/s,3m≤dov≤50m。






目录
第一章 设计资料及要求•••••••••••••••••••••••••••••••••••1
1.1工程概况••••••••••••••••••••••••••••••••••••••••••••1
1.2设计内容及要求••••••••••••••••••••••••••••••••••••••2
第二章 确定计算简图•••••••••••••••••••••••••••••••••••••4
2.1计算简图••••••••••••••••••••••••••••••••••••••••••••4
2.2梁柱截面尺寸••••••••••••••••••••••••••••••••••••••••4
2.2材料强度等级••••••••••••••••••••••••••••••••••••••••5
2.4荷载计算 •••••••••••••••••••••••••••••••••••••••••••5
第三章 框架内力计算••••••••••••••••••••••••••••••••••••15
3.1恒载作用下框架内力•••••••••••••••••••••••••••••••••15
3.2活载作用下框架内力•••••••••••••••••••••••••••••••••24
3.3风荷载作用下内力计算•••••••••••••••••••••••••••••••31
3.4地震作用下横向框架内力计算•••••••••••••••••••••••••36
第四章 框架内力组合•••••••••••••••••••••••••••••••••••附表
第五章 框架梁柱截面设计•••••••••••••••••••••••••••••••附表
第六章 楼梯结构计算设计••••••••••••••••••••••••••••••••47
6.1 梯段计算•••••••••••••••••••••••••••••••••••••••••••48
6.2休息平台板1计算••••••••••••••••••••••••••••••••••••49
6.3梯段梁TL1计算•••••••••••••••••••••••••••••••••••••49
第七章、现浇楼面板设计••••••••••••••••••••••••••••••••••51
7.1求支座中点最大弯矩••••••••••••••••••••••••••••••••• 51
7.2区格(A)•••••••••••••••••••••••••••••••••••••••••• 53
7.3区格(C)•••••••••••••••••••••••••••••••••••••••••••54
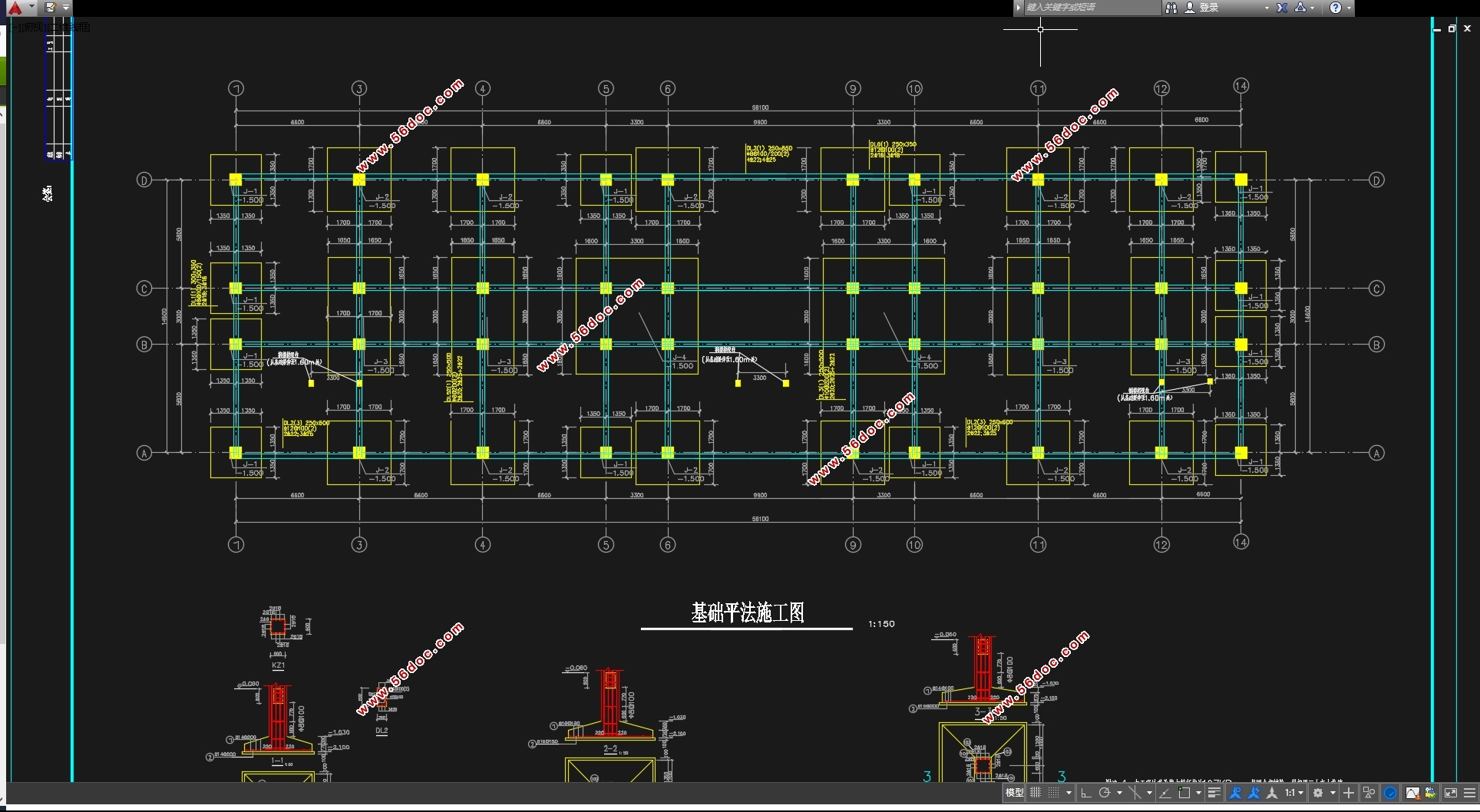
第八章、基础设计••••••••••••••••••••••••••••••••••••••••56
8.1荷载计算•••••••••••••••••••••••••••••••••••••••••••56
8.2确定基底面积•••••••••••••••••••••••••••••••••••••••57
8.3地基变形验算•••••••••••••••••••••••••••••••••••••••61
8.4基础结构设计•••••••••••••••••••••••••••••••••••••••63
第九章、PKPM软件在框架结构设计中的应用••••••••••••••••67
参考文献••••••••••••••••••••••••••••••••••••••••••••••• 69
致谢•••••••••••••••••••••••••••••••••••••••••••••••••70
附录••••••••••••••••••••••••••••••••••••••••••••••••••••71
|