{$cfg_webname}
主页 > 土木工程 > 工程管理 >

五层4165平米镇江市图书发行大厦办公楼施工组织设计(含建筑结构图)

来源:56doc.com  资料编号:5D28470 资料等级:★★★★★ %E8%B5%84%E6%96%99%E7%BC%96%E5%8F%B7%EF%BC%9A5D28470
资料以网页介绍的为准,下载后不会有水印.资料仅供学习参考之用. 帮助
资料介绍

五层4165平米镇江市图书发行大厦办公楼施工组织设计(含建筑结构图)(开题报告,外文翻译,施工组织设计15000字,CAD建筑图7张,CAD结构图10张)
项目概况
    1.1.1项目名称:镇江市图书发行大厦办公楼设计(方案一)(以下简称本项目或本工程)。
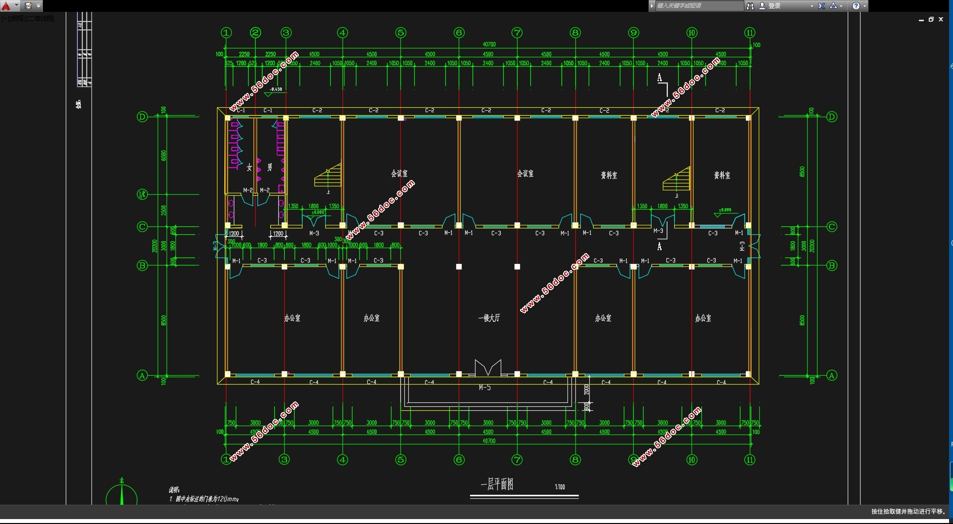
     1.1.2建筑规模与特点:本毕业设计题目为拟建工程,位于镇江市,该工程为镇江市图书发行大厦办公楼,采用钢筋混凝土框架结构体系。该楼单层建筑面积约800m2,该楼主体为三跨五层,建筑面积约4165m2。在正常情况下,本工程的合理设计使用年限为50年。抗震设防烈度为7度,设计基本地震加速度值为0.10g。按照勘察报告,工程场地Ⅱ类,采用独立基础。
1.2 设计概况
1.2.1 建筑设计概况
1.    墙体:±0.000m以下采用240(200)厚MU7.5封底多排孔混凝土小砌块,Mb10水泥砂浆砌筑;±0.000m以上外墙采用250(200)MU7.5封底多排孔混凝土小砌块,Mb7.5水泥砂浆砌筑,内墙采用200厚或100厚50号加气混凝土砌块,不小于Mb5混合砂浆砌筑。
2.    外墙:基层为20~30厚1:3水泥砂浆粉刷,面层涂刷高级外墙涂料,外墙砂浆内可能将掺入聚丙单丝纤维,以有利于外墙粉刷抗裂缝。
3.    内装修:地面:素土夯实,70厚道碴夯实,80厚C20混凝土,内配φ4@200双向随捣随光。墙面基层:一般内墙为20厚混合砂浆,东北西面外墙内侧为JS保温砂浆粉刷;平顶为刮腻子打光顶;楼梯间墙面为1:2水泥砂浆粉刷。楼地面面层:卫生间为20厚1:2水泥砂浆面层;其它部位为30或40厚的石屑混凝土面层。精装修另定。
4. 门窗:采用彩铝门窗,5mm厚普通白片玻璃,卫生间配磨砂或压花玻璃。各单元装防盗门。楼梯间门为乙级防火门。沿天山路为中空玻璃。
1.2.2 结构设计概况
1.    本工程抗震设防烈度为7度,抗震重要性类别为丙类,建筑高度≤80m时,剪力墙抗震等级为三级,框架为二级;建筑高度>80m时,剪力墙抗震等级为二级,框架为一级;地下车库的抗震等级为三级。
2.    混凝土强度等级:基础垫层C20;PHC管桩为C30。基础底板至三层面为C30;三层面以上为C30。地下国库均为C30。地下结构混凝土的抗渗等级均为0.6MPa。
3.    钢材采用普通热轧Ⅰ、Ⅱ级钢筋,分别按设计抗震等级要求来布置框架及剪力墙钢筋接头。
 

五层4165平米镇江市图书发行大厦办公楼施工组织设计(含建筑结构图)
五层4165平米镇江市图书发行大厦办公楼施工组织设计(含建筑结构图)
五层4165平米镇江市图书发行大厦办公楼施工组织设计(含建筑结构图)
五层4165平米镇江市图书发行大厦办公楼施工组织设计(含建筑结构图)
五层4165平米镇江市图书发行大厦办公楼施工组织设计(含建筑结构图)
五层4165平米镇江市图书发行大厦办公楼施工组织设计(含建筑结构图)
五层4165平米镇江市图书发行大厦办公楼施工组织设计(含建筑结构图)
五层4165平米镇江市图书发行大厦办公楼施工组织设计(含建筑结构图)


目 录
第一章 工程概况…………………………………………………………………1
1.1 项目概况……………………………………………………………………1
1.1.1 项目名称……………………………………………………………1
1.1.2 建筑规模与特点…………………………………………………1
1.2 设计概况………………………………………………………………1
1.2.1 建筑设计概况………………………………………………………1
1.2.2 结构设计概况………………………………………………………2
1.3 场地概况与地质情况………………………………………………………2
1.3.1 地质情况………………………………………………………2
1.3.2 结构设计概况………………………………………………………2
1.4 施工条件……………………………………………………………3
1.4.1 施工现场条件………………………………………………………3
1.5 本项目主要特点……………………………………………………………3
1.5.1 施工主要特点………………………………………………………3
第二章 施工方案及施工方法…………………………………………………5
2.1 分布分项工程………………………………………………………5
2.1.1 基底的处理…………………………………………………………5
2.1.2 模板与支撑………………………………………………………5
2.1.3 模板的拆除………………………………………………………6
2.1.4 钢筋工程………………………………………………………6
2.1.5 混凝土工程………………………………………………………7
2.1.6 对商品混凝土的要求………………………………………………7
2.1.7 屋面工程………………………………………………………8
第三章 施工进度计划…………………………………………………………10
3.1 施工目的…………………………………………………………………10
3.2 施工顺序与流水段的划分………………………………………………10
3.3 施工协调………………………………………………………………10
第四章 资源需求计划…………………………………………………………12
4.1 劳动力需求计划…………………………………………………………12
4.2 机械设备需求计划………………………………………………………12
第五章 施工准备工作计划……………………………………………………14
5.1施工现场准备工作计划…………………………………………………14
5.2 物质准备工作计划………………………………………………………14
5.3 施工技术准备工作计划…………………………………………………14
5.4 劳动力施工准备………………………………………………………15
5.4.1 项目组织管理机构………………………………………………15
5.4.2 各部门分工……………………………………………………16
第六章 施工现场总平面布置图……………………………………………17
6.1 施工平面的总原则……………………………………………………17
6.1.1施工平面布置的原则……………………………………………18
6.1.2施工道路的布置…………………………………………………18
6.1.3临时围墙的布置……………………………………………19
6.1.4施工机械的布置…………………………………………………19
6.1.5临时生活区的布置………………………………………………20
6.2 施工总平面示意图……………………………………………………20
第七章 施工技术措施…………………………………………………………21
7.1 季节性施工措施…………………………………………………………21
7.1.1 夏季高温安全生产措施…………………………………………21
7.1.2雷雨季节安全施工措施…………………………………………21
7.1.3台风天气安全施工措施…………………………………………22
7.2 主要施工工序质量技术保证措施………………………………………22
7.2.1 保证模板工程质量措施…………………………………………22
7.2.2保证钢筋工程施工质量措施……………………………………23
7.2.3 保证砼施工质量措施……………………………………………24
7.2.4 保证墙体砌筑施工质量措施…………………………………27
7.2.5 水泥砂浆楼地面质量控制措施…………………………………27
     7.2.6 厨卫间防水措施…………………………………………………28
7.3 文明施工及安全施工………………………………………………29
7.3.1 安全生产措施……………………………………………………29
7.3.2 消防措施…………………………………………………………30
7.3.3文明施工措施……………………………………………………30
 

推荐资料