某高层办公楼的消防给排水系统设计(含CAD图)(设计说明书14000字,CAD图纸17张)
摘要
高层建筑火灾具有救援难度高,外部救援效果不佳等特点[1],因此高层建筑本身的消防设计就具有很大意义。基于此,本论文针对某高层办公楼的消防给排水系统进行设计,设计的主要内容包括消火栓给水系统以及自动喷淋灭火系统的设计计算,并在此基础上完成水泵的选型、消防水池和消防水箱等参数的确定[2]。
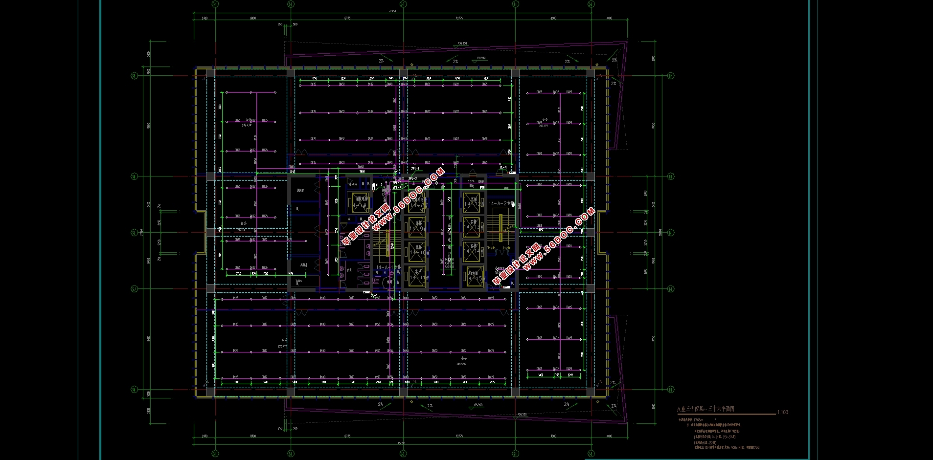
本建筑地下3层,地上37层,建筑总高155m。由于建筑总高超过100米,所以本设计采用消防水泵串联分区的形式进行分区供水[3]。通过设计计算,完成了消火栓系统和自喷系统的平面布置及系统图绘制,计算得到消火栓系统低区设计流量为54L/s,水泵扬程为150.43m,高区设计流量为54.02L/s,水泵扬程为110.67m;自喷系统共设置了5717个喷头,低区设计流量为37.21L/s,水泵扬程为143.3m;高区设计流量为30.5L/s,水泵扬程为97.05m。高位水箱的有效容积为100m3,低区高位水箱有效容积为60m3,消防蓄水池有效容积为717.37m3。
本设计参考消防给水相关规范、手册,设计结果具有科学性、可行性,相关计算数据具有真实性、可靠性[4]。
关键词:消火栓系统自动喷水灭火系统分区供水消防设计
Design of fire water supply and drainage system for a high-rise office building
Abstract
High-rise building fire has the characteristics of high difficulty in rescue and poor external rescue effect[1], so the fire protection design of high-rise building itself has great significance. Based on this, this paper designs the fire-fighting water supply system of a high-rise office building. The main contents of the design include the design and calculation of the hydrant water supply system and the fire extinguishing system. On this basis, the parameters of pump selection, fire pool and fire tank are determined[2].
The building has 3 floors underground and 37 floors above ground. The total height of the building is 155m. Since the total height of the building exceeds 100m, the design uses the fire water pump in the form of a series partition to provide district water supply[3]. Through the design calculation, the plane layout and system diagram of the fire hydrant system and the self-spraying system were completed. The design flow rate of the fire hydrant system in the low zone was 54L/s, the pump lift was 150.43m, and the design flow in the high zone was 54.02L/s. The lift is 110.67m; the self-spraying system has a total of 5,715 nozzles, the low-zone design flow is 37.21L/s, the pump lift is 143.3m, the high-zone design flow is 30.5L/s, and the pump lift is 97.05m. The cubage of the high water tank is 100m3, thecubage of the transfer tank is 60m3, and the cubage of the fire pool is 717.37m3.
The design refers to relevant norms and manuals of fire water supply. The design results are scientific and feasible, and the relevant calculation data are authentic and reliable[4].
Key Words:Fire hydrant system; Automatic sprinkler system; Subarea water supply; Fire protection design
工程设计概况
本论文设计的是某高层办公楼的消防给排水系统,该办公楼建筑地下有3层,地上37层,建筑总高155m,危险等级为中危险级Ⅰ级。其中地下2、3层为地下车库,6层和22层为避难层,37层为电梯机房层,其他楼层作为商业、餐饮、办公用途。屋顶设有直升机停机坪为消防救援提供条件。





目录
摘 要 I
Abstract II
目 录 III
第一章 概述 1
1.1 研究意义及目的 1
1.1.1研究意义 1
1.1.2研究目的 1
1.2 工程概况 1
1.3 设计依据 1
1.4 设计任务 2
1.4.1消火栓系统设计 2
1.4.2自动喷水灭火系统设计 2
1.4.3绘制图纸 3
第二章 消火栓系统设计 4
2.1 消火栓系统的组成 4
2.2 室外消火栓系统设计 4
2.2.1室外消火栓系统的选型 4
2.2.2室外消火栓设计流量及布置数量 4
2.3 室内消火栓系统设计 4
2.3.1室内消火栓设计参数 5
2.3.2消火栓的平面布置 6
2.3.3消火栓系统的设计计算 8
2.3.4室内消火栓系统水泵选型 14
2.3.5增压稳压设备 15
2.3.6消火栓系统水泵接合器设置 16
2.3.7室内消火栓系统的减压 17
第三章 自喷系统设计 20
3.1 系统的组成与工作原理 20
3.2 自喷系统设计参数 20
3.3 喷头和管网布置 21
3.3.1自喷系统布置要求 21
3.3.2喷头具体布置 22
3.4 自喷管网水力计算 23
3.4.1管网水力损失计算公式 23
3.4.2低区最不利管路水力计算 24
3.4.3高区最不利管路水力计算 26
3.4.4喷淋泵的选择 28
3.4.5增压稳压设备 29
3.4.6水泵接合器设置 30
3.4.7自喷系统的减压 30
第四章 消防水箱与消防水池设计 33
4.1 屋顶高位水箱设计 33
4.2 避难层转输水箱设计 33
4.2 消防水池设计 34
总结 35
参考文献 36
致谢 37
|