南京卫生学校教学楼给水排水工程设计(附CAD图)
来源:56doc.com 资料编号:5D22986 资料等级:★★★★★ %E8%B5%84%E6%96%99%E7%BC%96%E5%8F%B7%EF%BC%9A5D22986
资料以网页介绍的为准,下载后不会有水印.资料仅供学习参考之用. 密 保 惠 帮助
资料介绍
南京卫生学校教学楼给水排水工程设计(附CAD图)(任务书,开题报告,论文说明书12000字,CAD图22张)
摘 要
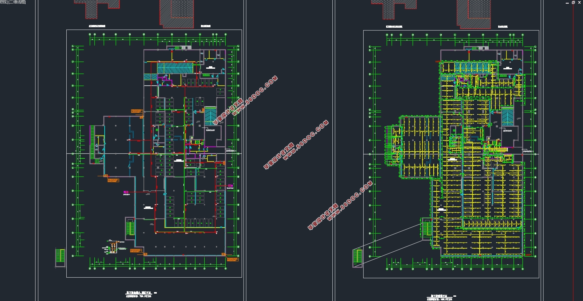
本设计一层至地上四层为市政管网直供,五至十一层为变频泵供水的给水方式。直供部分从市政给水管网接一根DN100的引入管,另两根DN80和DN150的引入管接至地下一层生活水箱和消防水池。排水采用生活污、废水合流制。通气管除一层排水外均采用专用通气立管通气。泵房排水槽经汇集排至地下一层污水井,经潜污泵提升排至检查井再经过化粪池处理后排入市政排水管。屋面雨水排放选择重力式雨水系统,雨水经屋面雨水斗收集后由雨水管排至检查井。
根据规范,该建筑属中度危险二级。室内消防流量20L/s,室外40L/s。充实水柱取12m,水龙带长度取25m,水枪喷嘴流量5L/s,消防立管管径为DN100、DN150。在顶层设试验消火栓。
该建筑采用湿式自动喷淋灭火系统,报警阀设于地下一层,各层均设水流指示器、末端试水装置和信号阀,其信号均送入消防控制中心进行处理。屋顶水箱为15立方米为消防水箱,贮存10min自动喷水灭火系统、室内消火栓系统用水量。自动喷水灭火系统和消火栓系统的初期灭火由水箱供水,后期供水由地下室的消防水泵和自喷泵供水。
关键词:给水系统、排水系统、消火栓系统、自动喷水灭火系统、雨水系统
Abstract
In this design,on the 1F to the 4F for municipal services tube the net keep provide,5 to 11F is frequency conversion water supply pump as the water supply way. Keep provide part the net connect lead of a DN100 into the tube from the municipal services water pipe,another two lead of DN80 and DN150 into tube connect to -1 F life pond and fire fight pond. Life pond and fire fight pond adoption the brick carve concrete structure and placed in the basement. Drainage using domestic sewage and wastewater combined system. Except the drainage system of 1F to 3F use stack vent, the other are used specific vent stack. The pump house drain slot through gather together row to the -1 F sewage well,through submersible sewage pumps promote row to check well again through septic tank processing rear row go into municipal services drain pipe. Building 4 F above of life the soil pipe is in the 3 F hang the crest,each unit life soil pipe appropriate gather together conversion to arrive drain to sign tube rear row outdoors. Select gravity roof rainwater drainage system. House noodles rain water through the house noodles rain roof drain after collection from rain water tube the row go to the check well.
According to the codes,the building is class one fireproof construction,belongs to one class of medium degree dangerous. Indoor fire fight discharge is 20 L/s and outdoor is 40 L/s,full water spout is 12m,hoses is 25 m,water gun spray the mouth discharge is 5 L/s,and the fire standpipe diameter is DN100,DN150. In the top set a fire hydrant as an experiment hydrant. All hydrant cabinet set a long-distance leave start fire fight pump of button.
The building is arranged with wet pipe fire sprinkler system. Alarm valve is arranged on the basement. Each floor should set a flow indicator,End water-test equipment and signal valve,its signal all send into fire fight control center to carry on processing. The automatic sprinkler system is divided into four zones. The fire tank is 18 cubic meters,have 10min fire water storage. Automatic sprinkler system and hydrant system of initial stage extinguish fire from the water tank supply water. Latter water supply is supply by fire pump and spray pump in the basement.
Keyword: Water-supply system、Drainage system、Hydrant system、Automatic sprinkler system、Rainwater system
1.1 工程概况
南京卫生学校为新建高层建筑,建筑层数:地下一层,地上十一层;建筑总高度为45m,总建筑面积约2.1万平方米,地下室为设备房和停车库;一至十层为教学办公区,十一层为多功能用途区,包括机房、办公室和会议室,并设有中央空调系统。
2.1给水系统
本建筑工程为教学楼,以城市给水管网为水源。酒店高度为45m,属于高层建筑,市政管网的资用水头为0.28MPa,不能满足高区用水要求,考虑二次加压,根据设计资料,可供选择的供水方式如下:
(1)方案1:高位水箱并联给水
供水系统主要由贮水池、加压水泵、高位水箱和配水管网组成。高位水箱在给水系统中的作用,主要是贮水、调节水量和稳定水压。高位水箱并联给水方式是各分区独立设置水箱和水泵,水泵集中布置在建筑底层和地下室,分别向各区供水。
优点:由于各区是独立的供水系统,供水安全可靠;水箱分散设置,各区水箱容积小,有利于结构设计,运行动力费用经济;水泵集中布置,便于维护管理。
缺点:水泵台数多,供水高压管路长,投资费用高,水箱占用上层建筑的面积较多,安装维护较麻烦,有水泵振动、噪声干扰较大等。
(2)方案2:水泵变频调速供水
此系统通过改变电机定子的供电频率来改变电机的转速,从而使水泵的转速发生变化,调节水泵的转速,可以改变水泵的流量、扬程和功率,使出水量适应用水量的变化,并使水泵变流量供水时保持高效运行。变频调速水泵的运行通常是控制水泵出水管处压力恒定。因变频调速水泵的变速、变流量只有在一定的范围内才能保持高效运行,故选用调速水泵与恒速水泵组合供水方式可取得更好的节能效果。为避免给水系统在小流量用水时,水泵的工作效率低,可选用配有小型水泵和小型气压罐的变频调速供水装置,在系统用水量小时变频调速水泵停止运行,利用小型气压罐供水。
变频调速供水的优点是:
①高效节能,当系统用水量减少时,水泵降低转速运行,根据相似定律,水泵的轴功率与转速的三次方成正比,转速下降时轴功率下降大,所以变速调节流量在提高机械效率和减少能耗方面是显著的,该设备比一般设备节能10%~40%。
②设备占地面积小,不设高位水箱,减少了建筑负荷,节省水箱占地面积,避免了水质的二次污染。
采用分区供水,一到四层为低区,由市政管网直接供水。五层到十一层为高区,采用一组调速泵供水。此系统无生活高位水箱,少了一个水质可能受污染的环节,水压稳定,是目前建筑高度小于100m的高层建筑供水方式的主流。而在屋顶设生活水箱的方式是将水一次加压至屋顶水箱,再自流分区减压供水。由于存在不节能和减压阀减压值(或减压比)大,一旦减压阀失灵对阀后用水存在隐患,以及屋顶水箱存在水质污染的威胁,且固定的屋顶水箱在地震时存在鞭稍效应,对建筑物安全不利等原因考虑,所以不提倡作为主要的供水方式。


目 录
摘 要 I
ABSTRACT II
第一章 给排水工程设计任务书 1
1.1 工程概况 1
1.2设计依据 1
1.3 设计内容 1
1.4设计图纸及要求 1
1.4.1设计说明书 1
1.4.2图纸内容 2
1.4.3设计进度计划 2
第二章 设计说明书 3
2.1给水系统 3
2.2排水系统 4
2.3消火栓给水系统 4
2.4自动喷淋系统 5
第三章 计算说明书 6
3.1给水系统 7
3.1.1用水量计算 7
3.1.2室内给水管网水力计算 8
3.1.3设备的计算与选择 11
3.1.4 生活贮水池容积计算 11
3.2排水系统 12
3.2.1卫生器具排水定额及排水管道设计秒流量公式的确定 12
3.2.2建筑内排水管道计算 13
3.2.3地下室排水系统计算 15
3.3消火栓系统 16
3.3.1室内消火栓系统计算 16
3.3.2室内消火栓系统屋顶增压设施设计 20
3.3.3减压孔板计算 21
3.3.4 水泵接合器设置 22
3.3.5消防水箱 23
3.3.6消防贮水池 23
3.4自动喷水灭火系统 25
3.4.1自动喷水灭火给水系统计算 25
3.4.2喷淋系统屋顶增压设施设计 29
3.4.3减压孔板计算 29
3.5雨水排水系统 30
3.5.1 降雨强度的确定 30
3.5.2 雨水立管的布置 30
3.5.3 雨水水力计算 31
|