{$cfg_webname}
主页 > 土木工程 > 给排暖通 >

马鞍山市20646.84m2高度52.4米大厦办公楼给排水设计(含CAD图)

来源:56doc.com  资料编号:5D25158 资料等级:★★★★★ %E8%B5%84%E6%96%99%E7%BC%96%E5%8F%B7%EF%BC%9A5D25158
资料以网页介绍的为准,下载后不会有水印.资料仅供学习参考之用. 帮助
资料介绍

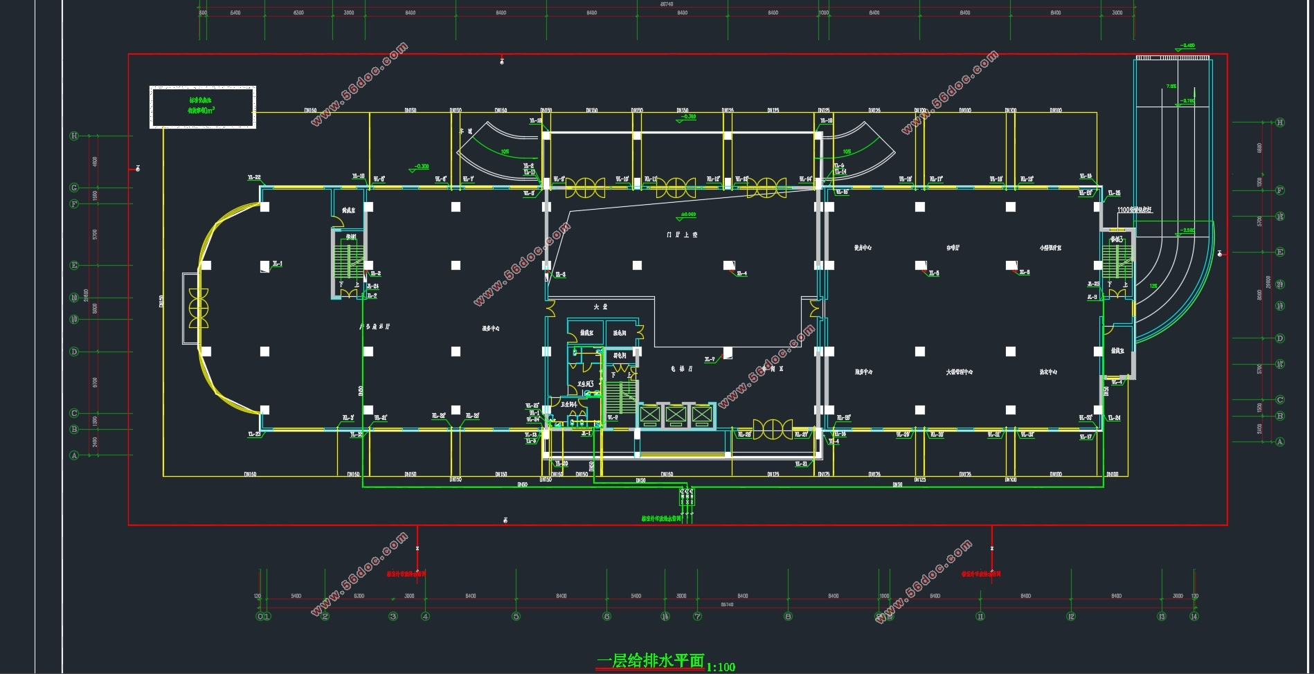
马鞍山市20646.84m2高度52.4米大厦办公楼给排水设计(含CAD图)(论文计算书24000字,CAD图纸24张)
摘  要
本设计的主要任务是马鞍山市正凌大厦办公楼建筑给水排水工程设计,设计的主要内容包括:建筑给水系统、建筑排水系统、消火栓给水系统、自动喷淋系统和雨水系统的设计。
本工程建筑面积20646.84m2,建筑物总高度52.4米。地下一层为汽车库(消防水池、消防泵房、生活泵房、变配电室等设备用房设于地下一层);一至十一层为办公。其中地下一层层高为3.45m,一至七层层高为4.20m,八至九层层高为3.90m,十至十一层层高为3.60m,设备层层高为3.00m。
市政给水管网供水压力不小于0.30MPa,经技术经济比较,室内给水系统拟采用分区给水方式。给水系统分两区:地下一层至四层为低区,由市政管网直接供水;五层至十一层为高区,由变频泵供水。
建筑排水系统采用合流制,污水经化粪池初步处理排入市政管网。
建筑消火栓给水系统主要为室内和室外消火栓给水系统。消火栓的布置范围包括各楼层、消防电梯前室和屋顶检验用。消火栓保护半径为23m。
建筑自动喷淋系统拟采用预作用自动喷水灭火系统,建筑内喷头数量约1997个,设3个报警阀,报警阀后管网为枝状网,每层设水流指示器。
关键词:建筑给水系统;排水系统;消火栓系统;自动喷淋系统;雨水排水系统
 
Water supply and drainage design of the building of Zhengling
Abstract
The main task of this design is the water supply and drainage design of a business buiding in Maanshan.The content of my design includes the design of the building water supply system, the building water drainage system, , the hydrant water supply system,the automatic sprinkler system and the building storm-water system.
The building has 1 floor underground and 25 floors overground. The height of the building is52.4m.The municipal water supply piping can provide 0.30Mpa head. After the comparison of technicality and economy, interior water supply system intends to adopt subarea water supply. Preliminary study out that building water supply system is divided three areas: -1~4 floors are low area. The pipe network supplies water directly from municipal water supply piping;5~11floors are high area.
The building water sewerage system adopt confluence .All waste water enter drain via a septic-tank.The building storm-water system adopts inner draining. 
Hydrant water supply system includes interior hydrant water supply system and outside hydrant water supply system. Hydrant arranging range includes every storey, the room in front of fire elevator and roof for check. The hydrant protects a radius of 23m.
The number of sprinkler heads in the building is about 1997. The automatic sprinkler system set up 3 groups watery alarm valve. Behind the alarm valve, the piping is set as branch. Every storey set water flow indicator.
Key words:The building water supply system;Water drainage system;
           Hydrant water supply system;The sprinkler system
 
1.1设计概述
1.1.1工程概况
本工程坐落于安徽马鞍山市,建筑面积约为20646.84m2,建筑物总高度52.4米。
地下一层为汽车库(消防水池、消防泵房、生活泵房、变配电室等设备用房设于地下一层)。其中地下一层层高为3.45m,一至七层层高为4.20m,八至九层层高为3.90m,十至十一层层高为3.60m,设备层层高为3.00m。
1.1.2设计资料
1)给水水源
本工程给水水源由建筑物南侧的市政管网引入一条DN200进水管,作为室内生活、消防水源。市政给水管道供水压力不小于0.3Mpa,埋深1.40m。
2)排水条件
市政排水管道为污、雨水分流排水系统。室内粪便污水允许排入城市下水道。
3)建筑设计资料
建筑各层平面图1:100。
1.1.3建筑给水排水工程设计任务
根据建筑的性质、用途,要求合理安排给水排水管线,确定管道管径等。根据现在的防火的实际情况,再基于高层建筑消防应立足于自救的规范要求,该楼的消防要求较高,设置有独立的消火栓系统和自动喷淋灭火系统;此外,从美观方面考虑,管道均尽量暗敷设。
 

马鞍山市20646.84m2高度52.4米大厦办公楼给排水设计(含CAD图)
马鞍山市20646.84m2高度52.4米大厦办公楼给排水设计(含CAD图)
马鞍山市20646.84m2高度52.4米大厦办公楼给排水设计(含CAD图)
马鞍山市20646.84m2高度52.4米大厦办公楼给排水设计(含CAD图)
马鞍山市20646.84m2高度52.4米大厦办公楼给排水设计(含CAD图)
马鞍山市20646.84m2高度52.4米大厦办公楼给排水设计(含CAD图)


目  录
摘  要    I
ABSTACT    II
第一章 设计概述及设计依据    1
1.1设计概述    1
1.1.1工程概况    1
    1.1.2设计资料    1
1.1.3建筑给水排水工程设计任务    1
第二章 建筑生活给水系统设计    3
2.1系统的组成与选择    3
2.1.1系统的组成    3
2.1.2系统的选择    3
2.2给水管道平面布置及管道敷设    3
2.2.1基本要求    3
2.2.2布置形式    4
2.2.3给水管道的材料    4
2.3生活给水系统的设计计算    5
2.3.1生活用水量计算    5
2.3.2给水管网水力计算    6
2.3.3给水管网的校核    9
2.3.4生活贮水池容积计算    10
2.3.5生活水泵的计算与选择    10
2.4减压设施计算    11
2.5给水附件    11
第三章  建筑室内消火栓给水系统设计    12
3.1消火栓系统的组成与用水量    12
3.1.1消火栓系统的组成    12
3.1.2消火栓系统用水量    12
3.2消火栓系统类型    12
3.3消火栓系统设备初期选型    13
3.3.1水枪充实水柱长度计算    13
3.3.2消火栓的保护半径    13
3.3.3消火栓的布置间距    14
3.4消火栓系统给水方式与布置    14
3.4.1消火栓系统给水方式    14
3.4.2 消火栓系统的布置     14
3.5 消火栓给水系统设计计算    15
3.5.1 水枪喷嘴处所需的水压     15
3.5.2水枪喷嘴出流量    16
3.3.3 水带水头损失     16
3.5.4 消火栓栓口所需水压    16
3.5.5 消防管网水力计算     17
3.5.6水箱安装高度校核与计算    19
3.6增压设施的计算与选择    20
3.7减压孔板的设计与计算    20
3.8消防贮水池计算    22
3.9水泵接合器的设计    22
第四章  自动喷水灭火给水系统    23
4.1 自动喷水灭火系统的一般规定    23
4.1.1 自动喷水灭火系统的设计原则应符合以下规定     23
4.2 自动喷水灭火系统的使用范围及组成     23
4.2.1 自动喷水灭火系统的使用范围    23
4.2.2 自动喷水灭火系统的组成     24
4.3 自动喷水灭火系统用水量确定     24
4.4 自动喷水灭火系统方案确定     24
4.4.1 自动喷水灭火系统选型    24
4.4.2 喷头的选用     25
4.5 自动喷水灭火系统管网布置     26
4.5.1 自动喷水灭火系统给水方式     26
4.5.2 自动喷水灭火管网的布置及安装     26
4.5.3 自动喷水灭火系统的管材     26
4.6 自动喷水灭火系统管网水力计算     27
4.6.1 管网水力计算(作用面积法)    27
4.6.2 校核管道流速     29
4.6.3 校核喷水强度     29
4.6.4 喷淋泵计算     29
4.6.5 喷淋系统压力校核    30
4.6.6 减压孔板计算     30
4.7水箱容积的计算    31
4.8 增压设施的计算与选择    32
4.9消防贮水池的计算    32
4.10 水泵接合器设计     33
第五章  建筑室内排水系统    34
5.1 排水系统设计要求、组成    34
5.1.1 建筑排水要求     34
5.1.2 排水系统的组成     34
5.2 排水系统排水体制的选择     34
5.3 排水系统平面布置    35
5.3.1 布置与敷设的原则    35
5.3.2 排水管道布置和连接     35
5.3.3 排水管道的敷设和安装     35
5.3.4 排水横支管的布置与敷设     36
5.3.5 排水立管的布置与敷设     37
5.3.6 埋地横干管及排出管的布置与敷设     37
5.3.7 通气管系统设计要求     37
5.3.8 排水管材     38
5.4 排水管网的设计计算     38
5.4.1 设计秒流量的确定    38
5.4.2 排水管网计算    39
5.5 排水附件     43
5.5.1 清扫口和检查口     43
5.5.2 地漏     44
5.6化粪池计算与选择    44
第六章  屋面雨水排水系统    45
6.1系统组成    45
6.2降雨强度    45
6.3屋面雨水汇水面积F的划分原则    45
6.4雨水立管的布置    45
6.5水力计算    45
参考文献     47
致  谢     47

推荐资料