某高层(二十层)办公楼给水排水工程设计(含CAD图)
来源:56doc.com 资料编号:5D28481 资料等级:★★★★★ %E8%B5%84%E6%96%99%E7%BC%96%E5%8F%B7%EF%BC%9A5D28481
资料以网页介绍的为准,下载后不会有水印.资料仅供学习参考之用. 密 保 惠 帮助
资料介绍
某高层(二十层)办公楼给水排水工程设计(含CAD图)(任务书,开题报告,外文翻译,论文计算书14000字,CAD图33张)
摘 要
本设计负一层至地上三层为市政管网直供,四至二十一层为变频泵供水的给水方式。从市政管网上接一根DN150的总引入管,分为三路供水:一根DN50的管道直供负一层到三层用水,另一根DN70的管道接入生活水箱,还有一根DN100的管道接入消防水池。生活水箱采用装配式不锈钢水箱,消防水池采用砖砌混凝土结构,置于地下室。排水采用生活污、废水分流制。通气管一至三层排水增设环形通气管,其他均采用专用通气立管通气。地下室排水经槽汇集排至集水井,经潜污泵提升排至检查井后直接排入市政排水管。地上建筑的生活污水排入检查井后,经化粪池处理再排入市政管网。屋面雨水排放选择重力式雨水系统,雨水经屋面雨水斗收集后由雨水管排至检查井。
根据规范,该建筑为一类建筑,属中度危险Ⅰ级。室内消防流量40L/s,室外30L/s。充实水柱取12m,水龙带长度取25m,水枪喷嘴流量5.2L/s,消防立管管径为DN150。在顶层设试验消火栓一个,每个室内消火栓箱内均设有远距离启动消防泵的按钮。
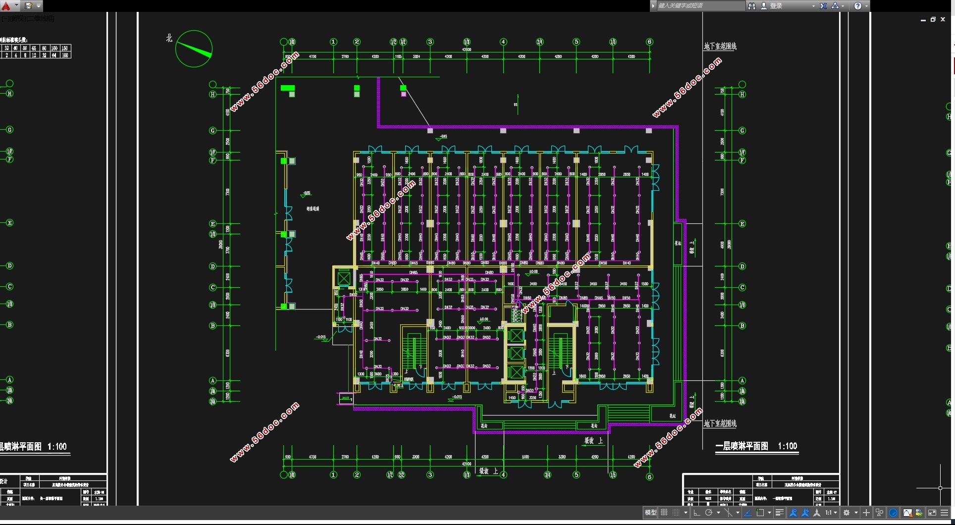
该建筑采用湿式自动喷淋灭火系统,报警阀设于地下一层,各层均设水流指示器、末端试水装置和信号阀,其信号均送入消防控制中心进行处理。本工程的自动喷水灭火系统分3个区。屋顶水箱为18立方米为消防水箱,贮存10min自动喷水灭火系统、室内消火栓系统用水量。自动喷水灭火系统和消火栓系统的初期灭火由水箱供水,后期供水由地下室的消防水泵和自喷泵供水。
关键词:给水系统、排水系统、消火栓系统、自动喷水灭火系统、雨水系统
Abstract
In this design,On the -1F to the 3F for municipal services tube the net keep provide, 4 to 21F is frequency conversion water supply pump as the water supply way. Meets DN150 from the municipal administration pipe network the total lead-in tube, divides into three groups water supplies: A DN50 pipeline makes an honest deposition -1 to three waters used, another DN70 pipeline turning on life water tank, but also some DN100 pipeline turning on fire prevention basin. The life water tank uses the assembly type stainless steel water tank, the fire basin uses the brickwork concrete structure, puts in the basement. Drainage using domestic sewage, waste water diversion system. Vent tube to layer 3 drainage additional ring vent tube and the other is a dedicated vent the vent. Basement draining water after the trough collection row to the sunk basin, after dives to disperse into the municipal administration discharge pipe directly the dirt pump promotion row after the inspection well.After the ground construction sanitary sewage disperses into the inspection well, disperses into the municipal administration pipe network again after septic tank processing.Roofing rain water emissions choice gravity type rain water system, rain water after roofing rain sink collection by downspout row to inspection well.
According to the codes, the building is class one fireproof construction, belongs to one class of medium degree dangerous. Indoor fire fight discharge is 40 L/s and outdoor is 30 L/s, full water spout is 12m , hoses is 25 m, water gun spray the mouth discharge is 5.2 L/s, and the fire standpipe diameter is DN150. In the top set a fire hydrant as a experiment hydrant. All hydrant cabinet set a long-distance leave start fire fight pump of button.
The building is arranged with wet pipe fire sprinkler system. Alarm valve is arranged on the basement. Each floor should set a flow indicator, End water-test equipment and signal valve, its signal all send into fire fight control center to carry on processing. The automatic sprinkler system is divided into three zones. The fire tank is 18 cubic meters, have 10min fire water storage. Automatic sprinkler system and hydrant system of initial stage extinguish fire from the water tank supply water. Latter water supply is supply by fire pump and spray pump in the basement.
Keyword: water-supply system、drainage system、hydrant system、automatic sprinkler system、rainwater system
工程概况
某办公楼建筑共20层,建筑总高度为79.5m。负一层为地下车库,1~2层设计为商场,主体为办公楼,屋顶下设一机房层。设计内容有建筑给水系统、排水系统、雨水系统、消防系统,污水处理系统。
室内要求设置给水系统,排水系统,雨水排水系统、消火栓系统和自动喷淋灭火系统。市政管网可以提供供水水压为0.25 Mpa。





目 录
摘 要 2
Abstract 3
第一章 给排水工程设计任务书 6
1.1 工程概况 6
1.2 设计依据 6
1.3 设计内容 6
1.4毕业设计(论文)图纸内容及张数 6
1.4.1 填写毕业设计任务书 6
1.4.2 撰写开题报告(综述) 6
1.4.3 设计说明书 6
1.4.4 图纸 7
1.5 参考文献 7
1.6 毕业设计(论文)进程安排 7
第二章 设计说明书 9
2.1 给水系统 9
2.2 排水系统 9
2.3 雨水系统 11
2.4 消防给水 12
2.4.1 消火栓系统 12
2.4.2 自动喷淋系统: 12
2.5 污水系统 13
第三章 设计说明书 14
3.1 给水系统 14
3.1.1用水量计算 14
3.1.2室内给水管网水力计算 14
3.1.3 设备的计算与选择 20
3.1. 4 生活贮水箱容积计算 21
3.2 排水系统 22
3.2. 1卫生器具排水定额及排水管道设计秒流量公式的确定 22
3.2. 2 建筑内排水管道计算 22
3.2.3 地下室排水系统计算 26
3.2.4 消防电梯排水系统计算 26
3.2.5 化粪池设计计算 27
3.3 消火栓系统 28
3.3.1 室内消火栓系统计算 28
3.3.2 消防水泵的计算与选择 32
3.3.3 室内消火栓系统屋顶增压设施计算 33
3.3.4 减压孔板计算 34
3.3.5 水泵接合器设置 35
3.3.6 消防水箱 35
3.3.7 消防贮水池 36
3.4 自动喷水灭火系统 37
3.4.1 自动喷水灭火给水系统计算 37
3.4.2 喷淋系统屋顶增压设施设计 41
3.4.3 减压孔板计算 42
3.5 雨水排水系统 44
3.5.1 降雨强度的确定 44
3.5.2 雨水立管的布置 44
3.5.3 雨水水力计算 44
3.6室外排水 45
3.6.1 室外污水 45
3.6.2 室外雨水 46
3.6.3 室外废水 46
结束语 47
致 谢 48
|