{$cfg_webname}
主页 > 土木工程 > 公路隧道 >

山岭重丘区高速公路Ⅰ级路基宽度26m公路设计

来源:56doc.com  资料编号:5D19725 资料等级:★★★★★ %E8%B5%84%E6%96%99%E7%BC%96%E5%8F%B7%EF%BC%9A5D19725
资料以网页介绍的为准,下载后不会有水印.资料仅供学习参考之用. 帮助
资料介绍

山岭重丘区高速公路Ⅰ级路基宽度26m公路设计(简易说明书2400字,CAD图纸18张,Excel计算表)
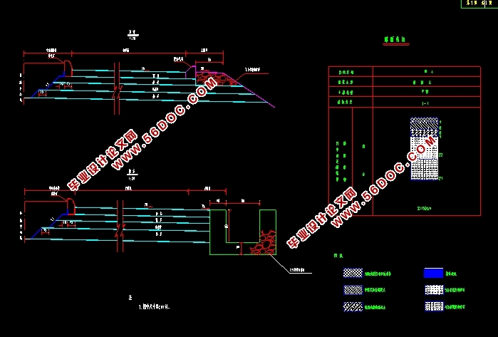
本高速公路为山岭重丘区,年降雨量1100~2200毫米,土质属于粉质低液限粘土。
1、主要经济技术指标
公路等级      高速公路
设计行车速度  Km/h  80
设计荷载:    公路 -Ⅰ级
路线总长    km    2.752 km
路线增长系数        1.017
平均每公里交点数    个1.09
平曲线最小半径    m/个    1100/1
平曲线长占路线总长    77.873%    2143.094m
直线最大长度    m    283.717
最大纵坡    %/处    0.556/1
最短坡长    m    630
竖曲线占路线总长    %    38.396
平均每公里纵坡变更次数    次    0.727
竖曲线最小半径       
(1)凸型    M    80000
(2)凹型    M    70000               
路基宽度 26.0m           
设计主要内容包括:路线、路基、路面、交通工程等内容。
本工程全线共设弯道3处。由于受地形、地物条件的影响,不能满足线形要求,路线的挖方量比较大。
 

山岭重丘区高速公路Ⅰ级路基宽度26m公路设计
山岭重丘区高速公路Ⅰ级路基宽度26m公路设计
山岭重丘区高速公路Ⅰ级路基宽度26m公路设计
山岭重丘区高速公路Ⅰ级路基宽度26m公路设计
山岭重丘区高速公路Ⅰ级路基宽度26m公路设计
山岭重丘区高速公路Ⅰ级路基宽度26m公路设计

 

推荐资料