35/10kV变电所(二台主变)电气一次部分设计(含CAD图)
来源:56doc.com 资料编号:5D27226 资料等级:★★★★★ %E8%B5%84%E6%96%99%E7%BC%96%E5%8F%B7%EF%BC%9A5D27226
资料以网页介绍的为准,下载后不会有水印.资料仅供学习参考之用. 密 保 惠 帮助
资料介绍
35/10kV变电所(二台主变)电气一次部分设计(含CAD图)(任务书,开题报告,论文说明书14800字,CAD图纸4张)
摘 要
随着科学技术的进步,电力系统的运行水平得到了极大提高,电能的生产、输送和消费也更趋于安全,经济和环保。而作为电力系统的重要组成部分,变电所的发展和设计影响着整个电力系统的发展和建设。因此,近年来智能变电所技术的研究引起国内外极大的重视。本次毕业设计以35/10kV变电所作为设计对象,既联系着当下电力行业的发展潮流,又可利用自己所学的知识去完成这次设计任务,对了解变电所的相关知识和提高自己解决问题的能力都大有裨益。该变电所的设计主要涉及负荷计算,主变压器的选型,电气主接线的确定,短路电流计算,设备选型和防雷保护,并利用AutoCAD软件绘制相关的设计图纸。
关键词:变电所 主变压器 防雷 AutoCAD
Abstract
Along with the progress of science and technology, the operation level of power system has improved greatly, the production, transportation and consumption of power also become more and more safe, economical and environmental. As the important part of power system, the development and design of substation are affecting the development and construction of the whole power system. So the research on the technology of the Smart Substation in recent years has attracted much attention. The graduation design with a 35 / 10kV substation as the object design, both contact with the development trend of the current power industry and can use our own knowledge to complete the design task, which are of great benefit for us to understand the related knowledge of substation and improve the ability to solve problems independently. The substation design mainly involves the load calculation, the selection of the main transformer, the determination of Electrical main wiring, short-circuit current calculation, equipment selection and lightning protection, and using AutoCAD software to draw up relevant design drawings.
Keywords: substation main transformer lightning protection AutoCAD




目录
摘 要 I
Abstract II
第一章 绪论 1
第二章 原始资料 3
第三章 负荷计算 5
第四章 主电路设计 10
4.1电气主接线的设计 10
4.1.1电气主接线设计的原则 10
4.1.2电气主接线方案的拟定 10
4.1.3电气主接线方案的比较 13
4.2主变压器的选择 15
4.2.1 35kV主变压器选择的原则 15
4.2.2 35kV主变压器台数的确定 15
4.2.3 35kV主变压器容量的确定 15
4.2.4 35kV主变压器型号的确定 16
第五章 短路电流计算 19
5.1基本假设 19
5.2短路点的选择 19
5.3计算短路电流 20
5.3.1基准参数的选定 20
5.3.2各元件电抗值 20
5.3.3各点短路电流计算 21
5.4三相短路电流计算结果 22
第六章 电气设备的选择与校验 23
6.1电气选择的一般条件 23
6.2断路器的选择 24
6.2.1 35kV侧高压断路器的选择 24
6.2.2 10kV侧高压断路器的选择 25
6.2.3 0.4kV侧低压断路器的选择 26
6.3 35kV侧隔离开关的选择 27
6.4电流互感器的选择与校验 28
6.4.1 35kV侧电流互感器的选择 28
6.4.2 10kV侧电流互感器的选择 29
6.4.3 0.4kV侧电流互感器的选择 30
6.5电压互感器的选择与校验 30
6.5.1 35kV侧电压互感器的选择 30
6.5.2 10kV侧电压互感器的选择 30
6.6母线的选择与校验 31
6.6.1 35kV侧母线的选择 31
6.6.2 10kV侧母线的选择 32
6.6.3 0.4kV侧母线的选择 33
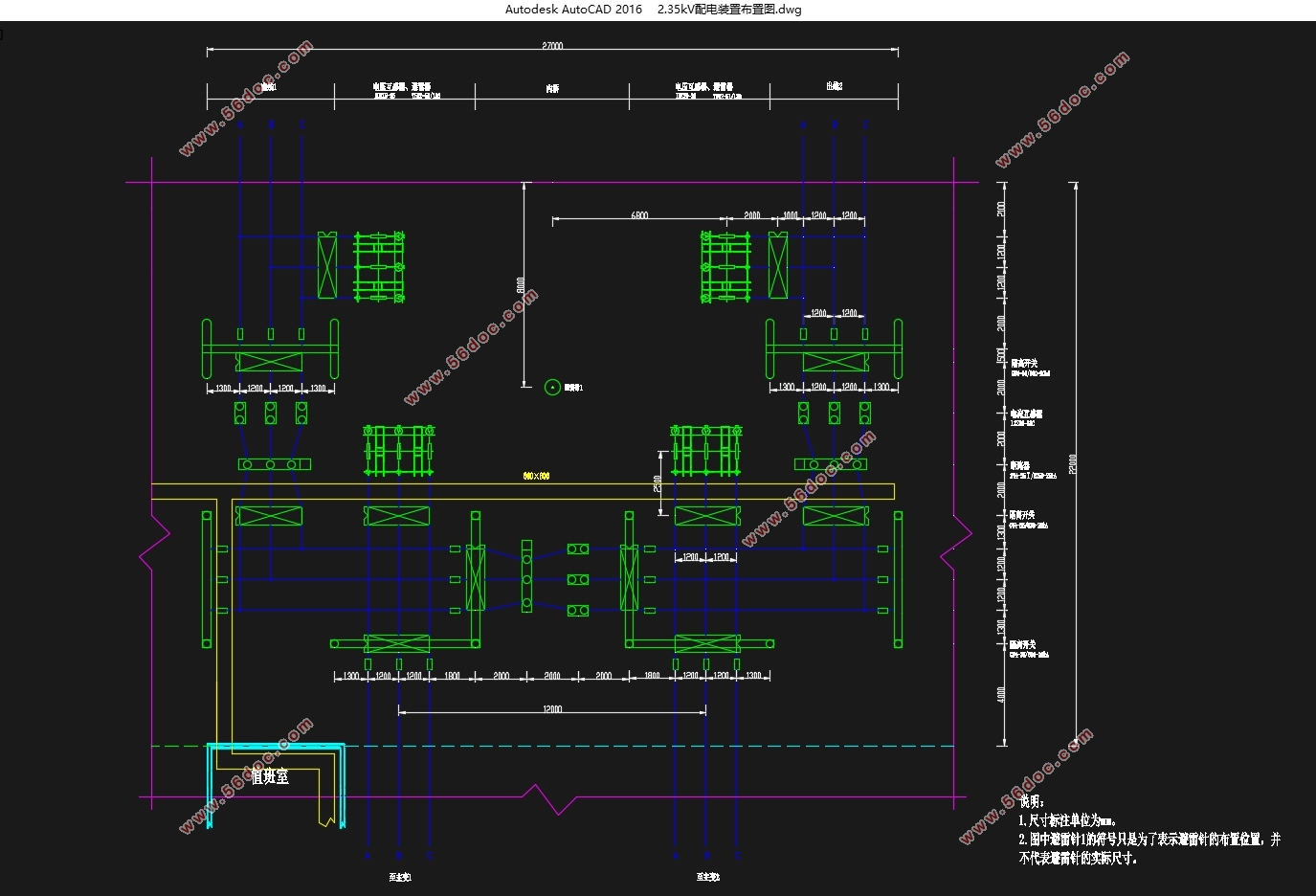
第七章 配电装置与防雷保护 35
7.1配电装置设计 35
7.2防雷保护 35
7.2.1避雷针的设计 36
7.2.2避雷器的选择 38
7.2.3接地保护 41
结语 42
参考文献 43
致谢 45
|