{$cfg_webname}
主页 > 机械机电 > 工艺夹具 >

支架加工工艺及夹具设计(含CAD零件图装配图,UG三维图,工艺卡)

来源:56doc.com  资料编号:5D16747 资料等级:★★★★★ %E8%B5%84%E6%96%99%E7%BC%96%E5%8F%B7%EF%BC%9A5D16747
资料以网页介绍的为准,下载后不会有水印.资料仅供学习参考之用. 帮助
资料介绍

支架加工工艺及夹具设计(含CAD零件图装配图,UG三维图,工艺卡)(任务书,论文说明书11700字,CAD图纸7张,UG三维图,工艺卡)
本次设计内容涉及了机械制造工艺及机床夹具设计、金属切削机床、公差配合与测量等多方面的知识。
支架的工艺规程及其钻Φ5的夹具设计是包括零件加工的工艺设计、工序设计以及专用夹具的设计三部分。在工艺设计中要首先对零件进行分析,了解零件的工艺再设计出毛坯的结构,并选择好零件的加工基准,设计出零件的工艺路线;接着对零件各个工步的工序进行尺寸计算,关键是决定出各个工序的工艺装备及切削用量;然后进行专用夹具的设计,选择设计出夹具的各个组成部件,如定位元件、夹紧元件、引导元件、夹具体与机床的连接部件以及其它部件;计算出夹具定位时产生的定位误差,分析夹具结构的合理性与不足之处,并在以后设计中注意改进。

零件的工艺分析
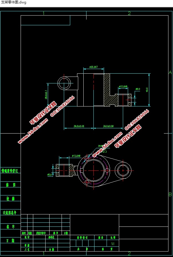
支架有3组加工面且有位置度要求。
1:以底面为基准的加工面,这组加工面主要的是上下端面,
2:以外圆和Φ12外圆为基准的加工面,这组加工面主要Φ
12的孔。
3;以Φ12孔为基准的加工面,这组加工面主要剩余的其他各面和孔及槽
3.1  确定毛坯的制造形式
零件的材料为HT200,根据生产纲领以及零件在工作过程中所受的载荷情况,选用砂型机铸造。
 

支架加工工艺及夹具设计(含CAD零件图装配图,UG三维图,工艺卡)
支架加工工艺及夹具设计(含CAD零件图装配图,UG三维图,工艺卡)
支架加工工艺及夹具设计(含CAD零件图装配图,UG三维图,工艺卡)
支架加工工艺及夹具设计(含CAD零件图装配图,UG三维图,工艺卡)


目录
摘  要    2
ABSTRCT    3
一 机床夹具的定位及夹紧    2
1.1 概述    2
1.1.1 机床夹具的组成    2
1.1.2 机床夹具的分类    3
1.1.3 机床夹具在机械加工中的作用    5
1.2工件的装夹方式    6
1.3 基准及其分类    7
1.4 工件的定位    9
1.4.1 工件定位的基本原理    9
1.4.2 常见定位方式及定位元件    10
1.5 工件的夹紧    11
1.5.1夹紧装置的组成及基本要求    11
1.5.2 夹紧力的确定    12
1.5.3典型夹紧结构    13
二、零件的分析    14
2.1  零件的作用    14
三. 工艺规程程设计    16
3.1  确定毛坯的制造形式    16
3.1.1.粗基准选择    16
3.1.2精基准的选择    17
3.2  制定工艺路线    18
3.3  机械加工余量、工序尺寸及毛坯尺寸的确定    19
3.4  确定切削用量及基本工时    19
四、 夹具设计    35
4.1:问题的提出    35
4.2 定位基准的选择    35
4.3 切削力及夹紧力计算    35
4.4定位误差的分析:    36
4.5:夹具设计及简要操作说明    37
总    结    40
致   谢    42
参 考 文 献    43

推荐资料