{$cfg_webname}
主页 > 机械机电 > 工艺夹具 >

万向接头加工工艺及夹具设计(含CAD零件图夹具图,工艺卡工序卡)

来源:56doc.com  资料编号:5D17761 资料等级:★★★★★ %E8%B5%84%E6%96%99%E7%BC%96%E5%8F%B7%EF%BC%9A5D17761
资料以网页介绍的为准,下载后不会有水印.资料仅供学习参考之用. 帮助
资料介绍

万向接头加工工艺及夹具设计(含CAD零件图夹具图,工艺卡工序卡)(论文说明书8600字,CAD图纸4张,工艺卡,工序卡)
摘 要
    本次设计的主要内容是万向接头加工工艺规程及 孔钻孔夹具的设计。万向接头主要是与其它零件配对使用,其主要加工表面及控制位置为 内孔和 以及与 中心轴线垂直的另一组 内孔。由零件要求分析可知,保证 孔和 尺寸的同时应该尽量保证其同轴度和垂直度,这对于后工序装配和总成使用上来说都有重要影响。所以,工序安排时,采取以 定位夹紧加工后,对 孔进行钻削加工同时成型。因其粗糙度为Ra0.4,可通过钻,铰孔满足。对于与 中心轴线垂直的另一组 内孔,主要以万向接头的已经加工出的 定位,控制其自由度,以达到加工出来的产品满足要求并且一致性好的目的。本文的研究重点在于通过对万向接头的工艺性和力学性能分析,对加工工艺进行合理分析,选择确定合理的毛坯、加工方式、设计高效、省力的夹具,通过实践验证,最终加工出合格的万向接头零件。
    关键词:万向接头,工艺规程,钻孔,工艺路线,加工方式;

零件的分析
2.1、零件的作用:
题目所给的零件是万向接头,而万向接头一般是其上面的工序对称分布,并且有与外接零件配合的需要通过钻、绞,精镗等工艺加工出来的内孔,其作用是用来与其它部件进行连接的。此次课题的任务就是”万向接头加工工艺及夹具设计“,通过分析制定万向接头零件的加工工艺和夹具设计,来围绕万向接头这个零件来进行工艺以及夹具设计。
 

万向接头加工工艺及夹具设计(含CAD零件图夹具图,工艺卡工序卡)
万向接头加工工艺及夹具设计(含CAD零件图夹具图,工艺卡工序卡)
万向接头加工工艺及夹具设计(含CAD零件图夹具图,工艺卡工序卡)
万向接头加工工艺及夹具设计(含CAD零件图夹具图,工艺卡工序卡)


目录
摘 要    3
Abstract    4
1、绪  论    4
2、零件的分析    5
2.1、零件的作用    5
2.2、零件的工艺分析    5
3、确定毛坯,绘制毛坯图、零件图    8
3.1、确定毛坯的制造形式及材料    8
3.2、机械加工余量、工序尺寸及毛坯尺寸的确定    8
4、工艺规程设计    10
4.1、定位基准的选择    10
4.2、制定工艺路线    10
4.3、选择加工设备及刀、夹、量具    14
4.4  确定切削用量及基本工时    16
  4.4.1粗铣、精铣顶部 外圆端面    17
  4.4.2 粗铣、精铣第部 外圆端面,保证尺寸77h11    18
  4.4.3粗铣、精铣顶部 外圆端面    18
  4.4.4粗铣、精铣底部 外圆端面,保证尺寸44h11    19
  4.4.5钻、铰与 外圆同轴的 , 孔    19
  4.4.6粗镗、精镗与 外圆中心线垂直方向的 , 孔    20
  4.4.7线割2-∮5至尺寸.... ..23
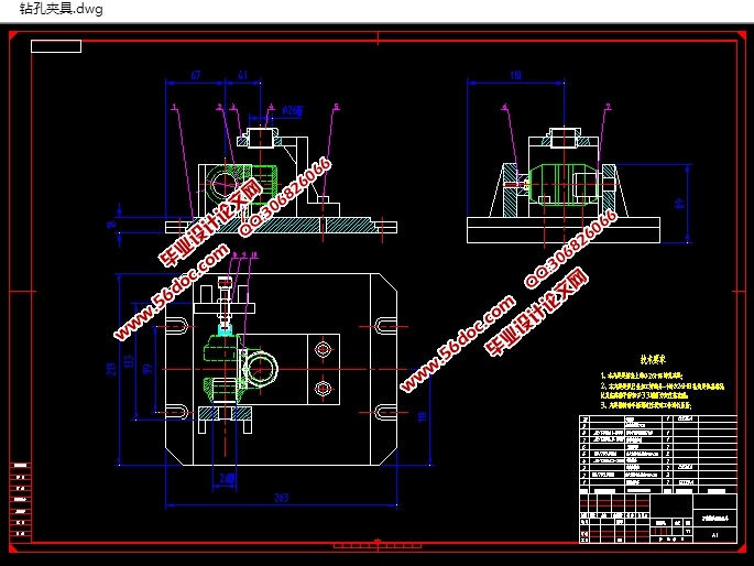
5、钻孔夹具的设计    26
5.1定位基准的选择    26
5.2定位误差的分析    26
5.3切削力及夹紧力的计算    20
    5.4夹紧元件及动力装置确定    28
5.5夹具设计及操作的简要说明    30
小 结    33
致 谢    34
参考文献    35
 

推荐资料