连杆孔加工工艺与夹具设计(含CAD零件图装配图)(任务书,开题报告,进度检查表,设计说明书14000字,CAD图纸9张)
摘要
各种钻床所使用的是夹具,通常称为钻具或钻套.使用钻具的工序,一般用钻头,绞刀,和丝锥等刀具来进行加工.在大多数情况下,加工工程的特点是刀具和机床主轴一起做旋转运动和送给运动,而工件和钻具则固定不动,因此,工件被加工孔是与旋转轴线同心的,其位置分布可以是同轴线的一些表面,也可以是不同轴线的互相平行或成任意角度的平面.
针对我们所要加工的工件为一个孔,因此要选择使用钻床进行加工.本章的重点就是设计在钻床上所使用的夹具.
使用夹具安装工件时,首先要使工件在夹具中占有正确的位置,既工件的定位.通过工件的定位,使得每一个被加工的工件重复放置到夹具中都能准确占据由定位元件的同一个位置,对一批工件来说,每个放置到夹具中都能占据同一位置.
夹具设计主要分为:1,工件的定位方法及其定位元件2,定位误差的分析和计算3,夹紧机构的分析与夹紧力的计算
关键词:定位方法,定位元件,定位误差,夹紧力
1.1零件分析
一、整体零件分析:
如图1-1所示的连杆零件,材料为QT40-17,毛坯为精铸件,要在其右侧钻M8的通孔,要求设计大批量生产时(10000件/年)所需的钻夹具
零件分析:此零件为一连杆,它的各个尺寸如上图所示,总的长度方向上的尺寸为100mm,高度方向总尺寸为32mm,宽度方向为30 mm,本次主要是对连杆右端φ8 mm孔的加工进行设计,孔通常都采用钻床进行加工,所以本次设计的主要任务是在其它各个部位都已加工好的前提条件下,运用钻床夹具的有关知识来设计加工左孔的夹具。




目 录
第1章 毕业设计--------------------------------------------------------------------------1
1.1零件分析---------------------------------------------------------------------------------1
1.2定位基准的选择以及主要标准件的选择------------------------------------------2
1.3夹具设计 -------------------------------------------------------------------------------8
1.3.1钻床夹具的特点----------------------------------------------------------------------8
1.3.2工件的定位方法及其定位元件----------------------------------------------------11
1.3.3定位误差的分析与计算-------------------------------------------------------------13
1.3.4夹紧机构的分析与夹紧力的计算-------------------------------------------------14
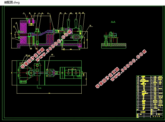
1.3.5夹具装配图 -------------------------------------------------------------------------- 18
第2章 综合训练--------------------------------------------------------------------------20
2.1夹具设计AutoCAD三维造型---------------------------------------------------------20
2.1.1夹具体及定位元件的造型----------------------------------------------------------20
2.1.2夹紧元件三维实体造型-------------------------------------------------------------29
2.1.3夹具体三维实体造型及实体造型装配图----------------------------------------31
致谢--------------------------------------------------------------------------------------------33
参考文献-------------------------------------------------------------------------------------34
|