{$cfg_webname}
主页 > 机械机电 > 机械 >

便携式铁路钢轨钻孔机的设计

来源:56doc.com  资料编号:5D11105 资料等级:★★★★★ %E8%B5%84%E6%96%99%E7%BC%96%E5%8F%B7%EF%BC%9A5D11105
资料以网页介绍的为准,下载后不会有水印.资料仅供学习参考之用. 帮助
资料介绍

便携式铁路钢轨钻孔机的设计(开题报告,中期检查表,毕业论文说明书13000字,CAD图纸10张)
摘  要:本文分析了中国国内外铁路钢轨钻孔机的现状,设计出一种新型的小型便携式铁路钢轨钻孔机。该钻孔机是由机架、夹轨机构、齿轮齿条传动和小型的电钻组成。采用了仿形定位,有效提高了钻孔的位置精度,夹轨机构采用快速夹紧机构,有效地减少了工作时间,夹紧所用的力也少。便携式铁路钢轨钻孔机的加工优点主要体现在降低了铁工的劳动强度,提高了工作效率。
  关键词:钢轨钻孔机;死点锁死;四杆机构

The Design of Portable Drilling Machine for The Railway Rails
 Abstract:This text analyzed the present condition of Chinese domestic and international railroad steel rail borer machine and designed a kind of new model of small scaled then the hold type railroad steel rail borer machine.The borer machine from bay, clip track mrvhsnidm, gear rack drive and small scaled electric drill composition.Adopted to imitate a shape clamping, effectively raised the location accuracy of drilling, clipped track mrvhsnidm the adoption quickly clip tight mrvhsnidm and availably reduced a hours of labour and clipped tight the force used is also little.Then the transform merit of the hold type railroad steel rail borer machine mainly embodiment lowered the labour intensity of blacksmith, raised a working efficiency.
    Key words:Steel rail borer machine;The dead point cotter dies;Four-bar linkage

构造与工作原理分析
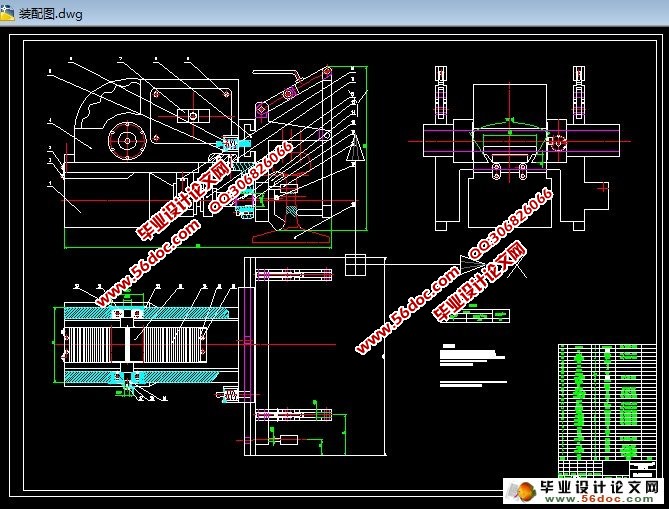
    该机主要由电机、联轴器、钻头、齿轮齿条传动、机架、夹轨装置、水平及高低对中模块、滑道装置等部件组成,其工作过程为将圆柱销紧靠钢轨端面,仿形定位块紧靠钢轨侧面水平位置,用夹紧机构把该机卡紧在钢轨上,启动电机带动钻头,扳动齿轮轴,利用齿轮齿条传动实现电机上钻头的进给运动,人手推动滑道,钻孔工作机构随滑道在导轨上相互水平移动,至各个定位孔位置连续钻三个孔[2]。
    设计的要求是为了提高钻孔效率,减少钻孔时间,免画中心线,快速定位与夹紧,使用方便提高运转的平稳性,降低耗电量。
2.2 设计内容   
它是在已有的夹具体一端直接与钻孔工作机构连接的单孔钻中,增加一滑动、定位及锁紧机构,使夹具体下端与具有定位孔及槽道的导轨的上端连接,导轨下端的一侧连接轨端定位块及水平定位板,另一侧与滑道滑动连接,滑道的另一侧与定位销,弹簧、锁紧销、锁紧机构及支杆连接,支杆的另一端与钻孔机构连接,人手推动滑道,钻孔工作机构随滑道在导轨上相互水平移动,至各个定位孔位置连续钻三个孔。
    (1)本设计针对50kg钢轨上钻孔,孔的直径为23mm;
    (2)铁路钢轨的材料为高锰钢,钻头选用高速钢;
    (3)50kg/m钢轨端至第一螺栓空中心距为66mm;钢轨上钻螺栓孔上夹板时,第一孔至第二孔中心距为150mm[3]。
 

便携式铁路钢轨钻孔机的设计
便携式铁路钢轨钻孔机的设计
便携式铁路钢轨钻孔机的设计
便携式铁路钢轨钻孔机的设计


目    录
摘要    1
关键词    1
1  前言    1
2  总体方案的拟定    3
    2.1  构造与工作原理分析    3
    2.2  设计内容    4
    2.3  方案选择    4
3  便携式铁路钢轨钻孔机结构设计    4
    3.1  电动机的选择    5
    3.2  齿轮轴的设计    6
    3.3  联轴器的选择    13
    3.4  键的选择及校核    14
    3.5  弹簧的设计    16
4  夹轨机构的设计    19
    4.1  定位基准的选择    19
    4.2  定位元件的设计    20
    4.3  夹紧力的计算    20
5  润滑与密封    23
    5.1  滚动轴承的润滑    23
    5.2  直齿齿轮的润滑    24
6  结论    24
参考文献    25
致谢    26

推荐资料