{$cfg_webname}
主页 > 机械机电 > 机械 >

压缩机底座零件钻孔专机设计(含CAD零件装配图,SolidWorks三维图)

来源:56doc.com  资料编号:5D15933 资料等级:★★★★★ %E8%B5%84%E6%96%99%E7%BC%96%E5%8F%B7%EF%BC%9A5D15933
资料以网页介绍的为准,下载后不会有水印.资料仅供学习参考之用. 帮助
资料介绍

压缩机底座零件钻孔专机设计(含CAD零件装配图,SolidWorks三维图)(论文说明书14600字,CAD图纸6张,SolidWorks三维图)
近期对机械行业中轴、轴承和轴套的使用情况进行了调查,发现在机械行业中轴、轴承和轴套是其中的关键零配件。自然而然在装配中它们的安装也非常平凡。在安装轴、轴承和轴套时如果使用人工钻孔不但劳动强度太大而且相互尺寸不易保证,所以设计一个专用的钻孔专机势在必行。本次的毕业设计课题的是压缩机底座零件钻孔专机的设计。本文介绍了钻孔专机的结构组成、工作原理以及主要零部件的设计中所必须的理论计算和相关强度校验,该钻孔专机的优点是高效,经济,并且安全系数高,运行平稳。采用的总体方案是:在专机上定位好压缩机底座的位置,利用垂直方向的钻孔装置和水平方向上的钻孔装置对压缩机底座进行钻孔。伺服电机与滚珠丝杆通过联轴器连接,进而带动装有螺母的滑板移动,将旋转运动化为直线压入运动。本次钻孔专机的设计,大大地提高了钻孔的工作效率和质量,并且对后续的钻孔专机的开发和研制都有着一定的影响,在某种程度上大大提升了该设备在国内外的竞争力,体现了机械工业重要性这一核心价值。

 钻孔专机总体结构的设计
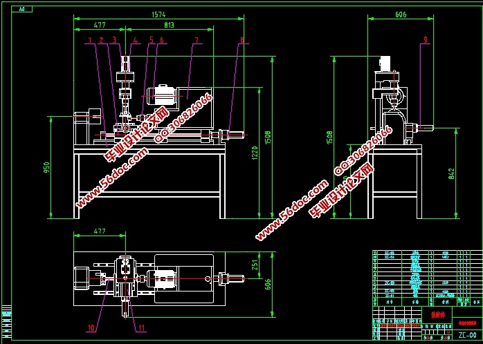
(一) 钻孔专机的总体方案图
     本次设计钻孔专机采用的方案为:伺服电机驱动滚珠丝杆螺母副传动,从而使螺母的旋转运动改变为直线运动,带动上面的装有压缩机底座的夹具移动到钻孔的位置停止,然后垂直方向的和水平方向钻孔装置开始动作,从而对压缩机底座两相互垂直的孔进行钻削加工,此钻孔专机效率高,加工精度好。布局的具体方案如下:
             
(二)钻孔专机的工作原理
     本次所设计的钻孔专机的工作原理为:伺服电机驱动滚珠丝杆螺母副传动,从而使螺母的旋转运动改变为直线运动,带动上面的装有压缩机底座的夹具移动到钻孔的位置停止,然后垂直方向的和水平方向钻孔装置开始动作,从而对压缩机底座两相互垂直的孔进行钻削加工,此钻孔专机效率高,加工精度好。
(三)机械传动部分的设计计算
1.钻孔装置中电机的选型计算
    已知整个水平钻孔装置上工件与零件的重量,我们取总重量为20Kg,范围为50mm~200mm,移动速度为1~2r/min。
 

压缩机底座零件钻孔专机设计(含CAD零件装配图,SolidWorks三维图)
压缩机底座零件钻孔专机设计(含CAD零件装配图,SolidWorks三维图)
压缩机底座零件钻孔专机设计(含CAD零件装配图,SolidWorks三维图)
压缩机底座零件钻孔专机设计(含CAD零件装配图,SolidWorks三维图)
压缩机底座零件钻孔专机设计(含CAD零件装配图,SolidWorks三维图)
压缩机底座零件钻孔专机设计(含CAD零件装配图,SolidWorks三维图)
压缩机底座零件钻孔专机设计(含CAD零件装配图,SolidWorks三维图)


目 录
摘要    I
ABSTRACT    II
一  绪论    1
    (一)课题的来源与研究的目的和意义    1
    (二)钻孔专机的发展现状    2
    (三)Solidworks设计基础    4
     1.草图绘制    5
     2.基准特征,参考几何体的创建    6 
     3.拉伸、旋转、扫描和放样特征建    7
     4.工程图的设计    10
     5.装配设计    11
    二  钻孔专机总体结构的设计    13
    (一)钻孔专机的总体方案图    14
    (二)钻孔专机的钻孔原理    16
    (三)机械传动部分的设计计算    17
    1.钻孔装置中电机的选型计算    18
     2.液压缸的设计计算    19
     3.滚珠丝杆的选型计算    20
     4.直线导轨的选型计算计算    21
三  各主要零部件强度的校核    22
    (一)轴承强度的校核与计算    23
    (二)丝杆螺母强度的校核计算    24
四  钻孔专机中主要零件的三维建模    24
    (一)滚珠丝杆的三维建模    24
    (二)直线滑块的三维建模    25
    (三)电机的三维建模    26
    (四)钻孔专机的三维建模    27
    五  三维软件设计总结    28
结论    29
参考文献    30
致谢    31

推荐资料