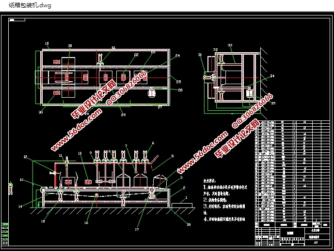
纸箱包装机设计(含CAD零件图装配图)
来源:56doc.com 资料编号:5D16818 资料等级:★★★★★ %E8%B5%84%E6%96%99%E7%BC%96%E5%8F%B7%EF%BC%9A5D16818
资料以网页介绍的为准,下载后不会有水印.资料仅供学习参考之用. 密 保 惠 帮助
资料介绍
纸箱包装机设计(含CAD零件图装配图)(说明书12800字,CAD图纸11张)
包装成型装订装置动力装置和减速装置集中到一个纸箱包装机带
电动系列动力机构,减速机构,一个为一体的传动机构,减速机,电机设置在筒体内,结构紧凑,重量轻,安装维修方便,因此,经常被用来作为一个可纸箱包装机的带式包装成型装订装置减速装置。

目 录
摘 要 4
ABSTRACT 5
1 绪论 6
1.1 纸箱包装机的现状及未来趋势 6
1.2纸箱包装机的主要用途 7
1.3 各种纸箱包装机的特点 7
1.4 纸箱包装机发展方向 7
2 纸箱包装机的设计 9
2.1纸箱包装机的设计参数 9
3 设计计算 10
3.1 减速电机的选择 10
3.2 齿轮传动的选择 12
3.2.1 按强度选用齿轮传动 12
3.2.2 计算功率 13
3.2.3 校核热功率 14
3.3 齿轮传动装置的设计计算 14
3.3.1圆柱齿轮传动设计的计算 14
3.3.2 选择齿轮轮齿数 15
3.3.3 选取齿轮节数和齿轮型号 15
3.3.4确定实际中心距 16
3.3.5 计算作用轴上载荷 17
3.3.6 圆柱齿轮的耐疲劳工作能力计算 17
3.4 圆柱齿轮齿轮轮 18
3.4.1 主动齿轮轮的齿形设计 18
3.4.2 轴面齿廓尺寸 20
3.4.3 齿轮轮结构尺寸 22
3.4.4从动齿轮轮的齿形设计 22
3.4,5 轴面齿廓尺寸 23
3.4.6齿轮轮结构尺寸 24
3.5 齿轮齿合传动装置的设计计算 24
3.5.1 齿轮类型和精度等级 24
3.5.2 按齿面接触疲劳强度计算 24
3.5.3.校核计算 25
3.5.4.确定传动主要尺寸 27
3.5.5.按齿根弯曲疲劳强度验算 27
3.6 轴的设计计算 29
3.6.1 齿轮轴的设计计算 29
3.6.2.轴的结构设计 29
3.6.3. 轴的强度计算 30
3.6.4主动齿轮轮轴的设计计算 31
3.7 传动结构及设计 32
3.8 传动轴的结构设计 34
4.气压系统主要参数的确定 35
4.1 系统压力的初步确定 35
4.2 气压执行元件的主要参数 36
5.气压系统方案的选择和论证 39
5.1 气路循环方式的分析和选择 39
5.2 开式系统气路组合方式的分析选择 40
5.3 调速方案的选择 40
6.气压元件的选择计算 41
6.1 气泵和电机选择 41
6.2 控制阀的选用 42
6.3 管路,过滤器,其他辅助元件的选择计算 43
总结 46
致 谢 47
参考文献 48
|