新型谷物储放系统设计(含CAD零件装配图,SolidWorks三维图)(论文说明书7800字,外文翻译,CAD图纸10张,SolidWorks三维图)
摘 要
我国的谷物生产及消费量十分巨大,自2013年以来,我国粮食总产量连续九年增长,其中谷物(稻谷、小麦、玉米)约占粮食总产量的九成。全国粮食单位面积产量5452.1公斤/公顷(363.5公斤/亩),位于世界第三,仅次于世界第一的美国和世界第二的加拿大,而全球每年13亿吨食物被浪费,亚洲谷物浪费尤突出,联合国粮食及农业组织11日发布的一份研究报告显示,全球食物浪费现象惊人,不仅造成重大经济损失,而且严重危害人类赖以生存的自然资源。
为了解决这个问题,我们开发了一套投料、干燥、杀菌、存储在一个新的粮食存储系统中,一种新型的粮食存储系统是适应农业发展,该技术将作物浪费现象降到最低,粮食存储率和利用率提高,新技术越来越得到人们的欢迎,也带来了科技人员的关注。
本次设计主要是对谷物存储系统这种机器设备进行结构分析以及一些必要的计算过程说明,通过对环模的内径以及外径等众多因素的分析整合,从而设计出最为合适的尺寸以及一些必要的参数要求,再者通过solidworks绘图软件,对设计的产品进行3维立体的构图之后,完成总体的装配,与此同时,在这种情况下为了提高干燥的能力,选用的是螺旋式的干燥等装置。最后从现实生活中的实际生产情况来说,将整体的尺寸进行合理的优化并最终确定一些必要的设计要求参数,使储存设备能够运转工作的更高效更能使利益最大化。
关键词: 谷物;农业机械设计结构;干燥杀菌;储存仓结构
ABSTRACT
Grain production and consumption in China is very large, since 2013, China's total grain output growth for nine years, with grains (rice, wheat, corn) accounted for about ninety percent of the total grain output. National grain yield per unit area of 5452.1 kg/ha (363.5 kg/mu), located in the third world, second only to the top of the world the United States and Canada, the world's second, and each year 1.3 billion tons of food wasted, Asian corn waste particularly prominent, the UN's food and agriculture organization (fao) 11, according to a study released global food waste phenomenon, not only cause great economic losses, the survival of humans and cause serious damage to natural resources.
In order to solve this problem, we developed a set of feeding, drying, sterilization, storage in a new grain storage system, a new type of grain storage system is to adapt to the agricultural development, the technology will crop waste to a minimum, grain storage rate and utilization rate of increase, new technology, more and more get the welcome of people, also bring the attention of the scientific and technical personnel.Also through solidworks drawing software, after three dimensional composition of the design product, completing the overall assembly. At the same time, in this case, in order to improve the ability of the material, it is a spiral conveyor.
This design is mainly to grain storage system this kind of machine equipment for structural analysis and some necessary calculation process, based on the inner and outer diameter of the ring die with the analysis of many factors such as integration, so as to design the most suitable size, and some necessary parameter requirements, moreover through solidworks drawing software, the design of the product after 3 d composition, complete the general assembly, at the same time, in this case, in order to improve the ability of drying, selection of drying device is a spiral. Finally in the actual production conditions in real life, will be the size of the whole reasonable optimization and ultimately determine the necessary requirement of design parameters, the storage devices can operate work more efficient and to maximize the benefits.
Keywords: Grain ; Agricultural machinery design; Dry sterilization; Store mould structure
1.2.1 设计要求
谷物干燥的主要作用对象是稻谷,小麦和玉米。在干燥过程中,粮食进出口方便。一次最大粒径为1吨,粒径为1%~2%小时,收集数据后,干燥前后的粮食含水量分别为: ,干燥后的粮食含水量 、谷物干燥后的温度 、夏季气温较差时的环境空气温度 和相对湿度 、滚筒内的温度 ,机器工作效率是每小时完成2吨的粮食干燥。
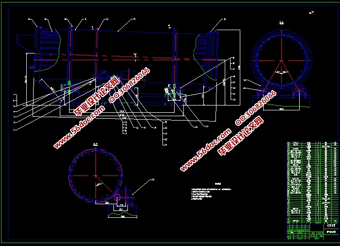
1.2.2 谷物烘干机的原理和机械结构图
工作原理:工作时,在保持进料端和出料端不动的情况下滚筒进行旋转使得进料和出料不中断,滚筒上装有用螺栓固定的圆形齿轮圈,在与齿轮配合之后用电机进行驱动,带动滚筒进行旋转,同时谷物在抄板的作用下均匀的旋转再通过在滚筒的一段鼓入热风从而使得谷物上的水分逐渐的蒸发掉,且滚筒在有一定的倾角情况下安装,谷物在滚筒中运动一定时间后会自动的从卸料口落下
1、进料口 2、炉气进口 3、进料端挡罩 4、轴承座 5、支承托轮
6、传动小齿轮 7、减速箱 8、联轴器 9、电动机 10、卸料口
11、炉气出口 12、传动齿圈 13、滚圈 14、干燥滚筒



目 录
摘 要 I
ABSTRACT II
引 言 1
1.1 烘干机设计 2
1.1.1 谷物干燥的意义 2
1.1.2 谷物的干燥机理 2
1.1.3 国内研究 2
1.1.4 国外现状 2
1.2 烘干设计 3
1.2.1 设计要求 3
1.2.2 谷物烘干机的原理和机械结构图 3
1.2.3 滚筒烘干机的直径与长度的确定 4
1.2.5 筒体结构组成 9
1.2.7 托轮和轴承设计 20
1.3 传动部分 26
1.3.1 传动功率的选择 26
1.3.2 减速器的参数选择 27
1.4 烘干设计 28
1.4.1 烘干谷物所需要的时间具体的计算: 28
1.4.2 粮食的干燥前后的重量: 28
1.4.3 热值计算 29
第二章 杀菌部分 31
2.1 拉佛尔喷管式灭菌设计 31
2.1.1谷物杀菌的意义 31
2.1.2拉佛尔喷管式灭菌原理 31
第三章 谷物储存 32
3.1 谷物储存的意义 32
3.2 储存仓的结构示意图 32
第四章 投料部分 33
4.1投料装置的研究状况和发展趋势 33
4.2 投料装置原理 33
第五章 结论 35
5.1系统流程详解 35
5.1系统流程图 35
参考文献 36
附录1 外文翻译 37
附录2 外文文献 40
致谢 43
|