DL32M斜床身数控机床尾座结构设计(含CAD零件装配图,SolidWorks三维图)(论文说明书10000字,外文翻译,CAD图4张,SolidWorks三维图,爆炸视频)
摘 要
机床为制造企业的工作母机,数控机床广泛应用于工程实践中,数控机床尾座系统的结构和性能的优劣直接影响对工件的加工效率、精度和成本,设计可编程尾座可以提高加工过程的自动化和现代化,减少人力,缩短工时,做到与时俱进,适应社会的快速发展和进步,将会给企业带来很大的效益。
本设计是针对传统手动尾座无法适应高效率数控机床这一现象,设计出一种可以实现自动化的全新尾座。首先查阅国内外相关资料为设计的开始做准备,接下来通过选择驱动方案,选择锁紧方案,然后完成总体的方案设计。根据机床主体尺寸设计出尾座上下箱体的尺寸,然后根据尾座上下箱体的结构和尺寸设计出内部各零件尺寸,最终完成了尾座总体装配的结构设计,画出CAD装配图与重要零件图及三维图。最后进行伺服电机的选型及其他零件的选型校核,液压锁紧校核等方面计算的工作完成斜床身数控机床尾座结构的设计。
本设计在参考传统手动尾座结构和给出的设计要求的基础上,设计出全新的尾座上下箱体的结构和各个零件,设计可实现尾座移动的伺服电机驱动部分,液压缸控制的锁紧部分等,实现快速自动进给顶紧和自动液压锁紧。实现了机床尾座在机械加工过程中的自动化,高速化,大大减少人力,缩短工时,更加适合现代化的企业,可编程尾座的设计一定会带给企业高效益和降低工人的劳动强度。
关键词:数控车床;尾座;结构设计
ABSTRACT
The machine tool is the working machine of the manufacturing enterprise. The CNC machine tool is widely used in engineering practice. The structure and performance of the tailstock system of the CNC machine tool directly affect the machining efficiency, precision and cost of the workpiece. The design of the programmable tailstock can improve the machining process. Automation and modernization, reducing manpower, shortening working hours, advancing with the times, and adapting to the rapid development and progress of society will bring great benefits to enterprises.
This design is for the traditional manual tailstock can not adapt to the phenomenon of high-efficiency CNC machine tools, design a new tailstock can be automated. First, consult the domestic and foreign relevant data to prepare for the beginning of the design, then select the locking scheme by choosing the driving scheme, and then complete the overall scheme design. According to the size of the main body of the machine, the dimensions of the tailstock upper and lower boxes are designed, and then the dimensions of the internal parts are designed according to the structure and dimensions of the tailstock upper and lower boxes. Finally, the overall design of the tailstock assembly is completed, and CAD assembly drawings and important drawings are drawn. Parts and 3D drawings. Finally, the selection of the servo motor and the selection of other parts, the calculation of the hydraulic locking and other aspects completed the design of the tailstock structure of the slant bed CNC machine tool.
This design is based on the traditional manual tailstock structure and given design requirements, and designs a new tailstock upper and lower box structure and various parts, designed to achieve the servo motor drive part of the tailstock movement, hydraulic cylinder control Locking parts, etc., to achieve fast automatic feed tight and automatic hydraulic lock. It realizes the automation of machine tailstocks in the machining process, speeds up the work, greatly reduces manpower, shortens working hours, and is more suitable for modern companies. The design of the programmable tailstock will bring high efficiency to the enterprise and reduce the labor intensity of the workers.
Key Words:CNC lathe; Tailstock; Structural design
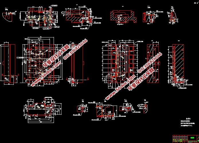
由于本次设计是为了实现尾座的自动控制,但传统的手动尾座结构很难实现我们的要求,所以在尾座整体结构方面相对于传统的手动尾座做了很多的改进,要实现尾座整体的自动移动,要实现尾座整体的自动锁紧,要实现尾座套筒的自动伸缩,就要设计与之相对应的全新的结构。所设计的尾座的结构主要包括:尾座的上箱体,尾座的下箱体,与上箱体配合的套筒,与下箱体配合的液压锁紧结构,电机滚珠丝杠传动部分。






目 录
摘 要 I
ABSTRACT II
1 绪论 1
1.1选题的目的和意义 1
1.2国内外发展现状和发展趋势 1
1.3设计的主要内容 2
2 DL32M 斜床身数控机床尾座方案设计 4
2.1驱动机构方案设计 4
2.2锁紧机构方案设计 7
3 DL32M 斜床身数控机床尾座结构设计 10
3.1尾座上下箱体设计 10
3.2尾座套筒设计 11
3.3尾座液压缸设计 12
4 组成元件选择计算 15
4.1电机选型 15
4.2滚珠丝杠选型 17
4.3对尾座整体液压锁紧装置进行计算校核 20
4.4上下箱体锁紧螺栓预紧力计算 20
5 尾座总体装配图 24
6 结 论 25
参 考 文 献 26
附录1:外文翻译 27
附录2:外文原文 35
致 谢 41
|