冲床自动送料机构设计(160mm)(含CAD零件装配图)
来源:56doc.com 资料编号:5D17422 资料等级:★★★★★ %E8%B5%84%E6%96%99%E7%BC%96%E5%8F%B7%EF%BC%9A5D17422
资料以网页介绍的为准,下载后不会有水印.资料仅供学习参考之用. 密 保 惠 帮助
资料介绍
冲床自动送料机构设计(160mm)(含CAD零件装配图)(论文说明书12000字,外文翻译,CAD图4张)
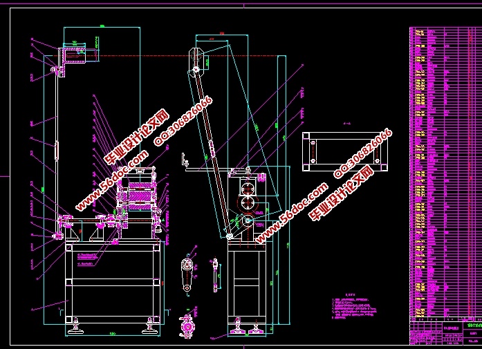
摘要:传统冲床机构是由人工送料,耗时长且工作效率低,所以现改进用冲床自动送料机构,提高机床运动效率,降低人力。由于送料的工件厚度比较薄,综合选定辊轴送料机构。
论文对现有设备结构进行分析,在现有结构的基础上,利用主轴原动力,采用曲柄摇杆机构,棘轮机构,双辊轴实现冲床自动送料。通过原理分析,计算送料机构的相关构件尺寸,进行结构设计;再对关键零部件进行强度计算和校核,如齿轮、轴、轴承和键等,以满足设计要求。
Automatic feeding mechanism of punch press
Abstract:
The traditional punching machine is made of artificial feeding,
which is time-consumin-and inefficient. Therefore, the automatic
feeding mechanism of punching machine is used to improve the efficiency of machine tool movement and reduce manpower.
Because of the relatively thin, comprehensive selection of the roller
feeding mechanism.
The paper analyzes the existing equipment structure, and on the based on.the existing structure, the main shaft driving force is used to drive
the crank rocker mechanism. The ratchet mechanism and the double roller are usedto relize the automatic feeding of the punch press. Through the principle analysis, the relerant component size of the feeding mechanism is calculated and the structural
design incarried out. Then the key parts are calculated and checked, such as gear,
shaft, bearing and key to meet the design requirements.
Keywords:Punch; Automatic feeding; Crank rocker mechanism.
板料送进运动原理:大齿轮带动小齿轮运动,同时上辊轴被压紧,所以被上下辊轴压住的板料就被带动向前行进。
曲柄运动原理:曲柄连接着两个运动,一个是曲柄滑块运动,一个是曲柄摇杆运功。这两个运动是同时进行的,并且曲柄摇杆连接着板料送进运动。
1.曲柄滑块运动原理:曲柄是绕固定点旋转,并且带动着滑块上下运动。由于曲柄不停循环360度作运动,则滑块也上下做周期性的运动。
2.曲柄摇杆运动原理:曲柄运动带动着大齿轮运动,而大齿轮与小齿轮啮合,也就是顺着带动小齿轮向前转动。由于小齿轮(下辊轴)与上辊轴合力压住了板料,板料同时也被带动着向前运动,着也就是板料送进运动。可知此时曲柄也不停循环360度作运动,则齿轮运动也是周期性的运动。
板料送进运动和曲柄滑块上下运动是同时做循坏运动,就顺利完成了自动送料。
1. 板料送进距离Sn =160mm
2. 压机频次n =170次/分
3. 板料厚度B=2.5mm
4. 冲压滑块行程H=80mm
5. 许用压力角[α]=25度
6. 板料送进阻力Fb=550N
7. 冲压板料时的阻力Fr=2500N
8. 速度不均匀系数δ=0.03
9. e=0
10. 底面至冲床工作台面距离为20~50mm
11. 上辊轴半径Rb=下辊轴半径=小齿轮半径=60 mm
12. 大齿轮半径R2=120mm
13. R=180mm
14. X=370mm
15. Y=1250mm



目 录
1 绪论 1
1.1 冲压在机械制造中的地位及特点 1
1.2 现代冲压加工发展趋势 2
2自动送料机构的总体方案设计 3
2.1送料机构的选择 3
2.1.1自动送料装置的选择 3
2.1.2送料方式的选择 3
2.2机构的尺寸 4
2.2.1机构的原始尺寸 4
2.2.2确定机构的尺寸 5
2.3送料机构的运动原理 6
2.4送料时间及其调整方法 7
2.5送料装置机构运动分析 8
2.5.1作滑块和板料的位移曲线图 8
2.5.2作滑块和板料的速度线图(v-t曲线) 8
2.6小结 9
3冲床自动送料机构的设计 10
3.1上下辊的尺寸 10
3.2压紧装置 10
3.3抬辊装置 11
3.4驱动机构 12
3.4.1曲柄摇杆机构尺寸 12
3.4.2曲柄滑块机构尺寸 12
3.5间歇运动机构 13
3.6其它零件 13
3.7离合器 13
3.8小结 14
4齿轮的设计及校核 15
4.1齿轮的初步设计 15
4.2齿面接触疲劳强度验算 16
4.3齿根弯曲疲劳强度验算 18
4.4小结 19
5轴的设计及校核 20
5.1下辊轴的校核 20
5.2大齿轮轴的校核 24
5.3小结 28
6 轴承的设计和校核 29
6.1第一对轴承的校核 29
6.2第二对轴承的校核 30
6.3小结 31
7 键的设计和校核 32
7.1第一个平键的设计和校核 32
7.2第二个平键的设计和校核 33
7.3第三个平键的设计和校核 34
7.4小结 34
8 零件的润滑 35
8.1齿轮的润滑 35
8.2轴承润滑 35
8.3小结 36
9. 密封和注意事项 37
9.1轴承的密封 37
9.2注意事项 37
9.3小结 38
总结 39
结束语 40
参考文献 41
致 谢 42
附录A 外文文献 43
|