{$cfg_webname}
主页 > 机械机电 > 机械 >

多功能机械臂总体设计(含CAD零件装配图)

来源:56doc.com  资料编号:5D17533 资料等级:★★★★★ %E8%B5%84%E6%96%99%E7%BC%96%E5%8F%B7%EF%BC%9A5D17533
资料以网页介绍的为准,下载后不会有水印.资料仅供学习参考之用. 帮助
资料介绍

多功能机械臂总体设计(含CAD零件装配图)(论文说明书10000字,CAD图纸9张)
摘要
本毕业设计是一个多功能机械臂与传动装置综合设计的设计。首先,多功能机械臂与传动装置综合设计作了简单的概述;接着分析和多功能机械臂与传动装置综合设计计算方法的选择原则;然后根据这些设计准则与计算基础的设计;然后检查连杆装置的主要部件的选择。普通型多功能机械臂与传动装置综合设计由六个主要部件组成:目前,多功能机械臂与传动装置综合设计向长距离,高速度,低摩擦的方向发展,近年来,多功能机械臂与传动装置综合设计就是其中的一个。在设计中,该多功能机械臂与传动装置综合设计的研制与应用,目前我国与国外先进水平相比仍有较大差距,在过程中的国内设计和多功能机械臂与传动装置综合设计的制造中存在着许多问题。
多功能机械臂与传动装置综合设计设计代表了设计的一般过程,对今后的设计工作的选择有一定的参考价值。
                        
关键词:多功能机械臂与传动装置综合设计      传动装置      液压   连杆

总体方案
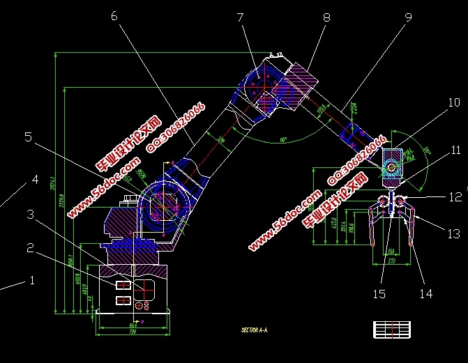
多功能机械臂主要由爪杆、爪杆、升降旋转机构、动力装置和连杆旋转机构五部分组成。其总体设计方案如图4-1所示。夹紧油缸和爪杆旋转装置连接在一起,由动力装置提供动力,使爪杆能实现旋转和夹紧松开的操作。连杆旋转机构以及升降旋转机构其动力也是由动力装置提供来使机械爪产生相应动作。
 

多功能机械臂总体设计(含CAD零件装配图)
多功能机械臂总体设计(含CAD零件装配图)
多功能机械臂总体设计(含CAD零件装配图)
多功能机械臂总体设计(含CAD零件装配图)


目 录
摘要    2
一、    绪论    5
1. 国外研究现状    6
2. 国内研究现状    6
3. 研究内容    6
4 研究方案    7
二、多功能机械臂材料介绍及选择    8
三、多功能机械臂主要零部件设计计算    10
1、多功能机械臂连杆断面设计方式    10
2、整体机械爪架强度的计算    11
3、连杆变形度计算    14
四,爪杆的设计方法:    15
1 爪杆旋转装置    15
2爪杆的设计    16
3、爪杆中央断面设计    16
五,齿条的升降旋转机构的设计:    18
1 齿条的升降旋转机构    18
2、最大歪斜侧向力    18
3,爪杆中央断面合成应力:    19
4  轴的设计计算    19
1  齿轮轴的设计计算    19
2 .轴的结构设计    20
3  轴的强度计算    20
4 主动齿轮轴的设计计算    21
六、电动机的选择    22
七、液压缸的设计计算    23
7.1计算工作循环中的最大载荷    23
7.2   确定液压缸参数    26
1 确定管道直径    28
2液压油的选择    29
3 液压缸壁厚、外径及工作行程的计算    29
八、多功能机械臂的组装要求及操作方式     30
1、多功能机械臂的安装注意事项    30
2,多功能机械臂的试验要求    30
致谢    30
参考文献    31

推荐资料