普通车床送料机械手的设计(含CAD零件装配图,液压系统图,PLC接线
来源:56doc.com 资料编号:5D17538 资料等级:★★★★★ %E8%B5%84%E6%96%99%E7%BC%96%E5%8F%B7%EF%BC%9A5D17538
资料以网页介绍的为准,下载后不会有水印.资料仅供学习参考之用. 密 保 惠 帮助
资料介绍
普通车床送料机械手的设计(含CAD零件装配图,液压系统图,PLC接线图)(任务书,开题报告,外文翻译,论文说明书22000字,CAD图纸6张)
摘 要
工业机器人的技术水平和应用程度在一定程度上反映了一个国家工业自动化的水平,随着工业自动化发展的需要,机械手在工业应用中越来越重要。目前工业机械手主要承担着焊接、喷涂、搬运以及下料等重复性并且劳动强度较大的工作。本文简要介绍了工业机器人的概念,机械手的组成和分类,气动技术的特点及国内外发展状况,本文主要对车床送料机械手进行了总体结构设计,确定了机械手的技术参数。同时,设计了机械手的手部结构、腕部结构及机械手的升降臂和回转臂结构,研究了机械手的气动系统。
关键词:工业机器人;机械手;车床送料
设计具体采用的方案
因为本设计机械手采用圆柱坐标型的结构,而且在手臂的结构设计以及整个机械手的设计和布局中都重点考虑了机械手手臂的平衡问题,通过合理布局,优化设计结构,使得手臂本身尽可能达到平衡。若实际工作中平衡结果不满足,则设置弹簧平衡机构进行平衡。
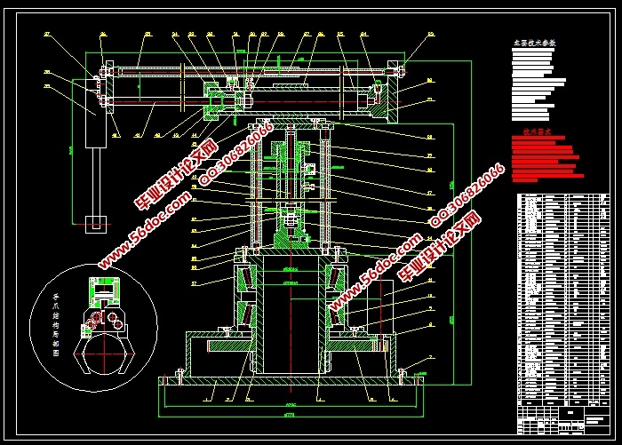
车床送料机械手的技术参数
一、用途:
普通车床自动下料
二、设计技术参数:
送料重量:30kg
自由度数:4个自由度
坐标型式:圆柱坐标
最大工作半径:3000mm
手臂最大中心高:
手臂运动参数: 伸缩行程:500mm
升降行程:660mm
回转范围:
回转速度:
手腕运动参数: 回转范围:
回转速度:
手指夹持范围:250mm*380mm*220mm
定位方式:可调机械挡块
定位精度:
缓冲方式:液压缓冲器
驱动方式:气压传动
控制方式:点位程序控制


目 录
Abstract II
1 绪论 1
1.1 课题背景及研究意义 1
1.2 国内外相关研究情况 1
1.3 国内外发展状况 2
2 机械手的设计方案 4
2.1 机械手的座标型式与自由度 4
2.2 机械手的手部构造方案选择 4
2.3 机械手的手腕构造方案选择 4
2.4 机械手的手臂构造方案选择 4
2.5 机械手基座设计选择 4
2.6 机械手的驱动方案设计 5
2.7设计具体采用的方案 5
2.8 车床送料机械手的技术参数 5
3 结构部分设计 7
3.2 机械手腰座结构的设计 7
3.3.1 机械手腰座结构的设计要求 7
3.3.2 设计具体采用方案 7
3.3 机械手手臂的结构设计 8
3.3.1 机械手手臂的设计要求 8
3.3.2 规划详细选用计划 9
3.4 机械手腕部的构造规划 9
3.4.1 机器人手腕构造的规划请求 10
3.4.2规划详细选用计划 10
3.5机械手末端执行器(手爪)的结构设计 11
3.5.1机械手末端执行器的设计要求 11
3.5.2机器人夹持器的运动和驱动方式 12
3.5.3 机器人夹持器的典型结构 12
3.5.4设计具体采用方案 12
3.6机械手的机械传动机构的设计 13
3.6.1工业机器人传动机构设计应注意的问题 13
3.6.2工业机器人常用的传动组织方式 14
3.6.3 设计具体采用方案 16
3.7机械手驱动系统的设计 16
3.7.1机器人各类驱动系统的特点 16
3.7.2工业机器人驱动体系的挑选准则 17
3.7.3机器人液压驱动体系 17
3.7.4 机器人气动驱动体系 18
3.7.5机器人电动驱动体系 19
3.7.6规划详细选用计划 21
3.8 机器人手臂的平衡组织规划 21
3.8.1机器人平衡组织的方式 21
3.8.2规划详细选用的计划 21
4 机械手控制系统的设计 22
4.1机械手控制系统硬件设计 22
4.1.1机械手工艺过程与控制要求 22
4.1.2机械手的作业流程 22
4.1.3机械手操作面板安置 23
4.1.4控制器的选型 24
4.1.5控制系统原理分析 24
4.1.6 PLC外部接线设计 25
4.1.7 I/O地址分配 25
4.2机械手控制系统软件设计 26
4.2.1机械手控制主程序流程图 26
4.2.2机械手控制程序设计 27
结论 29
参考文献 30
致谢 31
|