{$cfg_webname}
主页 > 机械机电 > 机械 >

液压板料折弯机的设计计(含CAD零件装配图,SolidWorks三维图)

来源:56doc.com  资料编号:5D17600 资料等级:★★★★★ %E8%B5%84%E6%96%99%E7%BC%96%E5%8F%B7%EF%BC%9A5D17600
资料以网页介绍的为准,下载后不会有水印.资料仅供学习参考之用. 帮助
资料介绍

液压板料折弯机的设计计(含CAD零件装配图,SolidWorks三维图)(论文说明书9500字,CAD图纸6张,SolidWorks三维图)
摘要
折弯机技术先进、性能可靠,是较理想的板料成形设备之一,它广泛用于飞机、汽车、造船、电器机械及轻工等行业,生产效率高。
该折弯机采用液压系统机构,工作和操作半自动化控制,结构简单,体积较小,与老机型相比,噪声低、功率损失少、工作效率高、板料弯曲角度准确、操作安全可靠、调节方便。适用于板材的直角弯曲,既提高了生产效率和弯曲质量,又简化操作程序,减轻工人劳动强度。
该种折弯机的设计主要涉及弯曲模具的设计和液压系统的设计,折弯机工作部分是弯曲模具,选用“V”形弯曲模具。液压系统主要是为折弯机提供动力,根据弯曲工件所需弯曲力选择电动机、液压泵以及液压缸等一些液压元件。

关键字:折弯机,模具,液压系统,板料

分析零件的工艺性
本次被折弯的零件的断面形状是“Z”形,由图2-1可知,零件结构简单,弯曲要求达到尺寸的精度、弯曲半径等均符合弯曲工艺要求。
 

液压板料折弯机的设计计(含CAD零件装配图,SolidWorks三维图)
液压板料折弯机的设计计(含CAD零件装配图,SolidWorks三维图)
液压板料折弯机的设计计(含CAD零件装配图,SolidWorks三维图)
液压板料折弯机的设计计(含CAD零件装配图,SolidWorks三维图)
液压板料折弯机的设计计(含CAD零件装配图,SolidWorks三维图)
液压板料折弯机的设计计(含CAD零件装配图,SolidWorks三维图)


目 录
摘要    I
ABSTRACT    II
1 折弯机简介    1
  1.1 折弯机的应用    1
  1.2 折弯机的分类与组成    3
2 弯曲模具的设计    5
  2.1 分析零件的工艺性    7
  2.2 确定工艺方案    8
  2.3 进行必要的工艺计算    10
  2.4 Z型弯曲模具主要零部件设计    14
  2.5 弯曲模具其他零件设计与选用    17
3 液压系统的设计    23
  3.1 设计要求及工况分析    26
  3.2 确定液压系统主要参数    27
  3.3 计算和选择液压元件    29
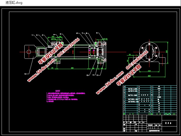
4 液压缸的设计    30
  4.1 液压缸基本参数确定    32
  4.2 液压缸结构参数确定    33
  4.3 液压缸主要性能参数    35
5 折弯机特点分析    36
结论    37
致谢    38
参考文献    39

推荐资料