主架体镗孔专机镗模设计(含CAD图)(任务书,开题报告,外文翻译,论文说明书12000字,CAD图13张)
摘要
夹具广泛应用于各种制造工序中,用以将工件定位并牢固的夹持在一定的位置,以便按照产品设计规定完成要求的制造过程,并且不同的批量如单件、成批和大量生产而使用和开发不同的夹具。在机械加工中,许多产品的关键零件——机座、箱体等,往往需要进行精密孔系的加工。这些孔系不但要求孔的尺寸和形状精度高,而且各孔间及孔与其它基准面之间的相互位置精度也较高,用一般的办法加工很难保证。为此,工程技术人员设计了各种专用镗孔夹具:镗模,从而解决了孔系的加工问题。采用镗模后,镗孔精度基本上可不受机床精度的影响,对于缺乏高精度镗孔机床的中、小工厂,就可以用普通机床、动力头以至其它经改装的旧机床来批量加工精密孔系。大大提高了生产效率。
本次的设计任务是主架体镗孔专机镗模设计。论文首先对主架体进行分析,然后开始定位夹紧分析,并制定所要的镗孔加工工艺路线以及所要加工孔的数据分析,然后具体介绍了镗模的设计过程,主要包括镗模的结构方案,相关切削参数的计算,刀具的选择等相关设计等工作。最后借助CAD软件完成了相关图纸的绘制。
关键词:镗模 加工工艺 切削力
Main frame boring machine boring mold design
Abstract
The fixture is widely used in various manufacturing processes, to the workpiece positioning and firmly clamped in place, so that in accordance with the design requirements to complete product manufacturing process requirements, and different quantities such as single, batch and mass production and use and development of different fixture.In mechanical processing, key frame, body parts -- many products, often need to carry on processing precision holes. Size and shape precision of these holes not only require the hole is high, and the precision of position between each hole and the hole and the other datum is also high, with the general approach is very difficult to guarantee.Therefore, engineering design special jig boring: boring mode, thus solving the problem of machining holes. The boring boring precision mold, basically can not be influenced by the accuracy of machine, small factories, for lack of high precision boring machine bed, can use ordinary machine, power head and other modified the old machine to batch processing precision holes.greatly improving the production efficiency.
This design task was boring machine boring jig design of main frame. The paper first carries on the analysis to the main frame body, and then start positioning clamp analysis, analyze and formulate the boring processing routes to and to the processing hole data, and then presents the design process and die structure, mainly including boring mode, calculation of the correlation of cutting parameters, tool selection and other related design etc. work. finally completed the drawing of the relevant drawings using CAD software.
Keywords : Boring jig Processing technology The cutting force
1.1设计任务
主架体镗孔专机镗模,用于专机镗孔加工工序,是配套镗孔专机使用的专用工装。
1.2材料及工艺要求
材料:HT200 硬度:176~241HB
主轴孔:2×Ф 粗糙度Ra为0.8
蜗杆孔:Ф 粗糙度Ra为1.6
Ф50 粗糙度Ra为1.6
涡轮孔:Ф 粗糙度Ra为1.6
进给孔:Ф 粗糙度Ra为1.6
Ф 粗糙度Ra为1.6
1.3设计要求
1)保证年生产纲领12000台/年
2)保证主轴箱体的精度要求
3)力求结构设计达到标准化,通用化。



目录
摘要 I
Abstract II
第一章 绪 论 3
1.1研究的目的及意义 1
1.2国内外的发展及研究状况 1
1.3本课题研究的内容 2
1.3.1研究内容 3
1.3.2研究意义 3
第二章 设计任务分析 4
1.1设计任务 4
1.2材料及工艺要求 4
1.3设计要求 4
1.4镗模设计基本过程 4
1.4.2拟定夹具的结构方案,绘制结构草图 5
1.4.3.绘制夹具总装配图及零件图 5
第三章 零件工艺分析 6
3.1工艺基准分析 6
3.1.1定位分析 6
3.1.2夹紧位置与夹紧点的分析 7
3.2加工工艺分析 9
3.2.1零件精度分析 9
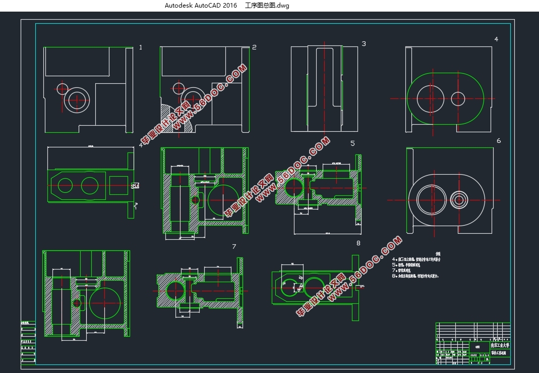
3.2.2工艺路线分析 11
3.2.3加工余量分析 12
3.3方案论证 14
第四章 镗模结构设计 16
4.1绘制镗模结构简图 16
4.2镗模的基本组成与设计 18
4.2.1镗套的设计 18
4.2.2刀具选择 19
4.2.3镗模的支架结构 20
4.3定位及夹紧元件的设计 23
4.3.1定位元件 23
4.3.2 夹紧机构设计 24
4.4切削用量的确定 25
4.5夹紧力的计算 26
4.6误差分析 27
4.6.1定位误差 27
结语 30
参考文献 31
致谢 33
|