摘 要 本论文为加工主轴箱箱体右侧十个螺纹底孔的组合钻床的设计。 根据加工工件的尺寸图和生产要求,合理的拟定设计方案,完成该机床各部件及系统的设计,主要包括加工工序的制定,主轴、刀具的选择,多轴箱和滑台的合理选用,主轴箱内传动系统的设定,夹具的设计,以及制定液压和控制系统。设计过程中,在满足设计要求的同时,应该注意相互间的合理配合,这样才能从整体上把握组合机床的性能和结构。 为使设计符合现代化要求,该组合机床采用PLC控制系统来控制机床的工作,PLC控制是具有功能完善、通用灵活、简单易懂、操作方便和价格便宜等优点,这不仅满足了现代社会对生产的需要同时也体现了人性化设计的要求。 ABSTRACT This thesis combination machine for design processing many stalks the box ten screw threads of rights the bore bed. According to the processing work piece dimensional drawing and the production request, reasonable draws up the design proposal, completes this engine bed various parts and the system design, mainly includes the processing working procedure the formulation, the main axle, the cutting tool choice, the multi-axle-boxes and the sliding table select reasonably, in headstock transmission system hypothesis, jig design, as well as formulation hydraulic pressure and control system. In the design process, while satisfies the design request, should pay attention to mutually the reasonable coordination, like this can grasp the aggregate machine-tool overall the performance and the structure. For making design to meet the modern request, and reshuffle to match the machine bed to adopt the PLC to control the system to control the revolving of machine bed, PLC control to have the function perfect, in general use and vivid, in brief and easily understand, operation convenience with price cheapness etc. Advantage, this not only satisfied the modern society to demand production also now the request of the humanized design.
通过毕业设计应达到以下目的: (1)了解有关产品的设计的一般程序和方法。 (2)综合运用所学知识培养独立解决有关工程技术问题的能力,巩固和提高计算和制图基本技能。 (3)初步具备调查研究,收集资料、分析和综合问题及撰写技术文件方面的能力。 (4)围绕毕业设计课题一步一步加深和扩大知识领域。 (5)逐步树立真确的设计思想和认真的设计作风。
毕业设计的有关内容及计算: (1)材料HT300:该加工件为主轴箱箱体,由表3-1 灰铸铁的牌号和力学性能 ,可知HT300型号的铸铁适于制造多轴机床主轴箱。 (2)硬度242HBS:查表3.2-3 灰铸铁铸件预计的机械性能及应用举例,有σb=290MPa,由硬度与抗拉强度间对应的经验公式,当σb>196MPa时 HB=RH(100+0.438σb) 灰铸铁相对硬度 RH=0.8~1.20 所以 HBmax=272HBS, HBmin=182HBS, 查表7-24 组合机床设计中推荐的切削力、扭矩及功率计算公式的注解中 HB=HBmax-(HBmax- HBmin)/3 从而 HB=272-(272-182)/3 =242HBS (3)重量估算 m= =38Kg
方案讨论及总体设计 组合机床是由大量的通用部件为基础,配以少量专用部件组成的一种高效专用机床。它能对一种或几种零件进行多刀、多轴、多面、多工位加工,在组合机床上可以完成钻孔、扩孔、铰孔、镗孔、攻丝、车削、铣削、磨削及滚压等工序;生产效力高,加工质量稳定。其组成是:床身(侧底座)、底座(中间底座、立柱底座)、动力滑台、夹具、动力箱、多轴箱、立拄、垫铁、液压装置、电器控制设备、刀具等。 总体方案设计主要包括制定工艺方案(确定零件在组合机床完成的工艺内容及加工方法,选择定位基准和夹紧部位,决定工步和刀具结构形式、种类及切削用量等)、确定机床装配形式、制定影响机床总体布局和技术性能的主要部件的结构方案。




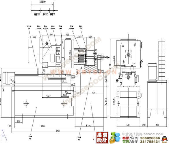
目 录 前言 --------------4 1.毕业设计的目的和内容 --------------5 1.1通过毕业设计应达到的目的 --------------5 1.2毕业设计的有关内容及计算 --------------5 2.方案讨论及总体设计 --------------6 2.1 组合机床工艺方案的制定 --------------6 2.2 切削用量的确定 --------------7 2.3 确定切削力、切削转矩、切削功率--------------7 2.4 加工工序图 --------------8 2.5 液压滑台的设计计算 --------------9 2.6 加工示意图 --------------11 2.7 机床联系尺寸总图 --------------16 3.组合机床多轴箱设计 --------------21 3.1多轴箱的组成 --------------21 3.2 通用钻削主轴 --------------21 3.3通用传动轴 --------------22 3.4通用齿轮和套 --------------22 3.5主轴型式和直径、齿轮模数的确定 --------------22 3.6多轴箱的动力计算 --------------22 3.7 对多轴箱传动的一般要求 --------------23 3.8润滑泵轴和手柄轴的安置 --------------23 3.9 多轴箱传动系统拟定 --------------23 (毕业设计网 ) 3.10 传动零件的校核计算 --------------27 3.11 传动系统的校核计算 --------------27 4.组合机床夹具设计 --------------29 4.1夹具的作用 --------------29 4.2具的组成 --------------29 4.3工件的定位 --------------30 4.4工件的夹紧 --------------30 4.5夹具总图 --------------30 5.液压系统的设计 --------------31 5.1 滑台原位停止 --------------31 5.2 滑台快进 --------------31 5.3 滑台工进 --------------31 5.4 滑台快退 --------------31 5.5液压系统图 --------------32 6.PLC控制系统设计 --------------33 6.1PLC工作原理 --------------33 6.2PLC的控制方式 --------------33 6.3动作循环图 --------------34 6.4端子分配图 --------------35 6.5梯形图 --------------36 6.6指令程序 --------------37 7.毕业设计体会 --------------38 8.致谢 --------------39 9.参考文献 --------------40 10.附录 --------------41 |