{$cfg_webname}
主页 > 机械机电 > 机电一体 >

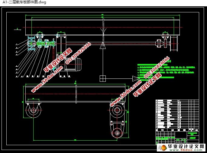
自动化立体停车库的设计(含CAD零件图装配图,电气原理图)

来源:56doc.com  资料编号:5D13559 资料等级:★★★★★ %E8%B5%84%E6%96%99%E7%BC%96%E5%8F%B7%EF%BC%9A5D13559
资料以网页介绍的为准,下载后不会有水印.资料仅供学习参考之用. 帮助
资料介绍

自动化立体停车库的设计(含CAD零件图装配图,电气原理图)(任务书,开题报告,外文翻译,论文说明书16000字,CAD图纸6张)
摘 要
大学学习以外的空闲时间里我时刻关注着车库的发展,毕业设计研究立体车库是源于在一次单位的参观时偶然见到过这种升降横移式的车库,对应的结构是有三层和三列。在思考车库制造成本的同时亦要保证运行的安全可靠。本论文对立体结构车库整体所对应的结构做了简明的论述,阐述了此种车库所对应的控制系统,根据实际运行时所对应的基本工作原理进行了传动方式方面的设计,同时优化了对应的传动方式,所有国家对于停车的相关器材都有着较高的要求和规定,本次论文设计的目的就是将所学习掌握的相关知识运用到设计出能够满足相关规定要求的车库。确保立体车库所对应的强度以及刚度条件可以符合有关安全的标准,从而保证所设计的立体车库可以正常的安全使用,并可以投入到实际的生产过程当中去。
关键词:立体车库;控制系统;升降横移式

The automated three-dimensional garage
Abstract
    University learning outside the spare time I always watching garage's development, graduation design of stereo garage is source to in a unit to visit occasionally seen the up-down and translation of the garage, corresponding to the structure is a three layer and three columns. At the same time to think about the manufacturing cost of the garage, it is also to ensure the safety and reliability of the operation. The stereo garage structure corresponding to the structure of the concise exposition, elaborated the corresponding to this garage control system, according to the time corresponding to the actual operation of the basic working principle of were transmission mode of design, while optimizing the corresponding transmission mode, all countries for parking equipment have higher requirements and regulations. The purpose of the design is the study and master the related knowledge to design to meet the requirements of the relevant provisions of the garage. Ensure that the stereo garage is corresponding to the strength and stiffness conditions can meet the safety standards, so as to ensure the safe use of the stereo garage can be normal, and can be put into the actual production process to.
Key words: Stereo garage ; control system ;Lifting and moving type stereo garage
 

自动化立体停车库的设计(含CAD零件图装配图,电气原理图)
自动化立体停车库的设计(含CAD零件图装配图,电气原理图)
自动化立体停车库的设计(含CAD零件图装配图,电气原理图)
自动化立体停车库的设计(含CAD零件图装配图,电气原理图)
自动化立体停车库的设计(含CAD零件图装配图,电气原理图)
自动化立体停车库的设计(含CAD零件图装配图,电气原理图)
自动化立体停车库的设计(含CAD零件图装配图,电气原理图)


目 录
摘 要    III
Abstract    IV
1 绪 论    1
1.1  自动化立体停车库的设计背景    1
1.2  机械式立体停车库的发展现况    1
1.3  立体式停车库的分类    2
1.4  立体停车库研究的意义    5
1.5  升降横移式的立体停车库工作的原理    5
1.6  升降横移式的立体停车库结构构造    6
2总体的设计方案    9
2.1  总体设计方案的选择    9
2.2  传动方案的分类和选择    9
2.3  动力传动方案的选用    11
3主框架的设计方案    13
3.1  主框架的结构形式选用    13
3.2  主框架钢结构的材料选用    13
4上升下降传动系统的设计选用    15
4.1  升降系统电动机的设计选用    15
4.2  升降系统链传动的设计选用    16
4.3  升降轴的设计    19
4.4  联轴器及键的选择    21
4.5  轴承的设计选择    22
4.6  钢丝绳的选用    22
4.7  卷筒的设计选用    23
4.8  升降轴强度的计算和校核    23
5横向移动传动系统的设计选用    26
5.1  横向移动电动机的设计选择    26
5.2  横移链传动的设计选用    27
5.3  横向移动传动轴A的设计选用    29
5.4  联轴器以及键的设计选用    31
5.5  轴承的设计选用和强度校核    32
5.6  横向移动车轮以及导轨的设计选用    32
6安全防护设施以及停车库的控制系统    34
6.1 防止坠落装置的设计选用    34
6-2停车库系统控制原理框图    34
6-3 PLC的硬件系统结构框图    35
7 小结    36
参考文献    37
致 谢    39

推荐资料