{$cfg_webname}
主页 > 机械机电 > 模具 >

电池柜冷藏箱DC-tall之箱体主要零部件的计算设计(CAD零件图爆炸图,UG三维)

来源:56doc.com  资料编号:5D11489 资料等级:★★★★★ %E8%B5%84%E6%96%99%E7%BC%96%E5%8F%B7%EF%BC%9A5D11489
资料以网页介绍的为准,下载后不会有水印.资料仅供学习参考之用. 帮助
资料介绍

电池柜冷藏箱DC-tall之箱体主要零部件的计算设计(CAD零件图爆炸图,UG三维)★(任务书,开题报告,外文翻译,进度检查表,论文说明书17500字,cad图纸7张,UG三维图80张)
摘  要
中国冲压模具的发展现状改革开放带了我国的经济进入高速发展的时期,模具的市场的需求量也进一步的增加。模具行业也一直以15%左右的增速再发展。因此带来的模具工业企业的所有制成分的巨大变化,一些国有专业模具厂也如雨后春笋般的建立起来,同时也带来了以集体、独资、私营和合资等形式的快速发展。
本零件是对电池柜冷藏箱DC-tall的零件进行冲压成型的模具设计,主要内容有:零件特点和工艺分析;成型工艺方案的制定、分析、比较;凸模结构设计;凹模结构设计;卸料装置设计;模架设计等。设计综合了大学三年所学的机械制图、材料力学、金属工艺、测量与互换、冲压工艺与模具设计、CAD、Pro/e等课程。本次设计直接应用了《冲压工艺与模具设计》、CAD、UG的知识。由于该产品的冲压工艺有冲孔、落料,所以四个安装卡位精度要求高,其它模具结构尽可能简单。通过这次设计,我们初步掌握了模具设计的一般流程和方法,提高了综合知识的运用、计算机辅助设计实操和解决实际问题的能力。

关键词:DC-tall;模具;冲压模具设计

Abstract
Stamping die development present situation of reform and opening up brought China into a period of rapid development of the economy in our country, the mould also further increase the demand of market. Mold industry also has been developing in the growth of around 15%. So bring the great changes in the ownership composition of mould industry enterprises, some state-owned professional mold factory also spring up, at the same time also brought to the collective, the rapid development of the form of sole proprietorship, joint venture and private.
This parts are parts of the battery cabinet freezer, DC - tall stamping forming die design, the main content includes: part features and process analysis; Molding process development, analysis and comparison; Punch structure design; Die structure design; Discharging device design; Die set design, etc. Design integrated the university three years of learning mechanical drawing, mechanics of materials, metal technology, measurement and swaps, stamping process and die design, CAD, Pro/e etc. This design direct application of the stamping process and die design, the knowledge of CAD, UG. Due to the stamping process of the product have a punching, blanking, so four screens installation accuracy requirement is high, the other mold structure as simple as possible. Through this design, we preliminary master die design of the general processes and methods, improve the comprehensive use of knowledge, computer aided design in field and the ability to solve practical problems.

Key words: DC - tall ;die stamping; die design.

1.1 课题来源   
    DC tall是该厂根据市场需求开发研制的电池柜冷藏箱。电池柜冷藏箱(DC tall)的主要结构采用的是钣金材料,本产品的主要研究目的:将电池保持一定的温度,使得电池延长使用寿命。装电池后产品重量达1.42t吊起时顶部的四个螺丝每个都必须能承受220kg的拉力。保持电池柜内部温度25℃±1℃,并保持内部温度的均匀性。
1.2 选题的目的和意义
1.2.1 选题的目的
将电池保持一定的温度,使得电池延长使用寿命。
1.2.2 研究的意义
    节能减排、绿色成本、节约成本。
2.1 主要设计内容:零件特点和工艺分析
2.1.1 零件分析
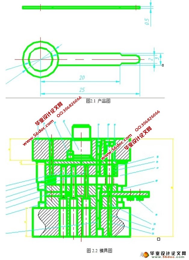
零件冲压生产所需的基本工序只有冲孔、落料两种性质的工序。冲压件尺寸精度高,孔的位置公差要求一般,表面粗糙度一般,互换性能好。具有强度高、刚性好的特点。
2.1.2 批量
该零件总生产数量为大批量生产。
2.1.3 工件及其冲压工艺性分析
  零件的外形对称,结构简单;零件壁宽3>1.5t=1.5×0.5=0.75;孔虽然是配合孔,但孔的尺寸精度和位置精度都只是一般要求,相对直径较大;孔壁尺寸也大于1.5t;以上这些条件都适合冲裁
 

电池柜冷藏箱DC-tall之箱体主要零部件的计算设计(CAD零件图爆炸图,UG三维)★
电池柜冷藏箱DC-tall之箱体主要零部件的计算设计(CAD零件图爆炸图,UG三维)★
电池柜冷藏箱DC-tall之箱体主要零部件的计算设计(CAD零件图爆炸图,UG三维)★

电池柜冷藏箱DC-tall之箱体主要零部件的计算设计(CAD零件图爆炸图,UG三维)★
电池柜冷藏箱DC-tall之箱体主要零部件的计算设计(CAD零件图爆炸图,UG三维)★


目  录
摘  要    III
ABSTRACT    IV
目  录    V
1 绪论    1
1.1 课题来源    2
1.2 选题的目的和意义    2
1.2.1 选题的目的    2
1.2.2 研究的意义    2
2.1 主要设计内容:零件特点和工艺分析    2
2.1.1 零件分析    2
2.1.2 批量    2
2.1.3 工件及其冲压工艺性分析    2
2.1.3.1零件形状和技术要求制定工序顺序    3
2.1.3.2 零件的排样    4
2.1.3.3 材料性能    6
2.1.3.4 模具工作过程    7
2.1.3.5  材料的利用率    7
2.2 难点、成型质量控制    7
2.3 难点处理    7
2.4 零件制造方案制定    8
2.5 冲压方案的确定    8
2.5 冲压设备的选用    10
2.5.1 压力机类型的选择    10
2.5.2 压力机行程的确定    10
2.5.3 冲裁力的计算    10
2.5.4 卸料力的计算    11
2.5.5 额定压力的确定    12
2.6 定位装置    12
2.7 关于压力中心    13
2.8 冲裁间隙的选取    13
2.8.1冲裁间隙对冲裁件质量的影响    13
2.8.2 冲裁间隙值的确定    13
2.8.3 定模具刃口尺寸及其制造公差设计原则    14
2.9 模具工作部分尺寸选择    14
2.9.1冲裁凸凹模的设计原则    14
2.9.2  凸模结构设计    15
2.9.2.4 凸模固定板    16
2.9.2.5 垫板    16
2.10 导向机构    16
2.11 模架    17
2.12 卸料装置设计    17
2.13 模具的工作过程    17
3 钣金工艺    19
3.1 钣金的定义及特点    19
3.2 钣金工艺过程    19
3.3 下加强件的加工过程    21
4 模具零件    23
4.1 重要零件的加工及选择    23
5 结论及展望    27
5.1 结论    27
5.2 不足之处与展望    27
致  谢    28
参考文献    29
 

推荐资料