{$cfg_webname}
主页 > 机械机电 > 模具 >

Z形件弯曲模设计(含CAD图,SolidWorks三维图)

来源:56doc.com  资料编号:5D15287 资料等级:★★★★★ %E8%B5%84%E6%96%99%E7%BC%96%E5%8F%B7%EF%BC%9A5D15287
资料以网页介绍的为准,下载后不会有水印.资料仅供学习参考之用. 帮助
资料介绍

Z形件弯曲模设计(含CAD图,SolidWorks三维图)(论文说明书11600字,CAD图纸9张,SolidWorks三维图)
摘    要
本次设计是Z形件弯曲模的设计,制件为Z形件。本文借鉴了冷冲压模具设计的全部过程。文章主要过程是从产品的工艺分析到最后设计冲压模具,首先,通过对制件的特点的了解,进一步对制件进行工艺分析,确定该制件符合冷冲压加工的要求。冲压工艺方案和结构确定为弯曲模具冲压,并对弯曲模进行设计。除对制件进行排样分析和计算搭边值、冲压力、以及确定模具压力中心外还重点分析了制件的凸模、凹模及其凸凹模结构并进行设计、计算,定位零件的选取和结构分析,以及固定方式等技术难点,最终通过AutoCAD进行绘图,得到相关零件的零件图及弯曲模具的装配图。

关键词:冷冲压;Z形件;弯曲模具设计

Abstract
 This design is Z blanking design of the compound die, product as a Z convex shaped gasket. In this paper, the whole process of cold stamping die design. The article is main process from product process analysis of the final design of the stamping die, first of all, based on the understanding of the parts, parts for process analysis, to determine the work pieces with cold stamping processing requirements. Stamping process scheme and structure determination for the Flip Style compound die punching, and the design of compound die. In addition to the parts layout analysis and calculation on the boundary, pressure, and to determine the pressure center of the mould is focus on the analysis of the parts of the punch, die and punch die structure and design, calculation, selection and structure analysis of positioning component, and the fixed mode to point, finally drawing by AutoCAD the assembly diagram, parts diagram and related parts of the composite mold.

Key words: Cold stamping;Z convex shaped gasket;Compound die design

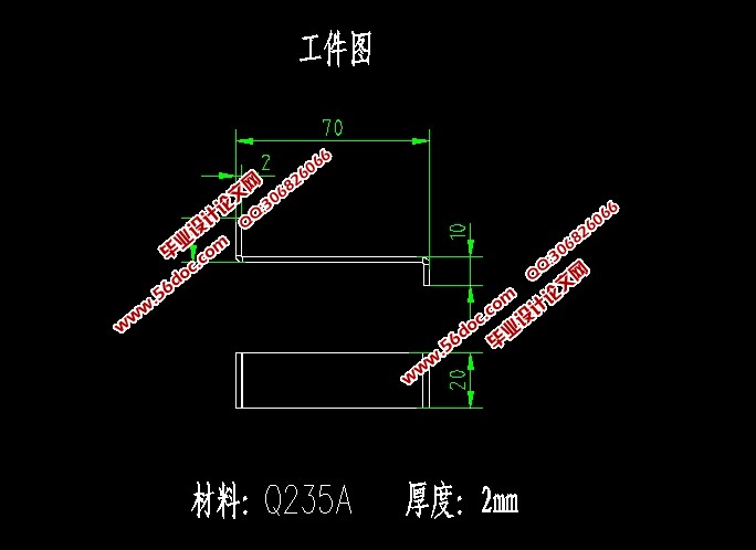
1 冲压工艺性分析
1.对弯曲制件
由工件图可见,该弯曲件外形简单,精度要求不高,工件厚度2㎜。此工件可用一次单工序模弯曲,定位较为容易,且定位精度易保证。
2.对制件材料
材料为碳素结构钢,其抗剪强度为275-392MPa,抗拉强度为353-500MPa,屈服强度为245MPa,弹性模量为206×103MPa.
3.模具的工艺分析:在压力机滑块一次行程弯曲制成工件。该模具属于单工序弯曲,操作安全、不易于自动化,包括自动送料、自动出件、自动叠片,工件和废料均往下漏,因而不易采用高速压力机生产,冲压精度高,生产效率一般。
 

Z形件弯曲模设计(含CAD图,SolidWorks三维图)
Z形件弯曲模设计(含CAD图,SolidWorks三维图)
Z形件弯曲模设计(含CAD图,SolidWorks三维图)
Z形件弯曲模设计(含CAD图,SolidWorks三维图)
Z形件弯曲模设计(含CAD图,SolidWorks三维图)
Z形件弯曲模设计(含CAD图,SolidWorks三维图)


目    录
第一章  前言    6
    1.1我国模具行业的发展方向和前景    7
    1.2 冲压加工的特点    7
 1.3 冲压模具的种类    8
 1.4课题意义    9
第二章 冲压工艺性分析及冲压方案的确定    10
  2.1 冲压工艺性分析    10
  2.2 冲压工艺方案的确定    10
第三章 排样设计及计算    11
  3.1毛坯尺寸计算    12
  3.2排样与定距设计    13
     3.3确定搭边值    13
  3.4确定条料宽度计算利用率    13
第四章 冲裁力的计算及确定压力中心    14
  4.1冲裁力的计算    14
  4.2确定压力中心    15
第五章 冲裁工艺计算    16
  5.1选择双面间隙    16
  5.2冲裁模刃口尺寸计算原则    16
  5.3冲孔和落料刃口尺寸计算    17
第六章 各零件结构尺寸    18
  6.1凹模的设计    18
  6.2凸模设计    18
  6.3 凸模凹模的材料选定    19
  6.4 凸模固定垫板的设计    19
  6.5 卸料部分的设计    19
    6.5.1 卸料装置    20
     6.5.2 推件和顶件装置    20
    6.5.3 橡胶的选用    21
  6.6 定位部分的设计    22
  6.7 模架、模座和导柱导套    23
 6.7.1 模架类型    24
 6.7.2模座    25
 6.7.3导柱与导套的选用    26
结论    78
参考文献    29
致 谢    30
 

推荐资料