{$cfg_webname}
主页 > 机械机电 > 模具 >

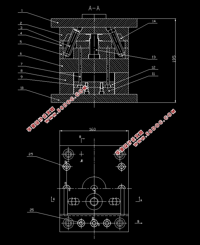
骨架模具的设计(含CAD零件图装配图)

来源:56doc.com  资料编号:5D19007 资料等级:★★★★★ %E8%B5%84%E6%96%99%E7%BC%96%E5%8F%B7%EF%BC%9A5D19007
资料以网页介绍的为准,下载后不会有水印.资料仅供学习参考之用. 帮助
资料介绍

骨架模具的设计(含CAD零件图装配图)(任务书,开题报告,外文翻译,论文说明书5500字,CAD图纸17张)
1  塑件的工艺分析
所示塑料制件,材料为丙烯腈-丁二烯-苯乙烯共聚物(ABS塑料) ,收缩率 0.3%~0.8% 。
1.1 塑件的原始材料分析                                    
该材料为丙烯腈-丁二烯-苯乙烯共聚物(ABS塑料),是由丙烯腈、丁二烯和苯乙烯三种化学单体合成。ABS无毒、无味、呈微黄色,成型的塑件有较好的光泽。从使用性能上看,该塑料具有极好的抗冲击强度,有良好的机械强度和一定的耐磨性、耐寒性、耐油性、耐水性、化学稳定性和电气性能。从成型性能上看,该塑料在升温时粘度增高,所以成型压力较高,故塑件上的脱模斜度宜稍大;ABS易吸水,成型加工前应进行干燥处理;ABS易产生熔接痕,模具设计时应注意尽量减少浇注系统对料流的阻力;在正常的成型条件下,壁厚、熔料温度对收缩率影响极小。在要求塑件精度高时,模具温度可控制在50~60℃,而在强调塑件光泽和耐热时,模具温度应控制在60~80℃。
1.2 明确塑件生产批量
该塑件要求大批量生产。
1.3 估算塑件的体积和重量
按照图 1-02 塑料件图示尺寸近似计算:
       V总=3.14×192×17=19270.18 mm3
       V1 =3.14×9.52×6=1700.31 mm3
       V2 =3.14×(192-112)×6=4521.6 mm3
       V3 =3.14×(192-9.5)2×8=6801.25 mm3
             V4 =3.14×82×11=2210.56 mm3
所以塑件的体积为V=19270.18-1700.31-4521.6-6801.25-2210.56=4036.46mm3=4.04 cm3
塑件重量为Gs =ρ•V=1.06×4.04=4.2824 g
式中ρ为塑料密度(ABS的密度ρ=1.04~1.07g/cm3)
 

骨架模具的设计(含CAD零件图装配图)
骨架模具的设计(含CAD零件图装配图)
骨架模具的设计(含CAD零件图装配图)
骨架模具的设计(含CAD零件图装配图)


目  录
1  塑件的工艺分析
1.1   塑件原始资料分析…………………………………………(03)
1.2   明确塑件的生产批量………………………………………(04)
1.3   估算塑件的体积和重量……………………………………(04)
1.4   分析塑件的成型工艺参数…………………………………(05)
2  确定模具结构方案
2.1   脱模原理……………………………………………………(05)
2.2   确定型腔数量及布局形式…………………………………(06)
2.3   选择分型面…………………………………………………(07)
2.4   确定浇注系统与排气系统…………………………………(07)
 2.4.1 浇注系统形成………………………………………………(07)
2.4.2 主流道的设计………………………………………………(08)
2.4.3 分流道的设计………………………………………………(08)
2.4.4 浇口的设计…………………………………………………(08)
2.4.5 排气系统……………………………………………………(09)
2.5   选择推出方式………………………………………………(09)
2.6   模具加热与冷却方式………………………………………(09)
3  模具设计的有关计算
3.1   型芯和型腔工作尺寸的计算………………………………(10)
3.1.1 型腔径向尺寸计算…………………………………………(10)
3.1.2 型蕊径向尺寸计算…………………………………………(10)
3.2   侧壁厚度与底板厚度的计算………………………………(10)
3.2.1 侧壁厚度……………………………………………………(10)
3.2.2 推板厚度……………………………………………………(11)
3.3   斜导柱等侧抽芯有关计算…………………………………(11)
3.3.1 斜导柱的设计………………………………………………(11)
3.3.2 斜导柱的计算………………………………………………(12)
3.3.3 斜滑块的计算………………………………………………(13)
3.3.4 契滑块的设计………………………………………………(13)
 3.3.5 导滑条………………………………………………………(14)
3.4   冷却与加热系统……………………………………………(14)
4  选择模架
4.1   初选注射机…………………………………………………(15)
4.1.1 浇注系统的重量……………………………………………(15)
4.1.2 注射压力……………………………………………………(16)
4.2   选标准模架…………………………………………………(17)
5  校核注射机
5.1   注射量、锁模力、注射压力、模具厚度的校核…………(18)
5.2   开模行程的校核……………………………………………(18)
5.3   模具在注射机上的安装……………………………………(19)
6  推出机构的设计
6.1   推件力的计算………………………………………………(19)
6.2   推杆的设计…………………………………………………(20)
6.2.1 推杆的强度计算……………………………………………(20)
6.2.2 推杆的压力校核……………………………………………(20)
6.3   推板强度计算………………………………………………(20)
7  连接件的选用
7.1   销钉的选用…………………………………………………(21)
7.2   螺钉的选择…………………………………………………(22)
8  模具的装配
8.1   模的装配……………………………………………………(22)
8.2   动模的装配…………………………………………………(22)
结    论 …………………………………………………………(23)
参考文献 …………………………………………………………(24)
致    谢 …………………………………………………………(25)

推荐资料