{$cfg_webname}
主页 > 机械机电 > 模具 >

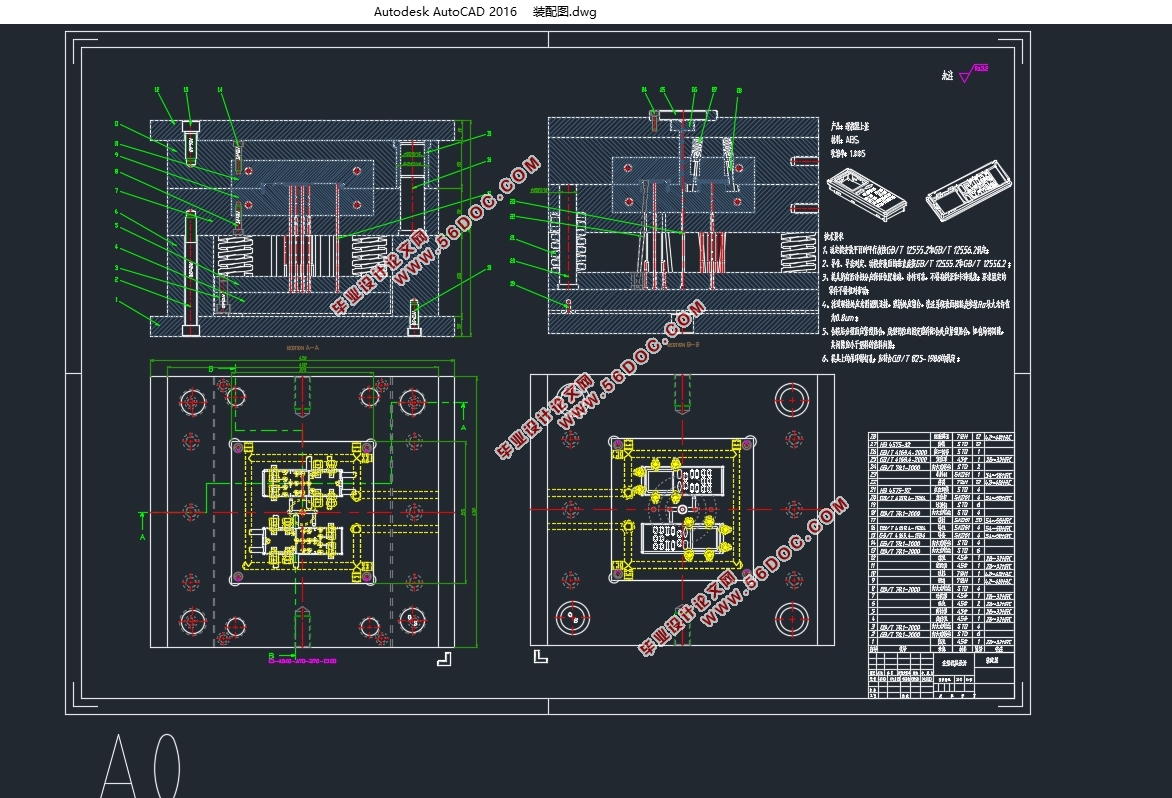
空调遥控器上盖注塑模具设计(含CAD零件图装配图,UG三维图)

来源:56doc.com  资料编号:5D22023 资料等级:★★★★★ %E8%B5%84%E6%96%99%E7%BC%96%E5%8F%B7%EF%BC%9A5D22023
资料以网页介绍的为准,下载后不会有水印.资料仅供学习参考之用. 帮助
资料介绍

空调遥控器上盖注塑模具设计(含CAD零件图装配图,UG三维图)(论文说明书10000字,CAD图10张,UG三维图,答辩PPT)
2.2零件的工艺分析
分析塑件实物图,并完成建模,结合已学的知识点,塑件的壁厚非常均匀,在1-3mm之间,整体塑件采用R角过度,没有尖角区域,应力性能好,手感舒适,另外就是表面要求光滑,光洁度要求好,在模具的型腔表面需要采用抛光处理,型腔表面的表面粗糙度需要达到Ra0.8um。再考虑该塑件要配合与安装,整体的尺寸精度方面,要求不高,采用一般的MT5等级的尺寸精度即可实现。以上综合,注塑成型工艺可以完美的实现。
2.3  塑料材料的基本特性
分析塑件的材料种类,需要材料特点具有耐酸碱盐,绝缘不导电,且表面光洁度好,寿命长。对于材料的选择方面,本次设计中选择ABS材料作为基本材料,
ABS材料是使用非常多的热塑性材料之一,ABS材料是一种三元聚合物,强度和刚度好,耐摔,抗弯折能力强,并且无毒无害,难容与酸碱盐溶液,表面光洁度好,绝缘不导电,添加一定的塑料阻燃剂之后,能够实现充分的阻燃效果,且ABS材料价格低廉,应用范围广,成型工艺稳定,注塑后应力与翘曲效果好,不容易变形。ABS已经广泛的应用于日用品,电子仪表,汽车仪器,外观壳体,电器家电,工程器械,医疗设备等领域。所以本次设计中,选择ABS材料为注塑材料。
 

空调遥控器上盖注塑模具设计(含CAD零件图装配图,UG三维图)
空调遥控器上盖注塑模具设计(含CAD零件图装配图,UG三维图)
空调遥控器上盖注塑模具设计(含CAD零件图装配图,UG三维图)
空调遥控器上盖注塑模具设计(含CAD零件图装配图,UG三维图)
空调遥控器上盖注塑模具设计(含CAD零件图装配图,UG三维图)
空调遥控器上盖注塑模具设计(含CAD零件图装配图,UG三维图)
空调遥控器上盖注塑模具设计(含CAD零件图装配图,UG三维图)
空调遥控器上盖注塑模具设计(含CAD零件图装配图,UG三维图)


目  录    2
摘 要    4
Abstract    5
第1章  绪论    7
1.1 注塑模具的概述    7
1.2 注塑模具发展国内外现状    7
1.3 国内模具的优劣势    8
1.4 本课题研究内容    9
第2章  塑件结构工艺分析与材料的选择    11
2.1 空调遥控器上盖零件图    11
2.2零件的工艺分析    12
2.3  塑料材料的基本特性    12
2.3.1 ABS的性能指标    13
2.3.2 塑件材料成型性能    13
2.4 注射机型号的初步确定    13
2.5 塑件注射工艺参数的确定    15
第3章  注塑模具结构设计    16
3.1确定分型面    16
3.2确定型腔局部结构形式    16
3.3 浇注系统的设计    17
3.3.1 浇注系统的设计原则    17
3.4 推出机构的设计    19
3.4.1 顶出脱模机构概述    19
3.4.2顶出机构零件    20
3.4.3 顶出脱模机构的分类    20
3.4.4 顶杆布局设计    20
3.5 模具冷却系统    21
3.5.1水路的布置形式    21
3.5.2 冷却系统简单计算    22
3.6 斜顶抽芯机构    23
第4章  模具成型尺寸    25
4.1 型腔工作尺寸计算    25
4.2 型芯工作尺寸计算    26
第5章模架的选择    28
5.1 模具选择    28
5.2 模架的安装    28
第6章导向机构的设计    30
6.1 主要导向定位机构    30
6.2 导柱导套的结构形式    30
第7章  注射机的校核    31
7.1 最大注射量的校核    31
7.2 注射压力的校核    31
7.3 锁模力的校核    31
7.4 模具外形尺寸校核    32
7.5 开模行程的校核    32
设计总结    33
附图    34
致谢    35
参考文献    36

推荐资料