{$cfg_webname}
主页 > 机械机电 > 数控 >

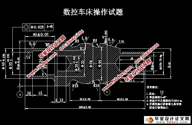
典型轴零件的数控车削加工工艺及程序设计(CAD,UG三维)

来源:56doc.com  资料编号:5D11565 资料等级:★★★★★ %E8%B5%84%E6%96%99%E7%BC%96%E5%8F%B7%EF%BC%9A5D11565
资料以网页介绍的为准,下载后不会有水印.资料仅供学习参考之用. 帮助
资料介绍

典型轴零件的数控车削加工工艺及程序设计(CAD,UG三维)(设计说明书7700字,CAD图1张,UG三维图1张)
摘 要
本文的主要写作目的是为了验证在校三年的学校以及实践过程中所学的知识,所以选择了一个典型的车削零件来阐述数控车削的加工工艺以及编程设计,此次设计不仅能够验证自己的知识,同时也能提高自己的知识,通过此次设计,使我发现了自己原来很多不足的地方,同时在设计中不断的改进,使自己的能力上了个新台阶,使我对数控车削工艺有了更高的认识。
关键词:工艺分析、装夹方案、工艺流程、程序设计
目录
 

典型轴零件的数控车削加工工艺及程序设计(CAD,UG三维)
典型轴零件的数控车削加工工艺及程序设计(CAD,UG三维)


摘 要    2
前言    4
1、典型实例分析    5
1.1、零件图的分析    5
1.1.1、尺寸标注分析    5
1.1.2、零件的几何要素    5
1.1.3、精度和技术要求分析    5
2、工件的装夹    6
2.1、机床的选择    6
2.2、数控车床夹具的定义和分类    6
2.3、夹具作用    6
2.4、夹具的选择    7
3、零件的工艺规程设计    7
3.1、加工顺序的安排    7
3.2、刀具的选择    8
3.3、切削用量的选择    9
3.3.1、主轴转速的确定    10
3.3.2、进给速度的确定    12
3.3.3、背吃刀量的选择    12
3.4、工艺卡片    13
4、数控编程及加工仿真    14
4.1、加工程序清单    14
4.2、加工仿真    19
小结    21
参考文献    23

推荐资料