{$cfg_webname}
主页 > 机械机电 > 数控 >

托架座数控加工工艺及编程(含CAD零件图毛坯图)

来源:56doc.com  资料编号:5D15274 资料等级:★★★★★ %E8%B5%84%E6%96%99%E7%BC%96%E5%8F%B7%EF%BC%9A5D15274
资料以网页介绍的为准,下载后不会有水印.资料仅供学习参考之用. 帮助
资料介绍

托架座数控加工工艺及编程(含CAD零件图毛坯图)(论文说明书8200字,CAD图纸2张,工序卡,工艺卡)
摘要
本篇毕业设计主要针对数控机床的加工及编程的介绍,对托架座零件进行工艺性分析,包括加工工艺的选择和制定,还包括各零件的程序的手工编制。
托架座零件的手工编程用到了G01 直线插补下令、G02/G03圆弧插补指令;G81钻孔;M98调用子程序指令等。比如毛坯造出,机器加工处理,热处理,装配等都称之为工艺过程。在拟定工艺过程当中,要肯定托架座各工序的安设和该工步必要的工步,机床的进给量和该加工工序的机床,机床的主轴转速和切削速度跟切削的深度。

关键词:加工工艺;托架座;编程;数控

 零件结构工艺分析
本文首先对托架座的零件进行分析,通过对托架座进行的研究和分析,描述了它的毛坯制造形式、机械加工余量、基准选择、工序尺寸和毛坯尺寸的确定,以及切削用量和工时的计算等相关内容。为了提高劳动生产率,与指导老协商后,感觉用数控编程比较合适。
在这次毕业设计中,根据课题所给的零件图、技术要求,通过查阅相关资料和书籍,了解和掌握了的机械加工工艺和编程的一般方法和步骤,并运用这些方法和步骤进行了夹具设计。整个设计得指导思想“简便、效率高、非常经济”。
工具是人类文明进步的标志。自二十世纪末,现代制造技术和机械制造过程自动化方面取得了长足的发展。但是,在不断创新的工具(包括夹具,刀具,量具和其他辅助设备),它的功能还是很显著。该机床夹具对零件的质量,生产率和产品成本有直接影响。因此,无论是传统和现代制造系统,夹具都是非常重要的工艺设备之一。
1.1 托架座零件的分析
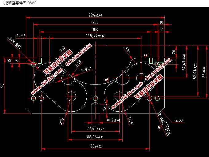
从零件图可知道,该零件为锻造零件,先采用锻造工件后,上下面及四周用铣床铣光后再进行机床加工,托架座材料为45钢。
托架座上下表面与四周铣可以先在普通铣床上完成,数控铣床为后续粗,半精,精加工的工序。以下图1,图2分别为托架座零件在零件图和毛坯图。
 

托架座数控加工工艺及编程(含CAD零件图毛坯图)
托架座数控加工工艺及编程(含CAD零件图毛坯图)
托架座数控加工工艺及编程(含CAD零件图毛坯图)


目   录
    摘 要    I
     1 零件结构工艺分析    1
        1.1托架座零件的分析    2
        1.2刀具、量具的选择    5
        1.3确定毛坯的制作形式    9
     2 工艺规程设计    1
        2.1选择定位基准    9
        2.2制定工艺路线    10
        2.3选择加工设备和工艺设备    11
        2.4机械加工余量、工序尺寸及公差的确定    11
     3 确定切削用量及基本工时    12
        3.1工序20:粗铣、半精铣零件上下端面    14
        3.2工序30:粗铣零件左右端面及C10倒角    15
        3.3工序40:粗铣R63半圆弧及R10圆角    16
        3.4工序50:粗、半精、精铣对称分布的半径为R25腰槽深20至尺寸    10
        3.5工序60:粗铣、半精铣 深 盲孔    17
        3.6工序70:粗铣、半精铣 通孔到位    17
        3.7工序80:钻、绞 深15盲孔至尺寸    17
        3.8工序90:钻、绞 深15盲孔至尺寸    17
        3.9工序100:钻、攻5-M8深15螺纹孔    17
        3.10工序110:钻、攻两端2-M6深10螺纹孔至尺寸    17
        3.11工序120:钻、攻两端2-M8深10螺纹孔至尺寸    17
   4 零件编程    25
        4.1粗、半精、精铣对称分布的半径为R25腰槽深20至尺寸    26
        4.2粗铣、半精铣 深 盲孔    27
        4.3钻、绞 深15盲孔至尺寸    28
  结 论    29
  参考文献    30
  致  谢    31

推荐资料