基于S7-1200PLC的两台七层电梯并联控制系统的设计(附梯形图主程序)(任务书,开题报告,外文翻译,论文说明书15000字,梯形图主程序,答辩PPT)
摘要
本次设计中整个双并联电梯的控制系统通过西门子S7-1200与逻辑控制电路对两部电梯的总启动、紧急停止、超重报警、高低速上下行、高低速开关门等进行控制。此外两部七层电梯公用同一外呼,并且此设计是利用一台PLC来控制两部电梯。同时运用最少等待时间的并联调度原则来实现电梯的运行。PLC和逻辑控制电路是本次系统中最主要的构成部分。在硬件方面,两台七层电梯的硬件是如出一辙的,两部电梯的上下行控制都需要交流电机来实现,并且电梯的上行和下行都需要调节速度,此时还需要变频器来调节电机的转速。除此以外,电梯的开关门动作也要选择双速电机来驱动。在软件方面,采用了模块化的设计方法,可以把双电梯的运行系统在程序设计上分为好多模块,比如电梯上下行模块,开关门以及判断电梯远近等模块。本次设计通过一台PLC来控制两部七层电梯不仅节约了设计成本,而且结构复杂程度低,运行的效率高,同时轿厢的舒适度也大大得到了提高。
关键字:PLC 逻辑控制电路 电梯并联
Abstract
The entire design of parallel double elevator control system by Siemens S7-1200 control and logic circuitry on the overall start of two elevators, emergency stop, overweight alarm, high and down low, high and low switch door control. In addition both the public portion of the same seven lifts outbound, and this design is the use of a PLC to control two lifts. While the use of a minimum waiting time to implement the principle of parallel scheduling operation of the elevator. PLC logic control circuit and this is the most important component of the system. On the hardware side, the two sets of seven elevators hardware is exactly the same, both up and down elevator control AC motors are required to achieve, and the elevator up and down all need to adjust the speed at this time also need to adjust the drive motor Rotating speed. In addition, the switching operation of the elevator door also choose a two-speed motor to drive. In terms of software, the use of modular design, can be double-operation of the elevator system programming is divided into many modules, such as the elevator up and down the line modules, switch the elevator doors and the judgment of distance and other modules. The design by a PLC to control the two seven-story elevator unit design not only saves cost, but also the structure of low complexity, high efficiency operation, while the comfort of the car is also greatly improved.
Keywords: PLC; logic control circuitry; parallel lift


目录
摘要 I
Abstract II
目录 III
第一章 绪论 1
1.1课题研究的背景 1
1.2 课题研究的意义 1
1.3 本课题的主要内容 3
第二章 并联电梯控制系统的简介 4
2.1 电梯的基本结构 4
2.2 电梯的基本工作原理 6
2.3 S7-1200PLC的简介 8
2.4 S7-1200PLC控制并联电梯的优点 9
2.5 并联电梯的系统结构 10
2.6 并联电梯的控制要求 10
第三章 并联电梯硬件的设计 13
3.1 I/O地址分配 13
3.2 CPU以及输入输出模块的选型 14
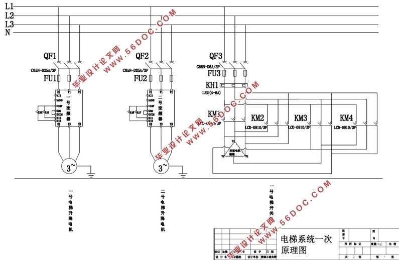
3.3 并联电梯主电路的设计 15
3.4 I/O外部接线图 17
3.5 元器件的选型 20
3.5.1 元器件选型表 20
3.5.2 变频器的选型 20
3.5.3 电梯曳引机的选型 22
3.5.4 门电机的选型 23
3.5.5 空气断路器的选型 23
3.5.6 交流接触器的选型 24
3.5.7 热继电器的选型 24
3.5.8 中间继电器的选型 24
3.5.9 熔断器的选型 25
第四章 并联电梯软件的设计 26
4.1 并联电梯程序的设计 26
4.1.1 并联电梯主程序流程图 26
4.1.2 单部电梯运行模块流程图 27
4.1.3 判断并联电梯远近模块流程图 29
4.2 系统的仿真 30
4.2.1 组态王简介 30
4.2.2 组态仿真 31
第五章 总结 40
参考文献 42
致谢 44
附录 45
|