金相切割机设计及PLC控制研(三菱FX)(含CAD零件装配图,梯形程序图)(任务书,论文说明书13000字,CAD图纸14张)
摘 要
金相试样切开机是使用高速旋转的薄片砂轮来截取金相试样,它广泛地适用于金相实验室切开各种金属材料。由于本机附有冷却设备,用来带走切开时所发生的热量,因此避免了试样遇热而改动其金相安排。
本次规划是对金相切开加工专机的规划。在这里主要包括:传动体系的规划、装夹部位体系的规划、切开片主轴部位体系的规划这次毕业规划对规划工作的基本技能的练习,提高了剖析和解决工程技术问题的能力,并为进行通常机械的规划发明了必定条件。
整机电机经过联轴器连接着据刀片,工作台结构主要由电动机发生动力经过联轴器将需求的动力传递到丝杆上,丝杆股动丝杆螺母,从而股动整机运动,提高劳动出产率和出产自动化水平。更显示其优越性,有着广阔的发展前途。
关键词:金相切割加工专机, 联轴器,滚珠丝杠
Abstract
The metallographic sample cutting machine is to use the high speed rotating thin plate grinding wheel to intercept the metallographic specimen. Because the machine is equipped with cooling equipment, used to take away the heat that occurs when the incision, so as to avoid the specimen in case of heat and change the metallographic arrangement.
This plan is the planning of the cutting process of gold tangent. Here mainly includes: practice transmission system planning, planning the clamping parts system planning, cut open spindle system parts of graduation planning basic skills for planning work, improve the ability to analyze and solve engineering problems, and are usually mechanical planning invention must condition.
The motor through the coupling with the blade according to the table structure, mainly by motor power through the coupling will demand power transfer to the wire rod, screw femoral screw nut, and the femoral artery, improve labor productivity and automation level of production. It shows its superiority, and has broad prospects for development.
Keywords: high-precision cutting plane, couplings, ball






目 录
摘 要 I
Abstract II
1 绪论 1
1.1金相切割加工专机的研究现状 1
1.2金相切割加工专机发展趋势 2
1.3本课题研究的内容及方法 4
1.3.1主要的研究内容和研究意义 4
2 金相切割加工专机总体结构设计 5
2.1设计的要求与数据 5
2.2 锯刀片选型 5
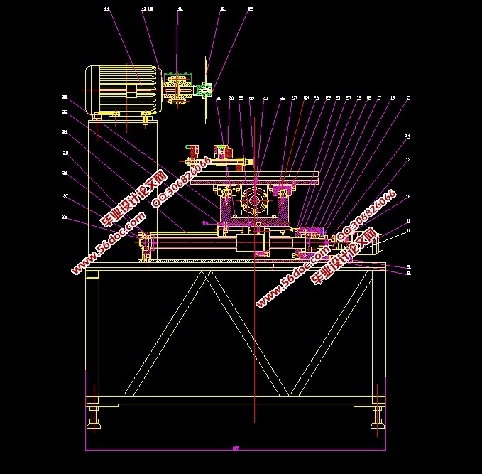
2.3 整机工作原理图 6
3 金相试样切割X方向进给传动设计 7
3.1 X向滚珠丝杆副的选择 7
3.1.1导程确定 7
3.1.2确定丝杆的等效转速 7
3.1.3估计工作台质量及负重 7
3.1.4确定丝杆的等效负载 8
3.1.5确定丝杆所受的最大动载荷 8
3.1.6精度的选择 9
3.1.7选择滚珠丝杆型号 9
3.2校核 9
3.2.1 临界压缩负荷验证 9
3.2.2临界转速验证 10
3.2.3丝杆拉压振动与扭转振动的固有频率 11
3.3电机的选择 12
3.3.1电机轴的转动惯量 12
3.3.2电机扭矩计算 13
4 金相试样切割Y方向进给传动设计 15
4.1 Y轴滚动导轨副的计算、选择 15
4.2 滚珠丝杠计算、选择 16
4.3 步进电机惯性负载的计算 19
4 控制系统设计 22
4.1 PLC模块 22
4.1.1 PLC介绍 22
4.1.3 PLC的I/O端子分配 23
5 控制程序设计 25
5.1切割系统程序流程图 25
5.2软件介绍 26
5.2.1编程软件 26
5.2.2仿真软件 26
5.3模拟量转换程序 27
5.3.1读写指令 27
5.3.2 模块初始化BFM单元 28
5.3.3 本课题的读取A/D程序 28
5.4 PID运算程序 29
5.4.1 PID运算指令 29
5.4.2 PID控制逻辑 30
5.4.3 本课题PID控制程序 30
5.5手动点动程序 31
5.6自动运行程序 32
结论 34
参考文献 35
致 谢 36
|