PLC控制并联电梯控制系统的设计(附CAD图,PLC梯形图)(外文翻译,论文说明书18000字,CAD图,PLC梯形图)
摘 要
本次的毕业设计内容是以西门子PLC(S7- 200)为控制核心,结合模拟量输入输出技术、变频技术、传感技术等,设计了基于PLC上的并联电梯控制系统。使用变频器控制电机,使电梯启动电流更小,启动力矩更大;使用变频器控制速度,使加减速过程更平滑;本次电梯加装了跑偏检测装置,使运行过程中出现的提升斗变形,传送带打晃等都可以检测出来。使用了本套系统控制的电梯,在安全性以及稳定性方面都可以达到一个新的台阶。那么下面就是我论文的基本内容,他涉及到电梯并联控制的概述,并联控制的发展方向,电梯的分类,电梯的结构和原理,还有电梯的集选控制,即“顺向截梯,反向不停,最远端除外”,除此之外,还有“本层开门,端站返回”的功能。还有继电器控制电路,这些虽说已经淘汰,但是在廉价的电梯控制中依旧在使用,最后介绍的是plc控制并联电梯控制,这部分里面有硬件接口图的设计,电气原理图的实际设计,还包括plc的选型,变频器的选型工作,在对于不同的电梯设计中会使用不同类型的plc和变频器,高楼层的智能建筑适合选用大型的plc,本课题选用的是小型的plc,重在对电梯系统的正确性和完整性上的设计,在今后如若能从事电梯行业,那将会好好学习,设计出优秀先进电梯控制程序。
关键词 PLC;变频器;电梯;设计
Abstract
The graduation project with Siemens PLC (S7-200) for the control of the core, with analog input and output technology, inverter technology, sensor technology, designed based on parallel elevator control system PLC. Inverter controls the motor, the elevator starting current is smaller, larger starting torque; using the inverter to control the speed, acceleration and deceleration process so much smoother; The elevator installation of a deviation detection device that appeared to improve during operation Doo deformation, so the conveyor can be detected beat Akira. This system controls the use of the elevator, the security, stability can reach a new level. So here are the basic content of my thesis, he involves overview of elevator parallel control, development direction of parallel control, the classification of the elevator, the elevator, the structure and principle of and collection of the lift control, namely "consequent cut ladder, reverse, except the far end", in addition, there are "this layer to open the door, end station back" function.And relay control circuit, and these have been eliminated, but still in use in the cheap elevator control, PLC control in parallel are finally introduced elevator control, in this part there are the design of the hardware interface, the design of the electrical schematic diagram, including PLC selection, work, in the selection of frequency converter in elevator design for different use different types of PLC and frequency converter, high floor for intelligent buildings with large PLC, this topic chosen is small PLC, focusing on the design of elevator systems on the correctness and completeness of, if in the future can be engaged in elevator industry, it will be good good study, design the best advanced elevator control program.
Keywords: PLC; converter; elevators; Design



目录
摘 要 I
Abstract II
第一章 绪论 1
1.1课题背景 1
1.2电梯并联控制概述 2
1.3电梯并联控制的发展现状 2
1.4本课题主要解决的问题 4
第二章 电梯的结构与原理 5
2.1电梯的概述 5
2.2电梯的分类 5
2.2.1按用途分类 6
2.2.2按额定速度分类 6
2.2.3按驱动方式分类 6
2.2.4按控制方式分类 6
2.3电梯的结构 7
2.3.1电梯的机械系统 7
2.3.2电梯的电气系统 8
2.4电梯的控制系统 9
第三章 电梯的集选控制 11
3.1电梯的集选控制算法 11
3.2电梯的上升下降的选择逻辑 12
3.3电梯的停止逻辑 13
3.4电梯门控制电路 14
3.5 指层电路 16
3.6轿厢内指令电路 20
3.7厅外召唤电路 21
3.8集选控制电梯定向选层电路 24
第四章plc控制并联电梯控制 27
4.1系统方案 27
4.2 PLC控制两台电梯算法研究 28
4.3电气元件的选型 30
4.4 主要元件介绍 30
4.5电路原理图 35
4.6 输入输入变量表 37
4.7软件设计 40
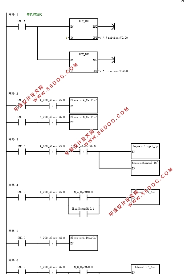
4.8 PLC程序设计 41
第五章 总结与致谢 69
5.1结论 69
5.2致谢 70
参考文献 71
|